德国哲学家、文化哲学创始人卡西尔说:“艺术在对可见、可触、可听的外观的把握中给予我们以秩序。”在本案中,设计师除了注重建筑的美学价值,也以梳理空间秩序为目标,平衡空间中各事物间的关系,使其成为和谐交融的整体。
设计师着眼于“空间秩序”与“事物关系”,以二者为引贯穿始终,使得建筑从土壤里生长开来,成为周围环境中不言而喻的组成部分,似乎在说:“我就是你看到的这样子,我属于这里”。




项目原址位于地下一层,曾经是闲置的废弃地下自行车库,场地的局限导致其难以为空间赋能,也成为进一步发展的阻碍。规划合理的动线,结合建筑本身的美感,构建起符合高端餐饮空间气质的引导状态,促使消费者主动进店,便成为门头设计的重心。

厚重沉稳的金属质感大理石门板在水平线上延伸,以盈盈水波为依托,背靠严谨的线状光屏,形成灯光与材质上的反差美感,提亮以深灰色为基调的建筑本体。横向与纵向交错构成面,又有前后叠层关系,点缀动态的水波与光屏,辅以阶梯线条的沉降,形成从二维到三维,再到四维的全面升华。


空间应当拥有可与当前情境进行有意义对话的品质。在室内空间,设计师打造“合”的概念.动线指引,空间规划,材质拼接,纹理差异化,灯光处理,这些要素促进了建筑空间与人的对话,打造轻松愉悦的就餐氛围,形成人与空间、人与材质、美食和空间、美食与人等多方秩序平衡的交合场域。


空间整体以灰调为主,搭配带有倾向性的金色、赫赤、翡绿等中国传统主题色彩,在细节上通过不同的材质与纹理质感结合在一起,使得空间兼顾视觉美感与文化内涵。细节不会使人分心和被逗乐,却能成为作品固有的一部分,引导人们去理解整体。







设计师取材天然水墨肌理石砖,通过理性的切割与科学的解构形成新的画面。冷硬的石材因其天然的纹理而在视觉上给人以柔和感,将室内空间的工业感降到最低。
▼包间


▼餐厅内的石材



建筑中的事物互相遮蔽、包裹,又互相流通,成为兼具动态美与静态美,人与自然和谐共生的秩序空间。隐于闹市的火锅店自成天地,空间运转流畅自然,也在满足口腹之欲的同时为食客带来玄妙的滋养。
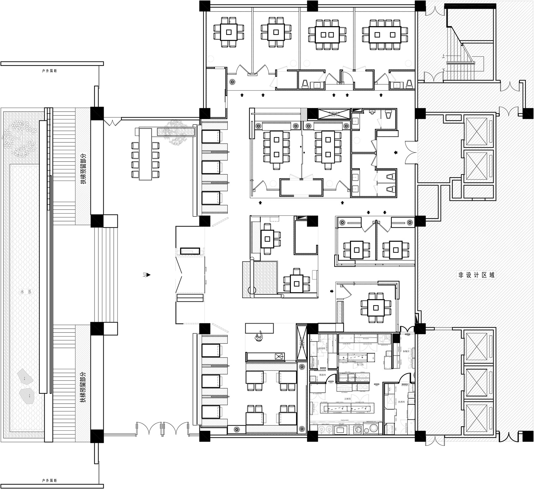
▼平面图

▼外观立面图

▼室内局部立面图

▼室外广场示意图


项目名称:丁一丁红砂牛油火锅餐厅设计
项目类型:餐饮空间设计、火锅店设计、中餐厅设计
项目地址:中国 · 太原
设计方:杭州象内文化创意有限公司
主创及设计团队:程超、林濛濛、付佳强、安彦林
建筑面积:720㎡
设计年份:2022.02
建成年份:2022.07
材料:石材、金属板、木饰面
摄影版权:徐义稳
编辑版权©灵感LAB,欢迎转发,禁止以灵感LAB编辑版本进行任何形式转载

关注公众号

关注抖音号