评事街作为南京重要的历史风貌区,是老城南的缩影,它至今仍保留了丰富的文化记忆和市井生活气息。二十春立基于此,试图在老城南的历史肌理中植入一个具有当代公共性的社区节点。其价值在于绵延市井的活力。
▼建筑外景

设计的核心是通过在地转译,将场地记忆、市井生活与当代休闲需求交织,营造一个既能融入老街巷日常纹理,又能激发社区活力的“街角公园式”咖啡馆。希望设计能够最终超越咖啡馆的商业本体,塑造一个具有吸附力的社区公共空间。
▼葫芦门

入口处的葫芦门洞源于传统中式园林的符号简化,它以一种近乎“笨拙”的、带有手工感的形态出现,暗示着内部空间的轻微超现实感。外墙选用与周边老民居楼相似的马赛克,它是八九十年代最常见的外墙材料之一。我们试图以材料的时间对话使新体量在肌理上嵌入街区。
▼葫芦门细节

▼一层室内空间


▼咖啡区

室内挑高了一处转角平台,并在窗边设置老公园里的木制“美人靠”。这一设计旨在使室内楼梯过渡到二楼的区域有缓冲和休憩的余地;同时创造闹市中的“凭栏远眺”。临窗坐位主动引导“晒太阳”这一极具市井生活气息的行为,将原本私密的咖啡消费转化为可观看、可参与的街道生活场景。
▼美人靠

▼一层室内细节

▼楼梯


二楼‘宝物饭局’是品牌对本地菜的新尝试,视觉呈现上延续了一楼活泼中式的表达。以一种介于碧色和翠色之间的醽绿贯穿整个垂直面,结合舒展的枝条,在旧木中透着生机。
▼二层室内空间



▼布局细节




靠窗一侧的白色坡屋顶未作过多干预,以保证室内开阔疏朗的轻松氛围。靠墙的半坡顶我们以木饰面平行于屋面局部包裹,一是为了遮蔽背后的消防管道,同时以屋面做装饰简化墙面过于琐碎的表达。
▼室内氛围


▼傍晚室外细节

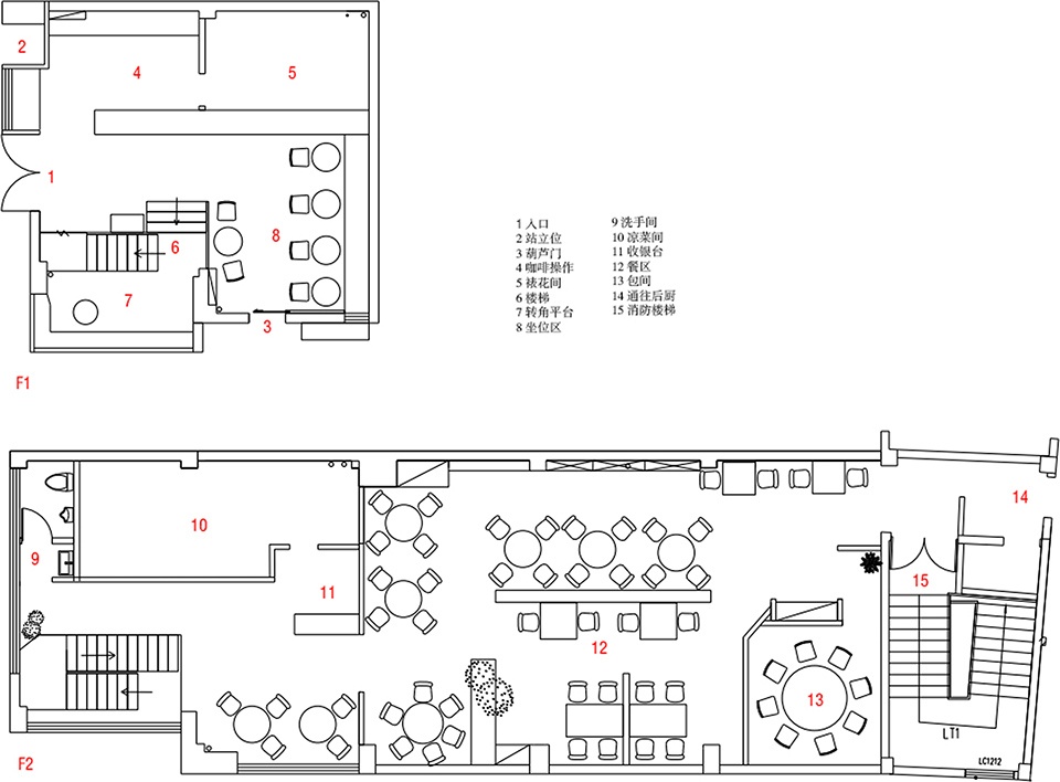
▼平面图

项目名称:二十春&宝物饭局
项目类型:餐饮空间设计、咖啡厅设计、中餐厅设计、饮品店设计
项目地址:熙南里皮士街,南京
设计团队:南京拙木空间设计
建筑面积:240㎡
建成年份:2025.12
材料:钢板、旧木、马赛克、地坪漆
摄影版权:黑曜石
感写观览、登录灵感LAB账号、点击文章顶部?可收藏案例
更多该设计公司案例,请点击 → 南京拙木空间设计
©非特殊说明,文章版权归原作者所有

关注公众号

关注抖音号