设计理念
“转念花开”作为一个以在地性与亲密感为核心的餐饮品牌,旨在通过对日常饮食的当代表达,延伸出更自在、更亲密的就餐体验。其空间构思,正是根植于台州“山海水城”的自然意境与从容的生活哲学,旨在将外在的地域气韵,转化为内在的情绪景观。
▼外立面

▼外立面结构

▼外摆

外摆区作为延伸界面,以种植池与石材构成软隔断,视觉连续、功能独立;入口设置过渡区域,通过陶罐、植物与高低体块,构成空间“缓冲带”。靠窗的位置,会被透光玻璃打上一层温和的雾光;
▼空间概念分析图

▼入户

▼散座

▼靠窗就餐区

▼半围合就餐区



而靠内侧的半围合就餐区域,则更像是一处收纳情绪的角落。汀步、绿植、素墙、透帘、半高卡座,以天然材质为线索,铺展开一个转而念之的餐饮日常。
▼靠墙就餐区


夜晚
灯光柔下来之后,会觉得这里很适合讲心里话。入口到室内那种动线自然展开的感觉让人感到放松。
▼就餐区


▼墙布
▼光线氛围

没有刻意造势,却处处被轻轻引导。像从城市里抽身出来,一步一步走进自然深处。散座、卡座、外摆都在自己的节奏里。
▼走道

▼入户区夜景


▼外立面夜景


“转念花开”四个字,在空间里是有回应的,粗粝与温润、秩序与自由并不是对立,而是在互相照亮,吃饭不再只是味觉体验,也是一场“往内走一点”的过程。
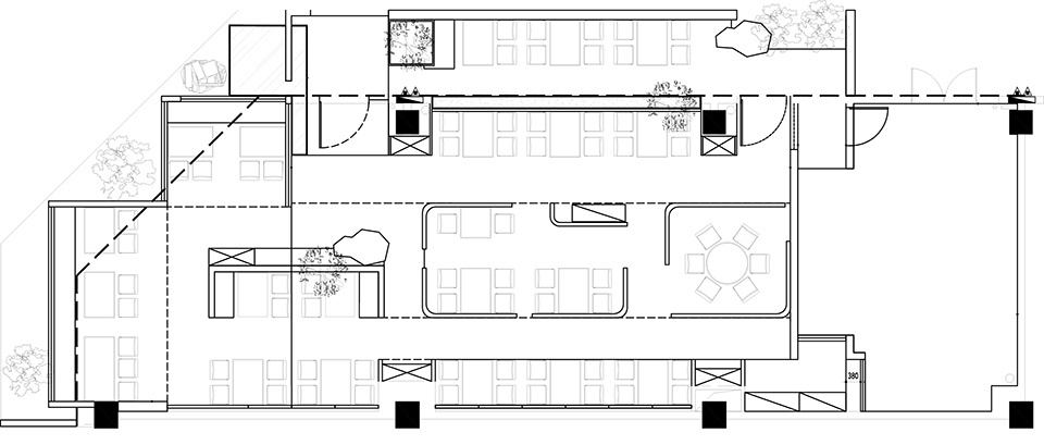
▼平面图

项目名称:转念花开·台州小馆
项目类型:餐饮空间设计、餐厅设计、中餐厅设计
项目地址:中国安徽省淮南市田家庵区
设计团队:向生设计事务所
建筑面积:270㎡
建成年份:2025.09
材料:不锈钢,石材,艺术涂料,老木板,瓷砖,藤编网
摄影版权:周梓怡
感写观览、登录灵感LAB账号、点击文章顶部?可收藏案例
更多该设计公司案例,请点击 → 向生设计事务所
©非特殊说明,文章版权归原作者所有

关注公众号

关注抖音号