一、项目背景与空间命题
十七间茶馆位于南京抄纸巷,一条夹在新街口繁华商圈与老旧居住区之间的短巷。项目占据街角二层,需要经由楼梯抵达。一层界面的缺位,使它天然处于街道视线之外;而转角处立面上街区昭示面的强势介入,又放大了这种“不被看见”的处境。
▼项目概览

在这样的条件下,立面不只是形象问题,而成为一个亟待解决的命题:如何在回应城市、建立识别,同时又不沦为简单的标识或装饰?
▼外立面概览

另一个问题来自商业运营本身。十七间茶馆以包间为核心体验单元,也意味着空间处理上必须在私密性与整体感之间反复权衡;同时,品牌希望呈现一种更为年轻、日常的气质,避免被归类为某种既定风格。在这些的前提下,空间还能如何被组织、被理解?
▼南立面

二、解构作为空间生成的方法
项目的核心灵感来源于戈登·马塔-克拉克(Gordon Matta-Clark)的建筑解构思想。设计并不是借用其作品的形式语言,而是将“切片、开洞、重组”作为一种操作方法,引入既有空间结构之中,以此松动原本稳定、封闭的正交秩序。
▼轴测图

▼茶馆入口

原本一整块连续的室内空间被有意识地拆分开来:设计通过体量的分割、上下关系的变化以及局部开口的引入,使空间不再被理解为一个个彼此独立的房间,而是形成一系列相互关联、可以被行走与感知的空间片段。人在其中移动时,会不断经历转折、停顿与视线的变化,空间层次也随之逐步展开。
▼吧台


这一空间生成逻辑进一步延伸至建筑立面。立面不是附加于建筑之外的外壳,而成为内部空间关系的外显界面。半透明的阳光板包裹原有建筑结构,使内部空间的层次以柔和的方式显现在城市界面之上;红色的线性与平面构件如同结构标记,将窗、转角与入口重新组织为清晰而克制的秩序。
▼公共区域


在夜间,建筑呈现出近似发光体的状态,以稳定而不过度强调的方式回应街道,也为二层空间建立起一种年轻而明确的识别。
▼茶馆内廊


三、弱边界下的空间体验
在被拆解并重组的空间结构之中,室内以衡建筑一贯擅长的“盖中盖”方式进行组织——包间以相对轻量的结构被置入整体空间之中。收银吧台同样以立面开窗的形式嵌入室内,使其在整体结构中也被理解为“房间”的一种,而非独立的功能区域。
▼茶室空间


空间中没有传统意义上的大堂,因此行走本身成为组织空间的重要方式。包间之间形成的空隙被转化为可被感知到公共区域:从入口处较为收束的夹角空间,逐步过渡至尺度放大的“室内小广场”,再延伸至通往各个包间的过道,由此构成一系列具有街道感的空间体验。
▼街道感的空间体验



具体的构件与细部共同构成一套可被直观感知的几何秩序,包间的矩形体量、门扇上的三角切角,以及墙面与天花中反复出现的圆形与半圆开孔……这些几何操作并不为了强调造型,而是通过控制尺度与边界关系,使小尺度空间在行走与停留中创造更丰富的体验。
▼露台

▼休憩空间

在这一几何与结构关系的基础上,自然光得以通过半透明界面与被限定的开口被过滤后进入空间,在不同时段形成柔和而稳定的光影变化。
▼空间的界面


光线、视线与空间边界之间的相互渗透,使公共与私密的界限得以适度弱化,在削减包间封闭感的同时,自然呈现出一种透明、日常而年轻的空间气质。
▼室内景观

四、结语
十七间茶馆的设计,并非试图用复杂的形式去掩盖场地条件的不足,而是将商业空间的直觉需求与建筑空间的感知体验视为同一问题的两个侧面。
▼夜览


在老城区中创造新的表达,是在既有结构与限制之中,找到新的组织方式。通过建筑手法对空间进行再分配、再叠加,在有限的尺度创造更丰富的使用体验,使空间本身成为品牌体验的一部分。
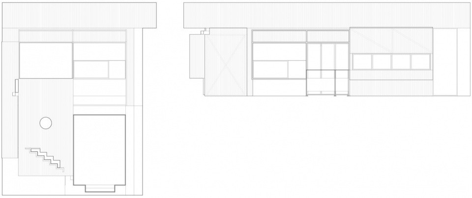
▼平面图

▼立面图

▼剖面图

▼包厢轴测图




项目名称:十七间茶馆纸巷店
项目类型:餐饮空间设计、茶室设计、饮品店设计、咖啡厅设计
项目地址:江苏,南京
客户:十七间茶馆
设计团队:Modum Atelier 衡建筑
施工方:南京易击装饰工程有限公司
建筑面积:220㎡
建成年份:2025年7月
材料:阳光板 柳桉板
摄影版权:刘国威
感写观览、登录灵感LAB账号、点击文章顶部?可收藏案例
更多该设计公司案例,请点击 → 衡建筑
©非特殊说明,文章版权归原作者所有

关注公众号

关注抖音号