禅意|
喧嚣都市,
偶得僻静一处,
入谷中,鸟云山静落花溪水,
近听,有私语窃窃。
▼谷语 – 禅意

选址 Siting
沈阳市铁西区是东北老工业基地,原红梅味精厂就坐落于此,后经改造成为了红梅文创园其中一座废弃的老厂房就是谷语项目的前身。经过时间的沉淀,岁月的尘封,仿佛机械转动的轰鸣依然不绝于耳。在钢筋水泥的都市里,如何寻找一处净隅,为心灵寻一休憩之处,品美食、聊私语,是本案设计的主旨。
▼餐厅外观

空间 Space
池边人家(入户) Residents by the pond(Entrance)
曲线回转的水磨石在室内蜿蜒,将错落的切片瓦围绕于玄关,形成了“池”。“池”边又有“人家”一户,玄关采用艺术水泥其中开“窗”,原木为“扇”可在四季变换时移动开起,形成不同的景致,让顾客四季感受变换之美。
▼入口空间

▼老厂房的工业特征被保留了下来

云上有溪(一层散台)The streams over the clouds(Scattered tables of the first floor)
散台有流水水幕,棚上为“云”,与吧台采用的自然花岗岩相互呼应。谷中:品美食、闻茶香、观云山、听流水、聊私语。
▼一层散台

▼棚上为“云”

▼吧台采用的自然花岗岩

▼餐桌旁的流水水幕

▼水幕细部

谷中观月:(二层散台) Admire the full moon in the valley(Scattered tables of the second floor)
入夜提渔“灯”一盏,流影光疏,品酒观“月”。
▼二层空间

▼品酒观“月”

▼室内细部

▼材料细部

▼一层平面图

▼二层平面图

▼室内立面图


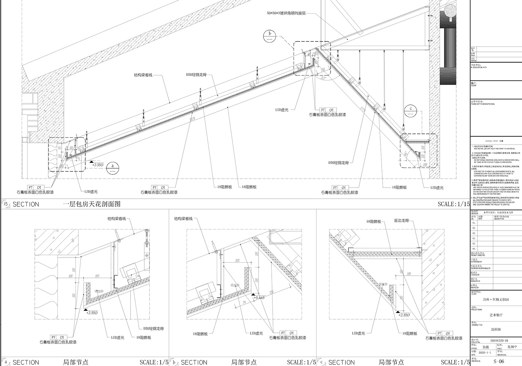
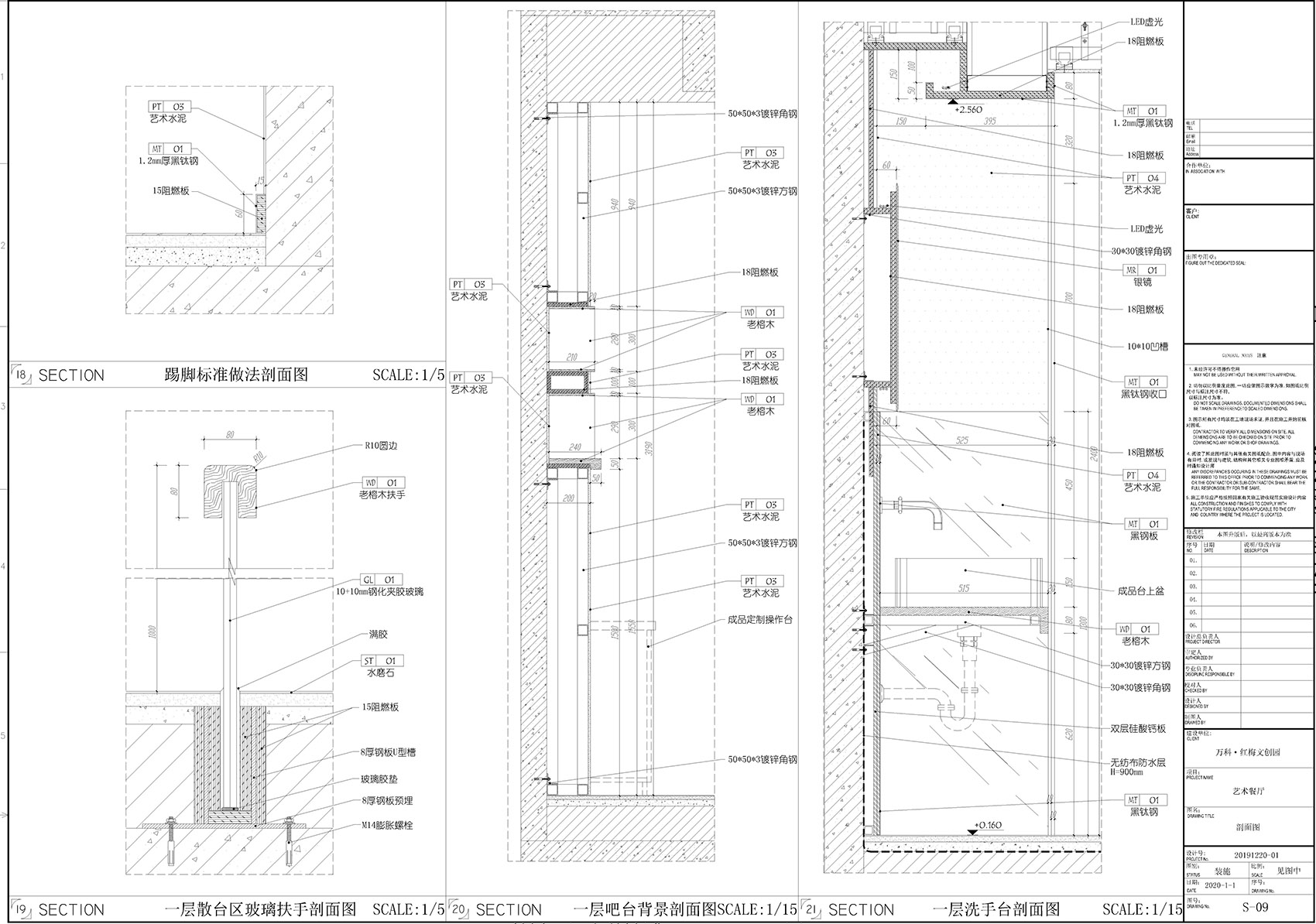
▼剖面图



▼节点大样图





项目名称:“谷语”精品餐厅
项目地址:辽宁省沈阳市铁西区北三中路红梅文创园9号楼
设计公司:黑珍珠空间设计事务所
主创及设计团队:陈帅 崔楠 张晓雨
建筑面积:560㎡
空间主材:微水泥、老青砖、大理石、镜面白钢、花岗岩、木材、玻璃、白色乳胶漆
摄影师:ZEBRA VISION
编辑版权©灵感LAB,禁止以灵感LAB编辑版本进行任何形式转载

关注公众号

关注抖音号