作为一家坐落于温州乐清的社区精品咖啡店,开场On-Site是一个能量发生地。除了提供富有地方特色的特调咖啡与餐食外,它更关注人与人之间的交流聚合,以及场域能量的交换与连结。我们为其构建了品牌战略、品牌命名、视觉识别系统与室内空间。
▼项目概览

▼立面


“开场”有三重含义:
[1]Opening, Introduction. 指好戏开场,演出开始。
[2]Place, Spirit of Place. 场,特指场所,延伸至场所精神。
[3] “Chang”, Local Resonance.谐音“厂”,取自温州人“爱开厂”的地方文化。
*英文品牌名On-Site亦有“在现场”之意。
▼旋转门

▼立面细部


「从空间能量到动力装置」
如何将“场域能量”这一抽象概念转译为三维空间与可感知的体验,并与咖啡店功能有机结合,是设计的核心命题。
▼室内概览


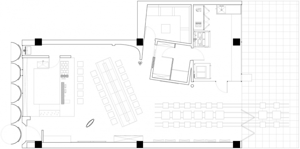
从平面规划上,我们通过对主要区域进行不同角度的旋转,并置入四个形态各异的柱子来引导流线与视线行进的方向,从而打破线性空间的均质与平衡。人在此被自然地引向开阔或安定之处,这便是流动的场域能量体现的第一层。
▼轨道上的桌椅


不同的人在此处汇合,故事也总是同时发生。我们为开场设置了一系列动能装置,以回应不同场景与角色的多重叙事:人们从主入口进入玄关,弧形门滑入内嵌圆形轨道;咖啡师在吧台内将卡扣扣进凹槽,把特调从外卖口递出去;顾客围坐在花池长桌旁,将尽头的红幕拉上打卡拍照;店员忙着把这一季的新品面包挂上四芒星展示架,推到客人面前解说。天气刚刚好,好想坐在外面晒太阳——不如我们直接把咖啡桌沿着滑轨划到外面去!
▼吧台桌椅



我们将“场域能量”的品牌精神内化于机关与场景之中,使抽象的概念在此转化为二维视觉语言与三维空间形态。
▼轨道上的桌椅



「模糊内外:作为社交媒介的立面」
考虑到场地所在商圈的复杂性,我们为前后立面采用了不同的处理策略。前立面紧邻一家极具烟火气的烧烤店,对咖啡店而言并非理想邻居。我们既希望行人能在百米外的街道上注意到开场的存在,又需隔绝油烟与噪声。一般的店招与大面积玻璃窗的组合似乎不足以让开场从中脱颖而出,并解决其面临的挑战。
▼前外卖口

▼面包店厨房

▼品尝区

▼洗手区

我们从品牌视觉语言中提取几何元素,以五个具有建筑形态与空间感的空心半圆柱构成前立面,通过重复的秩序强化门面的节奏感。近距离看,我们在空心圆柱内,以人身体的尺度,在不同高度横向设置了平面,使前立面可倚可坐。夜晚,暖光从弧形缝隙间溢出,行人凑近可瞥见室内的热闹景象。
▼后外卖口

▼圆柱


后立面正对邻近的公园草坪,我们将其完全打开,模糊内外的边界,并将室内滑轨延伸至室外。人们只需轻轻推动桌椅,便可自然地过渡到草坪空间中。
▼前立面细节


▼后外卖窗口构造

▼面包店厨房扶手


▼长桌细节

「强烈的几何印象:平面视觉到空间的延续」
在立面和室内空间中,我们设置了一系列不同形式、重复出现的元素:动态的弧线,圆形金属,四芒星展示架,倒三角长灯——这些元素源自品牌视觉识别系统,我们将其贯穿在空间的设计中,形成专属于“开场”强烈的几何印象。
▼夜景


▼平面图

▼后立面

▼轨道上的桌椅

▼旋转门

▼前外卖口

▼后外卖口

▼前外卖口节点

▼后外卖口节点

项目名称:开场咖啡 Café On-Site
项目地点:浙江,温州
设计单位:aptdotapt 攻玉
项目内容:室内设计,品牌战略,视觉识别系统,周边产品设计,包装与陈列方案
项目类型:餐饮设计、商业空间设计、咖啡厅设计
项目面积:140㎡
设计团队:张津瑞Jinrui Zhang,恋恋Leanne Letong Meng,蔡哲晔Zheye Cai
设计时间:2025年4月 – 2025年6月
建成时间:2025年6月 – 2025年12月
门窗顾问:内外计划I/O Project
摄影:朱雨蒙
感写观览、登录灵感LAB账号、点击文章顶部♥可收藏案例
更多该设计公司案例,请点击 →aptdotapt 攻玉
©非特殊说明,文章版权归原作者所有。

关注公众号

关注抖音号

nice rice好饭上海旗舰店 · 上海 | say architects

Tomacado花厨 · 杭州 | 梁筑设计事务所

「阿喜茶楼」喜茶广州LAB店 · 广东 | 立品设计

未来味觉食验室 · 北京 | 与生建筑设计

SUJIAN-万塘治茶 · 杭州 | 杭州观堂室内设计有限公司

TARENTUM萄木L’Opéra希腊餐厅酒吧 · 深圳 | ATELIER XU建筑事务所