当老建筑与新商业碰撞,将“市井”和“精致”藏在朱红、青瓦之中。
▼gaga客厅开门迎友

我们以“客厅”为概念构建设计核心,为gaga新店注入松弛感和烟火气。通过多条漫游式动线连接户外与室内,贴合“合院式街区”的商业氛围。
▼餐厅南侧入口

客厅开门迎友
项目落于北京中轴线上,屋檐下藏着胡同生活的闲适与烟火。餐厅入口分别位于南、北两侧,并设置面向街区的外摆区域,提供灵活、丰富的就餐体验。
▼餐厅入口

▼餐厅南侧外摆区域

▼外立面方砖造型

我们在注入现代设计元素的同时,保留四合院门头、屋脊、垂花门等传统建筑构件,展示北京老城特色风貌。
▼餐厅北侧入口

餐厅北侧可以呈现完全打开的欢迎界面,半开放式庭院回应街区的开放与亲和,削弱传统商业立面的严肃性。
▼半开放式庭院


▼从户外看向餐厅室内

市井与精致并存
餐厅室内用曲线划分布局,弱化边界和空间棱角。增强空间灵活度与动态节奏,同时体现了品牌的商业气质和受众画像。
▼流动的曲线空间

▼城市特色装饰

利用原始地形高差,我们在餐厅西侧做局部地面抬高处理,营造错落变化的空间感受。天花造型呼应曲线布局,弧形悬挑引导视线,建立天花与地面的内在联系;同时可以暗藏空调设备与管道。
▼餐厅西侧局部地面抬高

▼天花造型呼应曲线布局

吧台与卡座贴合平面弧线布局,成为餐厅核心造型,贯穿整个空间。弧形墙面采用橘红色夯土肌理漆,营造活泼、亲近的就餐体验。
▼ 餐厅轴侧图

▼餐厅吧台

▼卡座区域

室内桌椅布局延续外摆区域,丰富多样。结合内渗的自然采光和景观绿植的搭配布置,将室内空间“庭院化”,弱化内外边界。
▼形式多样的桌椅布局


▼餐厅室内庭院化

鲜艳的颜色对比和金属装置点缀为餐厅增添几分时尚与俏皮。利用不同颜色和材质的肌理质感划定区域边界,呈现细腻区分。
▼用颜色与材质划分区域


▼金属元素局部点缀

餐厅整体氛围协调统一,我们希望保留区域差异性的同时,提升空间的细节质感与生活温度。
▼刨花板隔断

▼餐厅角落的光影


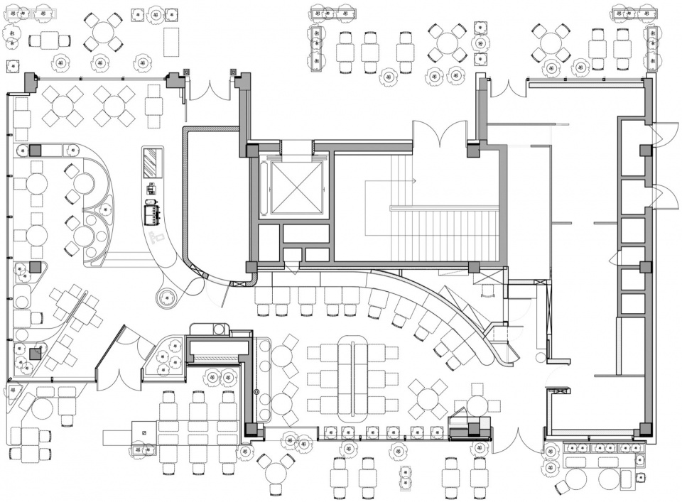
▼餐厅平面图

项目名称:gaga大吉巷店
项目类型:餐饮空间设计、商业空间设计
地点:北京
面积:室内268㎡,外摆133㎡
设计公司:odd设计事务所
设计团队:冈本庆三,出口勉,刘静怡,曹博,张子清
竣工时间:2025.08
主要材料:夯土肌理漆,木饰面,艺术瓷砖,水磨石,刨花板,金属
摄影:gaga
感写观览、登录灵感LAB账号、点击文章顶部?可收藏案例
更多该设计公司案例,请点击 →odd设计事务所
©非特殊说明,文章版权归原作者所有

关注公众号

关注抖音号

nice rice好饭上海旗舰店 · 上海 | say architects

Tomacado花厨 · 杭州 | 梁筑设计事务所

「阿喜茶楼」喜茶广州LAB店 · 广东 | 立品设计

未来味觉食验室 · 北京 | 与生建筑设计

SUJIAN-万塘治茶 · 杭州 | 杭州观堂室内设计有限公司

TARENTUM萄木L’Opéra希腊餐厅酒吧 · 深圳 | ATELIER XU建筑事务所