PAGEONE北辰荟,位于北京市朝阳区奥林匹克森林公园内。不同于以往以实体书籍阅读为主要体验的模式,新店空间尝试融合新的感观,以黑胶唱片概念为环境及内容主题,并希望打造出一种不同于以往的空间理解及相处方法,将音乐的沉淀故事提炼成书店的新意识形象。
▼书店外观


书本与黑胶,同为记录,回忆,保留,堆叠与分享,而因读取和理解的方式不同,又能带来共鸣却又特别的记忆感受与氛围。纸张与黑胶,视觉与听觉,想象与思考,贯穿于其中,将材质的感受与理解的抽象结合,将故事叙述于空间当中。
▼空间概念草图


▼室内空间

▼室内空间


于是,我们希望这是一个可以让人能够自然而专心去读与取,去思考与想象的属于自己的空间。四百平米的实用面积空间里,所有的空间材料都采用亲人的木质自然材质,在通透充满自然光的空间里,希望让人感受到书本纸张与黑胶年轮的经历记忆。空间,材料,界面,书本,文字,音乐,声音,阳光,所有的元素都尽可能仅仅单纯追求自然感受。
▼结构分析

▼空间材料都采用亲人的木质自然材质




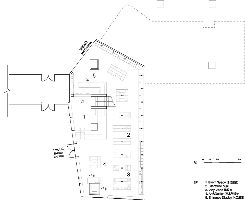
书店主入口临近街道,向建筑室外主空间开敞,连接首层书店的主要活动聚会场所,让开敞的通高阅读空间充分迎接自然氛围。堆积的书本,黑胶唱片,人们围坐阅读感受。当有活动时,唱片架书柜都可收起移动,变换布局,读书分享会,黑胶音乐会,让街道社区生活延伸至书店室内。空间内的主展示墙体将不规则的通高空间切换成为“主黑胶音乐厅”及阅读,咖啡,活动,孩童等几个人性化尺度的专注空间,使店内充满着黑胶的氛围,同时又能够帮助不同类别内容的融入结合。绕过主墙体走向书店的二楼,发现一条细长的阅读露台长廊,视觉专注于书本和天空,长凳排布,是躲着安静看书的空间。书店三楼,阅读的体验延续,同时结合建筑室内的多功能性,咖啡,主题阅读,随阅读长凳交错分布。让黑胶唱片的气氛,让书本,将建筑在不同的空间层拉紧。
▼空间布局轴测图

▼开敞的通高阅读空间

▼主黑胶音乐厅

▼主黑胶音乐厅

▼主黑胶音乐厅


▼阅读空间

▼不同类别内容的融入结合

▼不同类别内容的融入结合

▼空间草图


▼主墙体和楼梯相结合

▼通向二层楼梯

▼通向二层楼梯



▼细长的阅读露台长廊



空间里,没有触摸不到的书本与唱碟。展示不是空间的主意,所有阅读与音乐的空间都如可以自己将自己藏起来的久留休憩空间,舒适,有自然的痕迹,而可以专注于阅读与音乐。
▼咖啡吧台

▼舒适,有自然的痕迹的休憩空间

PAGEONE北辰荟黑胶概念店位于北京城北侧的奥林匹克森林公园内,与北京坊店沿着城市中轴线,南北呼应。北京坊的PAGEONE作为城市中的街巷,给予市民不同的建筑空间关系,北辰荟的PAGEONE则希望成为公园里的长椅,送给市民专注与感受自己的记忆。
▼舒适,有自然的痕迹的休憩空间




▼让市民专注与感受自己的记忆

▼夜景

▼夜景

▼一层平面图

▼二层平面图

▼整体架构布局

▼道具变形


项目名称:PAGEONE北辰荟黑胶概念店
项目类型:书店设计、概念店设计、书店陈列道具设计
项目地址:北京市朝阳区大屯路与北辰西路交叉路口 北辰荟 L136+ L230
客户:PAGEONE
室内设计/软装设计:llLab. 叙向建筑设计
主创及设计团队:陈霏、Luis Ricardo, 刘涵晓,魏子煜,严予隽,尹凌空,刘凌灵,胡乐贤,左超
结构顾问:栾栌构造设计事务所
建筑面积:400㎡
设计年份/建成年份:2023.9-2023.11 / 2023.11-2023.12
摄影版权:Wen Studio,存在建筑
感写观览、登录灵感LAB账号、点击文章顶部♥可收藏案例
更多该设计公司案例,请点击 → llLab. 叙向建筑设计
©非特殊说明,文章版权归原作者所有。

关注公众号

关注抖音号