这间“Blue Bottle Coffee”蓝瓶咖啡店位于国家现当代艺术博物馆前,毗邻首尔历史悠久的德寿宫,周围分布着众多被称为“韩屋”的传统韩国住宅。

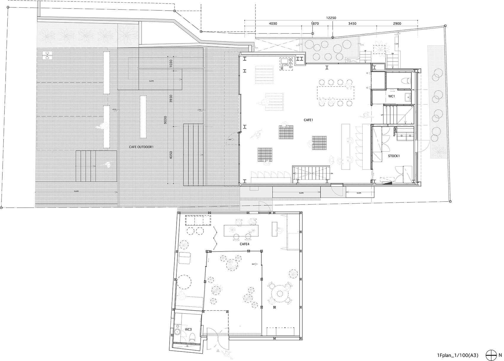
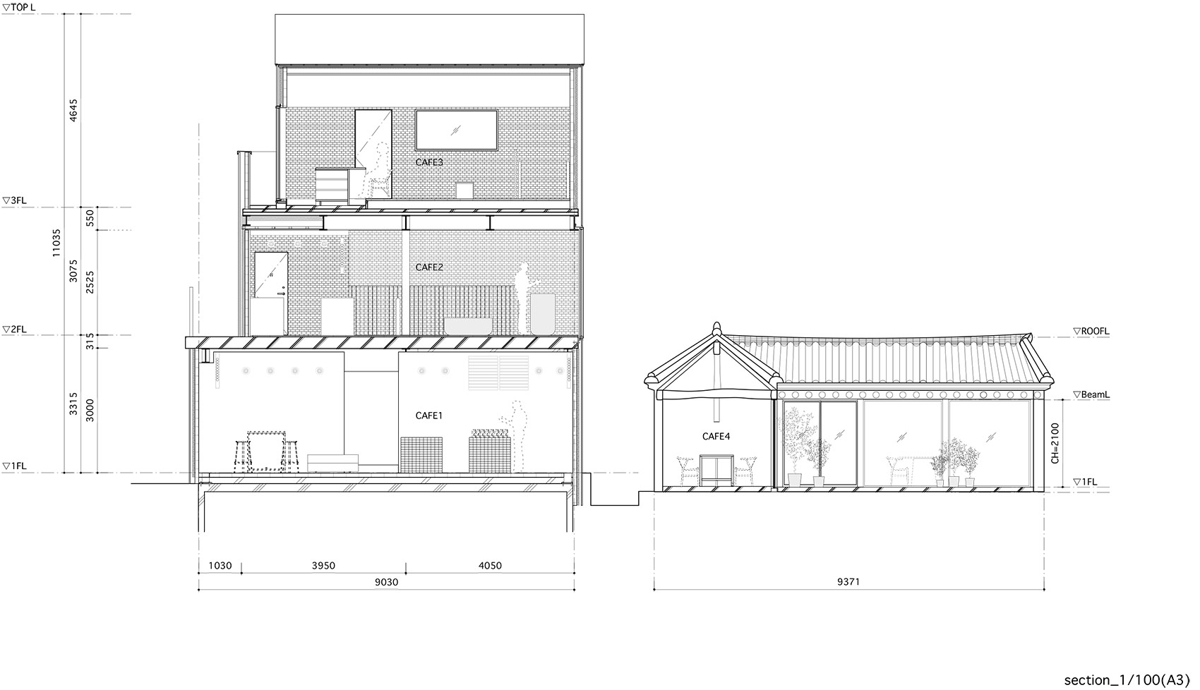
一栋三层的商业建筑和一座单层的韩屋在场地中比肩而立,咖啡店被设置在旁边的一栋四层建筑中。设计中结合了不同的场所环境,为的是让四个楼层具有不同的特征。无接缝的砖面铺地将室内外的阶梯式空间以及墙壁自然地衔接起来,与韩式建筑的宽接缝砖墙形成鲜明对比。通过这种方式,内部和外部空间得以连接,同时消除了道路与入口之间的分隔感和距离感。连续的砖砌体量局部抬升形成展示台和点餐吧台等家具元素。




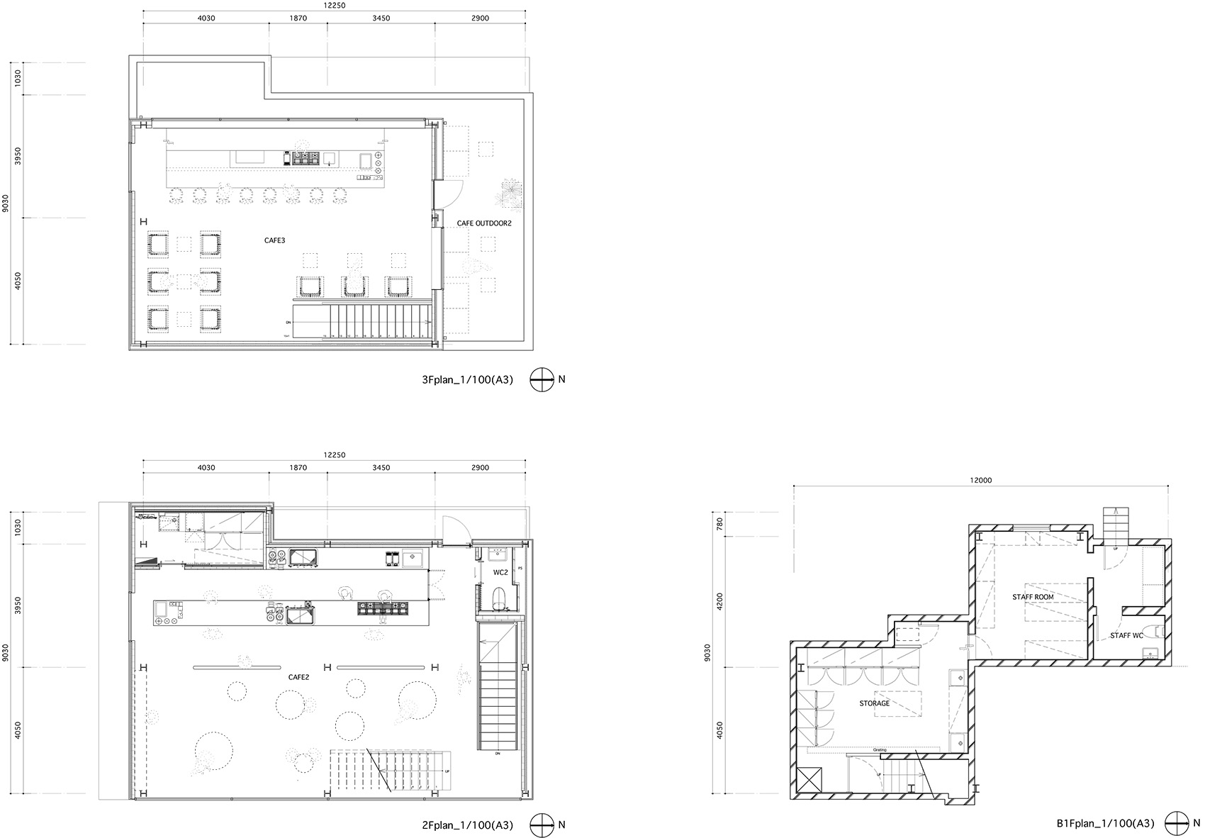
在到达二层时,客人的目光将与周围韩屋的屋顶持平。朝向韩屋群落的立面设置了大面积的窗户,使客人们可以欣赏屋顶上的动态风景;另一侧摆放着咖啡柜台,作为主要的饮品制作区,提供浓缩咖啡和滴流咖啡。座位采用软木制成,形成一系列尺寸不同的圆柱体,可供客人短暂停留。


三层空间将德寿宫和远处的山景充分引入室内。吧台被朝向壮观的视野,剩下的空间摆放着休闲座椅,为客人带来另一种惬意时光。


咖啡店旁的韩屋基于C形的平面而建,从而形成一个中央庭院。设计将该区域分别构想为客厅、餐厅和厨房,并搭配以不同类型的家具。咖啡店的工作人员可以在这些空间里为客人提供一对一的服务,这也是Blue Bottle的其他门店所不具备的特别服务。韩屋的入口处还设有一条特殊的通道,只有熟悉东侧韩屋群周围道路的人才能进入。



▼平面图


▼立面图

项目名称:“Blue Bottle Coffee”蓝瓶咖啡(三清洞店)
项目地址:韩国首尔市钟路区三清洞北村路5街76号(国家现当代艺术博物馆前)
室内设计:Schemata Architects
主创及设计团队:
占地面积:512.40m²
建筑面积:136.28m²
总建筑面积:360.44m²
主楼总面积:329.49m²
本馆1楼面积:105.33m²
本馆2楼面积:102.38m²
本馆3楼面积:65.83m²
主楼地下一层:55.95m²
韩屋总面积:30.95m²
韩屋1F面积:30.95m²
材料:石砖、实木、钢材、软木、环氧自流平、混凝土、钢化玻璃、白色乳胶漆
摄影版权:Kyungsub Shin
编辑版权©灵感LAB,禁止以灵感LAB编辑版本进行任何形式转载

关注公众号

关注抖音号

Harudot By Nana 咖啡烘焙店 · 泰国 | IDIN Architects

「BA」新法式烘焙 品牌空间设计 · 重庆 | 勉强设计事务所

CHOUCHOU面包店 · 广州 | 几何形态设计

EUEU餐饮店 · 广东惠州 | SORA索拉设计

爱乐信糖水局 OI-LOK-SHUN BUREAU·佛山 | 广州韶康室内设计有限公司

Holiland Travel – 好利来超时空旅行旗舰店设计·上海 | SLT