食物与机械的共生|
媒介在商业的历史进程中发挥着重要的传播作用,它本身蕴含着时代的属性,它的进步改变着人们接收信息的方式,进而推动人类思考和行为的进化。在这个项目中,我们希望利用空间装置作为载体、传播好利来的品牌精神,以更感性的方式与大众开展一场轻松而深度的交流。




无论是过去、现在或未来,人们始终保持着对食物更多维度的探索,从而推动着食品生产技术的不断迭代和创新,而食品工业的发展,也为人们的食味和生活带来了无限可能。这种共生的关系成为这一处空间概念的灵感来源,设计师试图从后工业时代的复杂性中摄取素材,创造出具有机械美学的趣味空间,搭载当代主流传播媒介,向新一代消费者转译好利来品牌内核中的探索精神以及全新的烘焙理念。








我们将场景想象成一个“系统化”的生产车间,在这里陈列的产品更像是精确、可控的工业制品。机械组件暗示着标准化与自动化技术的进步,通过艺术的表达将挑高的传送带以及循环搅动的面粉容器作为可陈列、展示的场景单元,让人们仿佛置身于一个“实验场”,感受机械化时代背景下的复杂性。同时,也为品牌与大众建立了一个立体的多维度的情感共鸣场所。





不同材质的拼接、覆盖、延伸都能让人们以最直观的方式感受空间的叙事性。泡沫铝、不锈钢等灰调材料在发光膜的均匀照射下表现出纯净的质感,通过对材料低饱和度的控制,确保机械装置作为叙事性主体存在于场景中。



设计师将烘焙产品的陈列纳入对设计的考量之中,将机械部分的喷砂不锈钢与局部照明部件结合起来,借此在食物的温度与材料的冰冷之间制造戏剧式的冲突,将顾客的注意力聚焦在食物本身。

轴测图:
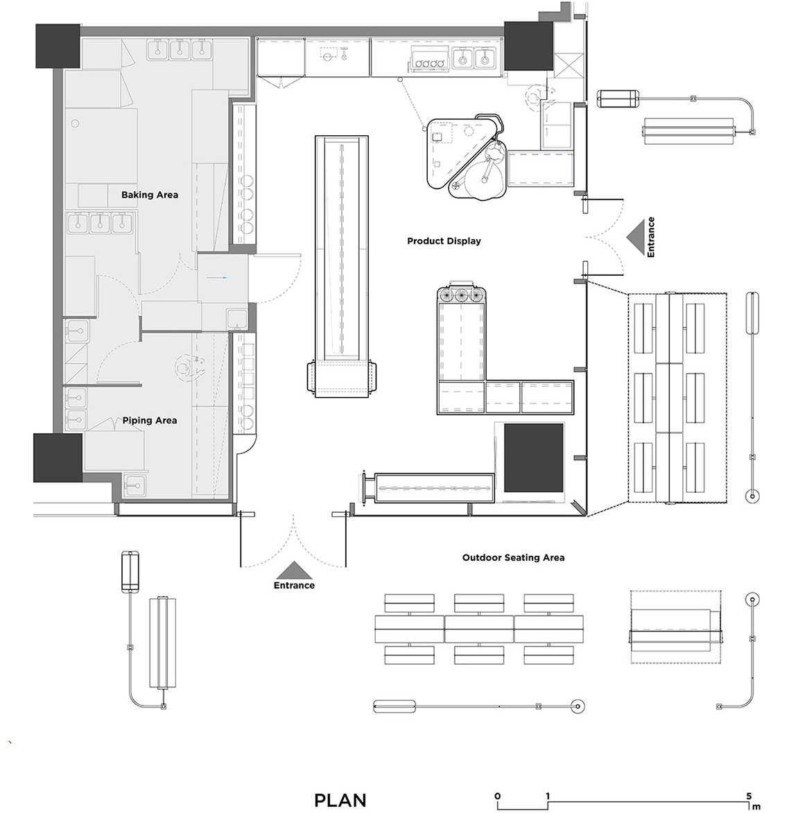
平、剖面图:

项目名称:“好利来”概念店(虹桥天地LAB主题店)
项目地址:上海市闵行区688号虹桥天地南区购物中心L1层
设计公司:DAS Lab设计工作室
建筑面积:80㎡
空间主材:泡沫铝(上海益荣金属材料有限公司)、贝多魔磨石地面(上海朵颐新材料科技有限公司)、雾面不锈钢(精钢世家)、火山石(上海金天迪建材有限公司)、渐变膜(台州贝莎美新材料有限公司)
摄影师:DAS Lab、邵峰
项目客户:好利来
编辑版权©灵感LAB,禁止以灵感LAB编辑版本进行任何形式转载

关注公众号

关注抖音号

Harudot By Nana 咖啡烘焙店 · 泰国 | IDIN Architects

「BA」新法式烘焙 品牌空间设计 · 重庆 | 勉强设计事务所

CHOUCHOU面包店 · 广州 | 几何形态设计

爱乐信糖水局 OI-LOK-SHUN BUREAU·佛山 | 广州韶康室内设计有限公司

EUEU餐饮店 · 广东惠州 | SORA索拉设计

Holiland Travel – 好利来超时空旅行旗舰店设计·上海 | SLT