智慧新天地创新中心项目位于杭州市高新区,钱塘江北岸,之江大桥旁,是汇集商业服务、商务办公功能为一体的智慧产业集聚区和孵化基地,未来将吸引一批高新技术产业和战略性新兴产业的入驻。场地的独特区位与未来特定人才的聚集,提出了不同于传统办公的新诉求。

为什么是模块化 | Why Modular
基地位于之江大桥进入滨江的门户位置,所在的沿江一面已经有成片的城市建筑作为背景,与其隔江对望的是连绵的山脉。绿色的缺失使得城市中的新生建筑正在失去与自然的联系,面对场地周边的环境,我们便产生了引入自然、模拟山体的想法。通过像素化的方式拆分形体,产生多平台,创造同自然山体般可攀登、可驻足的场景。
▼区位图

▼沿江立面

模块之山 | Modular Mountains
我们设置两栋独立的高层建筑满足不同企业对办公空间的需求。塔楼前后错动,并自然形成了入口及临江两个相互联系的广场。模拟山体的堆叠形式,两座塔楼由场地中心自下而上,逐层退让,获得两个楼栋间的最大距离,尽量减小相互干扰。受快速道路和临近规划高层的影响,退让的体块进一步交错移动;同时引入屋顶花园和共享观景平台,使自然从江边蔓延到建筑内部。
▼形体演变图

▼项目模型



▼形体与远山相呼应

▼东北面小鸟瞰

弹性生长 | Resilient growth
高新技术产业的发展往往超越当下社会的普遍认知,有一定的不可预测因素,这需要建筑空间的设计具备“弹性”,以适应各类新兴企业在发展过程中对办公空间拓展的需求。每个“盒子”设定为标准柱网和3-5层的模块化单元,适应了小型企业不同阶段的发展,可单层使用,亦可整体出租。
▼西南面小鸟瞰

▼西北面视角

立体花园 | Three-dimensional garden
传统办公塔楼的密封形态因为自然活动空间的缺失,造成办公环境枯燥沉闷。我们在项目中使用一系列灵活错动的体块,创造出丰富的户外露台空间。屋顶绿化与空中花园的植入打破了通常标准化办公空间的僵化现象,开放畅通的活动场所为其增添了活力,在带来积极体验的同时,也强化了绿色办公的理念,建立与自然的对话,促进使用者的社会交往,激发企业员工的凝聚力和创造力。
▼屋顶花园


怎么做模块 | 让模块更像模块
创新中心建筑的形象是一组堆叠的白色模块。传统结构做法中,同层板面平齐的情况下,悬挑部分下挂,露台部分面层叠加,错动的体块间会呈现咬合的形态。但在本项目中,我们想追求一种更为极致平整的观感,实现模块相接面的干净利落。我们将每个模块立面的上限控制在上层悬挑部分的吊顶收口高度,同层露台外部立面同样受此线控制。露台部分降低面板,预留足够的面层和室内外防水高差。不同标高的顶板通过斜梁联系为整体,实现悬挑、普通层、露台三个位置穿孔板顶部平齐的堆叠效果。
▼坚塔路视角

▼底层院落空间



同时,为了避免室外机设备和凸出的电梯冲顶井道对平整度的影响,我们将核心筒分高低区分散布置。低区核心筒电梯提前一层收口,楼梯保留满足疏散需求。利用露台与下层面板的高差区设置降板空间,作为电梯冲顶的缓冲。原先应外置在露台的设备也整合藏于降板空间内,顶部设通风百叶,提升了露台的空间品质,也让“盒子”之间的边界更加清晰,建筑形体更显轻盈。
▼沿街立面


从模块到模数 | From modules to modulus
立面上,我们采用了内部玻璃外衬穿孔板的双层幕墙体系,以减少对桥面交通造成光学影响。为了与形态的极致呈现相契合,形体错动与建筑立面均遵循一定逻辑:错动距离与结构柱网的1/3、1/4计算相对应,再以最小公约数将进退尺寸拆解为更小单元对立面进行控制。
▼底层视角

设置南北3米、东西2.8米的立面模数框架,使得立面分割与错动位置都严格受此控制形成上下对应。再在框架上覆以1/4宽度的穿孔板,采用渐变肌理,延伸至角部通高空间处逐步剥离。一系列的控制措施实现了建筑形体的精准感与纯粹性,同时,模数化的控制也落实于景观、设备等方面,构成统一秩序。
▼立面模数化框架



结语 | Conclusion
智慧新天地创新中心在设计师追求精巧、偏执于精致的坚持下最终得以呈现。它代表了高新企业办公的前沿面貌,也表达了我们对新一代城市空间的思考。作为可持续、创新和面向未来工作场所的典范,期冀它成为滨江高新区高质量发展的一个缩影,形成沿江区域自然和科技和谐共存的办公花园。
▼西北面小鸟瞰

▼总平面图

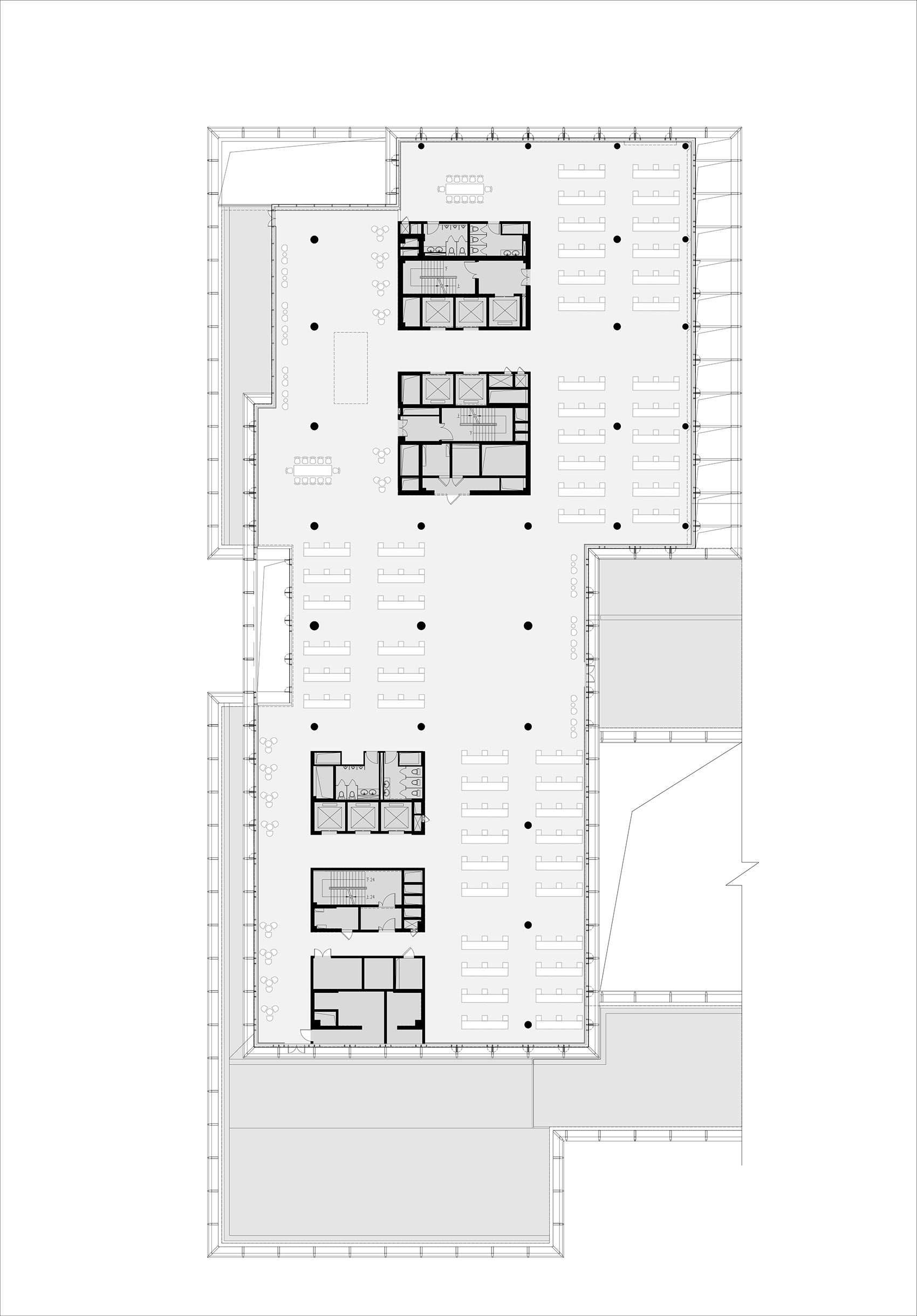
▼一层平面图

▼标准层平面

▼立面图




▼剖面图




▼结构图



项目名称:智慧新天地创新中心
项目类型:办公建筑设计、办公楼设计
项目地址:中国 · 杭州
客户:杭州高新金投控股集团有限公司
建筑设计:gad杰地设计
施工图设计:gad杰地设计
景观设计:gad久和
室内设计:典尚建筑装饰有限公司
项目总监:张微
项目主创:程越
团队成员:郑一林、郭欣欣、孙骏、施懿媛、章静(建筑)、宋仁乾 钟舟能(结构)、张斌 胡挺(给排水)、李金牛(暖通)、卓祖航 余海洋(电气)、郭宇 周润 王丁丁(景观)
用地面积:20002㎡
建筑面积:89891.8㎡
容积率:2.9
设计年份:2017.08
建成年份:2023.06
材料:穿孔板/铝板-高士达、玻璃-信义
摄影版权:建筑译者姚力
感写观览、登录灵感LAB账号、点击文章顶部🤍可收藏案例
更多该设计公司案例,请点击 → gad杰地设计
©非特殊说明,文章版权归原作者所有
编辑版权©灵感LAB,欢迎转发,禁止以灵感LAB编辑版本进行任何形式转载

关注公众号

关注抖音号

Escenario SHIROKANE住宅综合体·日本 | Sasaki Architecture + YTRO Design Institute

盛泽坛丘缫丝厂改造 · 苏州 | 平介设计

重庆来福士·重庆 | Safdie Architects

通州潞城市民中心·北京 | 意度建筑

模块花园-智慧新天地创新中心 · 杭州 | gad杰地设计

福南·新加坡 | Woods Bagot