MONOLOGO (谟农咖啡)的选址在北京751园区的工业景观保护区内。南侧的炉罐区得以完整保留,西侧与园区主路之间是一片开阔的场地。
▼项目视频
▼店面外观



▼店面与邻近的工业遗址


▼取餐口


▼店铺夜景




▼入口区域概览

基地核心部分是一栋混凝土框架结构的厂房,建于上世纪七十年代。场地中央保留了三个大型炉罐。厂房东南西三面分两次加建了黄色和黑色两处钢结构的部分。我们这次的改造可以算作这个场所的第四次“生长”。我们希望前三次的记忆能被完整的保留下来,并通过这次的方案将它们串联成一个完整的故事。
▼设计概念

▼室内概览




▼场地中央保留了三个大型炉罐




我们首先用三种材料为三部分的空间分别设计了一套家具:为炉罐区设计了镶嵌金色瓷砖的混凝土家具,为黄色钢结构区域设计了桦木多层板家具,为黑色钢结构部分设计了不锈钢的厨房家具。三套家具加强了三个部分不同的场所体验,有时代感的材料与构造做法让也体验者易于发现新与旧的区别。
▼炉罐区设计了镶嵌金色瓷砖的混凝土家具


▼桦木多层板家具


▼包间

▼厨房内的不锈钢家具

第二步,我们在三个部分的交界处安放了三排细长的“扁柱”,穿针引线,将这三部分重新“缝合”在一起。扁柱能将两侧的自然光进行过滤,使核心空间的光线更加柔和。人们在空间漫步时,视线被局部的遮挡,随着行走视点的变化,遮挡与通透不断地进行交替,形成了丰富的层次感。空间因此产生了引导性,鼓励客人去体验和发现。透过扁柱的间隙,客座区的客人可以看到整个烘焙和后厨的区域,看到咖啡制作和食物加工制作的全过程。
▼细长的“扁柱”作为不同空间的过渡



▼透过扁柱的间隙可以看到整个烘焙和后厨的区域

第三步是用一个纯白色的“外套”将这三部分包裹成一个完整的方盒子。白色半透明的聚碳酸脂板立面非常纯净,从外部看不到任何框材结构,白天可以将自然光引入,晚上的灯光还可以穿透到外部。带有一点临时感的姿态与周围的工业景观保护区形成了有趣的对话。
▼包间花园

▼从花园望向包间

咖啡馆是一种城市公共空间。MONOLOGO的室内空间高大空旷,其中伫立着纪念碑式的炉罐,两侧高大的柱列加强了空间的纪念性,进入的瞬间宛如走进一座上个世纪的遗迹。南北两侧的立面被设计为可以完全敞开,室内空间可以切换为有咖啡座的城市广场。
▼完全敞开的就餐区

我们在空间的顶部紧贴楼板布置了均匀的条型灯。这种朴素的布光使得室内光线的效果与自然光非常接近。光线把空间中每一件物品,包括顶部的管线与设备全部照亮,弱化了内与外的区分,同时也赋予了空间中所有元素以同等的尊严。
▼卫生间

▼卫生间内部概览

▼卫生间细节

▼吧台

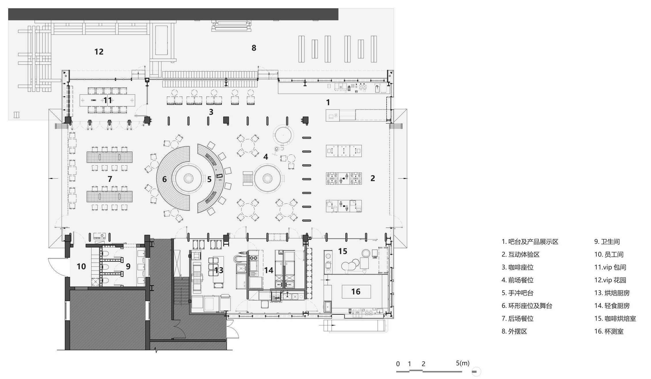
▼平面图

项目名称:谟农咖啡
项目类型:咖啡店设计、饮品店设计、陈列道具设计
项目地址:北京
甲方项目管理:王南南
室内设计:空间站建筑师事务所
主创设计师:汪铮
项目负责人:杨杰
设计团队:向怀志、陆娟
施工图负责人:许辉
商业模式咨询:凹凸合作社
给排水设计:张沙
暖通设计:卢芊
电气设计:闫天雄
后厨设计:北京东邦御厨科技股份有限公司
工程技术负责人:张兵
工程项目经理:吴晓峰
工程现场负责人:陆其中
工程电气负责人:从向阳
施工方:北京海汀顿建筑设计工程有限公司
建筑面积: 375㎡
设计年份/建成年份:2022.4-2022.10/2023.4
摄影版权:空间站建筑师事务所\金伟琦
感写观览、登录灵感LAB账号、点击文章顶部?可收藏案例
更多该设计公司案例,请点击 → 空间站建筑师事务所
©非特殊说明,文章版权归原作者所有。
编辑版权©灵感LAB,欢迎转发,禁止以灵感LAB编辑版本进行任何形式转载

关注公众号

关注抖音号

HelloArt艺术客厅设计·杭州 | Artdeep艺痴设计

MOViE MOViE影城与库布里克书店-前滩太古里 · 上海 | LUKSTUDIO芝作室

Harudot By Nana 咖啡烘焙店 · 泰国 | IDIN Architects

Tanatap框架花园 · 雅加达 | RAD+ar

Dotcom Coffee青岛海边店 · 山东 | 龙工作室 Atelier LOONG

盛泽坛丘缫丝厂改造 · 苏州 | 平介设计