Gluten Tag项目是将一家旧银行办公室改造成一间无麸质烘焙店。项目面临着两个主要问题:首先是预算极其有限,甚至不能提供店铺正常运转所必要的经费;其次是需要为烘焙店的顾客打造无障碍洗手间的义务,这进一步紧缩了项目的预算。
▼空间概览

▼店铺门头

设计者通过经济手段,试图将上述困难转化为机遇与挑战。他们将空间中的所有表面材料和油漆全部清理掉,将混凝土和砖石材料的墙体显露出来,使空间的感觉发生了巨大的变化,呈现出由岁月带来的不同痕迹。
▼轴测图

▼入口处


▼吧台围绕中央的洗手间体块布置

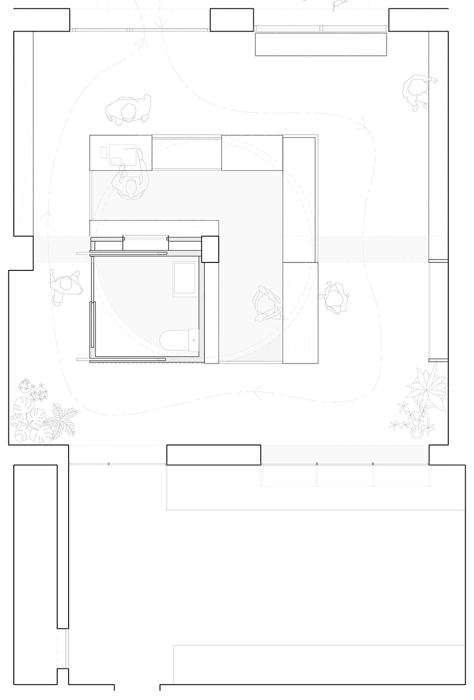
位于空间中央的新建洗手间呈现为立方体状;整个柜台围绕着这个立方体进行布置,就像一条连续的路径,形成了空间的另一种氛围。与空间的原始材料不同,柜台由木材和波浪形的金属板等华丽的材料制成,进一步加强了原始空间和人工制品这两种不同感觉的对比。
▼围绕洗手间的柜台

▼柜台上方的圆形灯具

店铺的照明系统由悬挂在崭新柜台上方的圆形红灯具提供,灯光闪烁,在空间中不断反射,突出了不断循环的想法。
▼裸露的墙壁


▼木材和波浪形的金属板

▼操作间

▼轴测平面图

▼平面图

项目名称:Gluten Tag Bakery
项目类型:烘焙店设计、面包店设计、甜品店设计、门头设计
项目地址:巴塞罗那
室内设计:Aramé Studio
建筑面积: 130㎡
设计年份/建成年份:2022:
摄影版权:DEL RIO BANI
感写观览、登录灵感LAB账号、点击文章顶部🤍可收藏案例
更多该设计公司案例,请点击 → Aramé Studio
©非特殊说明,文章版权归原作者所有。
编辑版权©灵感LAB,欢迎转发,禁止以灵感LAB编辑版本进行任何形式转载

关注公众号

关注抖音号

Harudot By Nana 咖啡烘焙店 · 泰国 | IDIN Architects

「BA」新法式烘焙 品牌空间设计 · 重庆 | 勉强设计事务所

爱乐信糖水局 OI-LOK-SHUN BUREAU·佛山 | 广州韶康室内设计有限公司

CHOUCHOU面包店 · 广州 | 几何形态设计

EUEU餐饮店 · 广东惠州 | SORA索拉设计

Holiland Travel – 好利来超时空旅行旗舰店设计·上海 | SLT