太阳破晓,金色的阳光洒满人间,世界伴着烟火气苏醒,人生万象,生活百态,繁忙都市里的我们在追寻人生的理想,闲暇的日常中,就要安然自在,顺应本心,一场邂逅,一场相约,一场惬意小聚,虽说浮生如逆旅,也应多寻些盎然之意趣。转身,觥筹间的闲适,一间弥漫着乐趣与爱意的的小店,蔓延着暖阳之意,在惬意与韵味之中,开启一日的味蕾与浪漫之旅。

此番,LOVE GIFT 愚园路68号概念店的设计,DAS Lab从品牌任务的理性拆解到商业价值的感性呈现经历层层推敲打磨。原现场筑地面积不大且布局生硬冷漠,空间体感局促单调,设计突破的关键点在于从视觉、方向与层次感构建一个视觉亮点,并且追随品牌的曲率移动轨迹,打造一个功能分区鲜明,且助力品牌给人以极具韵律美的温暖空间。




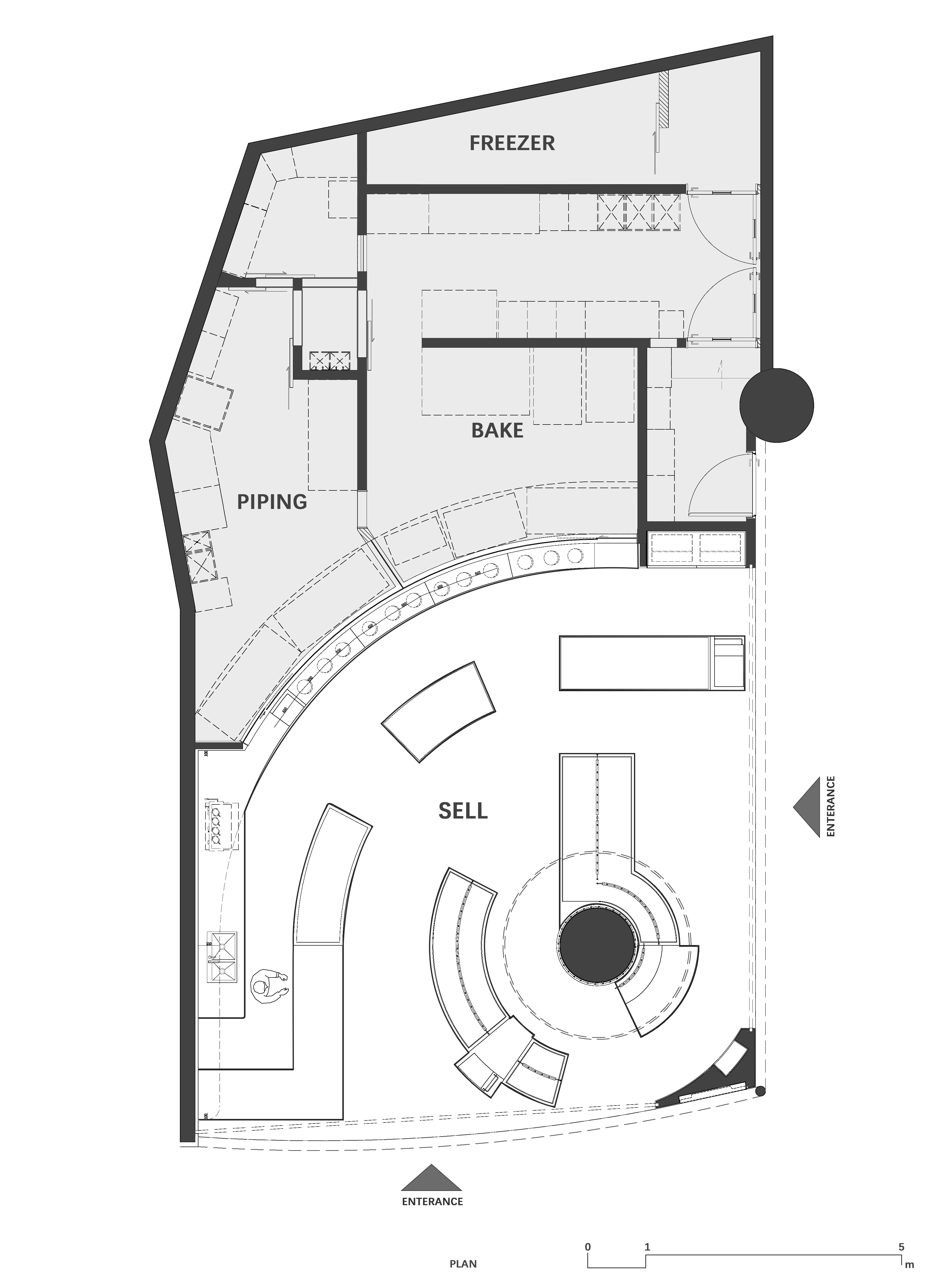
初遇,一条轻盈的环状动线,围绕中间圆柱打破了原来的块状短线布局平衡。结合DAS Lab融入品牌温暖治愈的调性切出一块块扇状弧面。此处,空间创新和品牌文化的融合,释放出一道空间魔法,视野焕然舒缓开阔。
日环扇状处理改善了原先局促狭窄的空间体感,柔和轻盈。同时,环形与弧面曲线的一致令空间风貌层次分明。站在环形动线前驻足的那些目光被牵引着,开始向内欢快探索。





▼爆炸图

▼节点

▼概念演示

空间色彩渐变暗合破晓时分日色渐变的过程,仿若推开了一幅人们日出而作的生活画卷。地砖、墙面、柜台,餐盘架,和磨砂树脂亚克力灯管,在同一色系的引导下保持低饱和度的渐变用色,给不同材质的物件穿上轻盈、温柔又热情的品牌外衣,从视觉感官上进一步提升了消费者对LOVEGIFT的认知定位,亲切且精致,别具品味。









柱顶的灯带色温向外渐降的设计,印合太阳于地平线升起点点上色的视觉流变;柱体的亚克力灯模拟烤箱,亦散出炙热感。熟悉的视觉与体感刺激层层递进,加深顾客对品牌的记忆,同时,提高顾客对产品的期望,将味蕾的刺激和诉求转移到品牌体验感,新的品牌风格,总会令人期待着新的美味呈现。




重构LOVE GIFT愚园路68号后,环形动线所处域场体感轻盈明朗,渐变灯带流变出属于日色光影的感性自然,而亚克力灯装置则向人们散出独属于烤箱的热力。

于精巧设计下,城市广场坚硬的空间亦营造出一种人文情愫的“柔性”特质,勾起居于城中的人们记忆深处那些一饭一蔬的具体生活。城市喧嚣,在此处,亦是自然美好,平静日子里的人间烟火袅袅升起,清光淡雅日日常新,那些值得人们铭记的热烈与浪漫,在这里都可以被温柔接纳。


▼平面图

项目名称:爱礼甜品概念店设计-上海晶品广场
项目类型:商业空间设计、零售店设计、LAB店设计、连锁店设计、概念店设计、餐饮空间设计、咖啡厅设计、甜品店设计、面包店设计、蛋糕店设计、陈列道具设计
项目地址:中国 · 上海
客户:上海沃德爱礼品牌有限公司
客户团队:爱礼(上海)餐饮服务有限公司
室内设计/道具设计:DAS Lab
主创及设计团队:丁义军、罗辉、吴芷仪、沈煌伟、张洪彪、李正志、梁雨露
建筑面积:150㎡
建成年份:2022.08
动效团队:YUAN STUDIO
摄影版权:YUAN STUDIO
感写观览、登录灵感LAB账号、点击文章顶部🤍可收藏案例
更多该设计公司案例,请点击 → DAS Lab
©非特殊说明,文章版权归原作者所有
编辑版权©灵感LAB,欢迎转发,禁止以灵感LAB编辑版本进行任何形式转载

关注公众号

关注抖音号

Harudot By Nana 咖啡烘焙店 · 泰国 | IDIN Architects

「BA」新法式烘焙 品牌空间设计 · 重庆 | 勉强设计事务所

爱乐信糖水局 OI-LOK-SHUN BUREAU·佛山 | 广州韶康室内设计有限公司

CHOUCHOU面包店 · 广州 | 几何形态设计

EUEU餐饮店 · 广东惠州 | SORA索拉设计

Holiland Travel – 好利来超时空旅行旗舰店设计·上海 | SLT