位于上海的gaga Coast餐厅运用海岸元素,打造出极具地中海风情的餐饮空间。经由联图改造设计,一幢三层楼建筑化身为精致田园风餐厅,为客人们呈上别具一格的用餐体验。三个楼层各具特色,富有变化的色调与材料质感描绘出故事中的不同层次。首层的草绿色连接着花园与露天咖啡馆,二层的绯红色呼应着身为餐厅焦点的烧烤架,三层的黑色烧杉木则与白色水洗冰川纹石墙以及房屋原有的传统木结构屋顶形成鲜明对比。

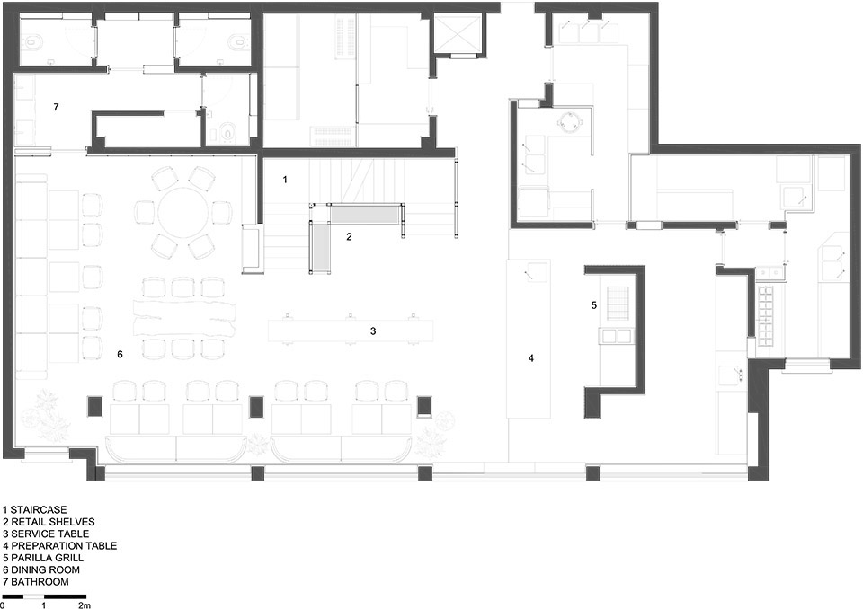
首先是一层:白天,这里是一家咖啡馆,到了晚上则化身为酒吧。绿色釉面火山岩墙面覆上了手工打造的铜绿色光泽。打开木窗,映入眼帘的是种有橄榄树的花园。最引人瞩目的吧台则由天然木材打造而成。
▼一层空间

▼绿色釉面火山岩墙面与木窗

二层是温馨而私密的餐厅,装饰着白色水洗冰川纹石墙与木壁板。烧烤架与长餐桌是二层空间的亮点。开放式厨房则贴上了由研磨咖啡制成的瓷砖。错落有致的木质天花板配合着不同私密度的用餐区域,窗边则是舒适的沙发座。二层还摆放了一张尺寸较大的圆桌,Santa & Cole出品的纸质甜甜圈造型灯笼悬挂在圆桌上方。
▼二层开放式厨房



▼就餐区

▼窗边舒适的沙发座

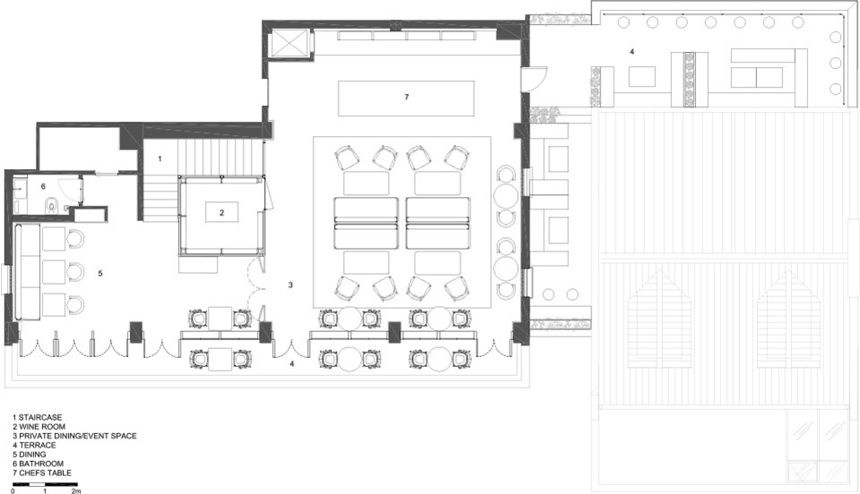
三层是一个雅致的木结构空间,上方的斜屋顶铺有传统的中式灰瓦。白色水洗冰川纹石墙面在三层再度登场,配上对比鲜明的黑色烧杉木,成为了衬托长餐桌的背景图。宽敞的第三层空间可用于举办私人晚宴或活动。同样位于三层的大阳台则能俯瞰新天地的热闹景象。
▼三层空间

▼雅致的木结构空间

▼三层空间可用于举办私人晚宴或活动

▼白色水洗冰川纹石墙面

一座楼梯将三层空间串联为一个整体。楼梯间的墙面饰有抽象造型海洋生物石膏画。编织绳将楼梯结构层层包裹。三楼的楼梯顶部则有一间木板围成的藏酒室,吸引客人们品尝精选美酒。
▼楼梯轴测图

▼楼梯间细部


联图设计的定制家具在餐厅里随处可见,另使用了Santa & Cole出品的纸灯笼以及Studio KAE出品的咖啡灯。联图也为餐厅设计了全新的视觉识别体系。通过排版、间隔与涂鸦等方式,新的视觉元素给人以变化与律动之感。加入一丝随性、令人玩味的元素,宛如穿越海岸的旅人日记。品牌标志则是一幅手绘的铅笔画,代表了gaga品牌的“g”。
▼Santa & Cole出品的纸灯笼以及Studio KAE出品的咖啡灯


▼夜景



▼材质细部与logo


▼一层平面图

▼二层平面图

▼三层平面图

项目名称:Gaga Coast餐厅
项目类型:餐饮空间设计、酒吧设计、咖啡厅设计、西餐厅设计、主题餐厅设计、复合餐厅设计、连锁餐厅设计
项目地址:中国 · 上海
室内设计:联图建筑设计
主创及设计团队:Alex Mok、Francis del Felice、Mia Zhou、Fei Wang、Cherngyu Chen
建筑面积:620㎡
建成年份:2022年
摄影版权:Wen Studio
感写观览、登录灵感LAB账号、点击文章顶部?可收藏案例
更多该设计公司案例,请点击 → 联图建筑设计
编辑版权©灵感LAB,欢迎转发,禁止以灵感LAB编辑版本进行任何形式转载

关注公众号

关注抖音号