由堆叠和悬挂式木箱制成的展示系统是这个新的Blue Bottle咖啡馆的标志性特征,该咖啡馆占据了旧金山市中心20世纪20年代砖砌建筑的一部分。该咖啡馆位于市区南部的市场区,坐落在一座近百年历史的砖结构中,曾经是科勒水暖供应仓库。咖啡厅占据了占地1,200平方英尺(111平方米)的店面空间。


对于自适应再利用项目,该团队寻求创造一个充满简约美感的光线充足的内饰。保留建筑物的原始元素也是一个引导关注点。


墙壁漆成淡蓝色,墙上有一个大型公司标志 – 绿松石瓶。可以购买的咖啡袋和餐具都位于框架内,创造了一个引人注目的商品展示。服务柜台由不锈钢和桦木胶合板制成。柜台下的Mavam浓缩咖啡机有助于咖啡师与顾客之间更好的目光接触。桌子和座椅由金色木材制成,与深色混凝土地板形成鲜明对比。“顾客可以在整个空间的实心灰烬长凳上坐下来喝咖啡,以及沿着窗户放置的长椅,”Bohlin Cywinski Jackson说道。

该商店设有Blue Bottle的第一家Cold Bar,供应无酒精鸡尾酒风格的咖啡饮品。例如,Oji Old Fashioned采用冷酿造,茉莉花茶和淡淡的香草和新鲜橙皮制成。这是Bohlin Cywinski Jackson为Blue Bottle设计的第一家咖啡馆。

▼分析图

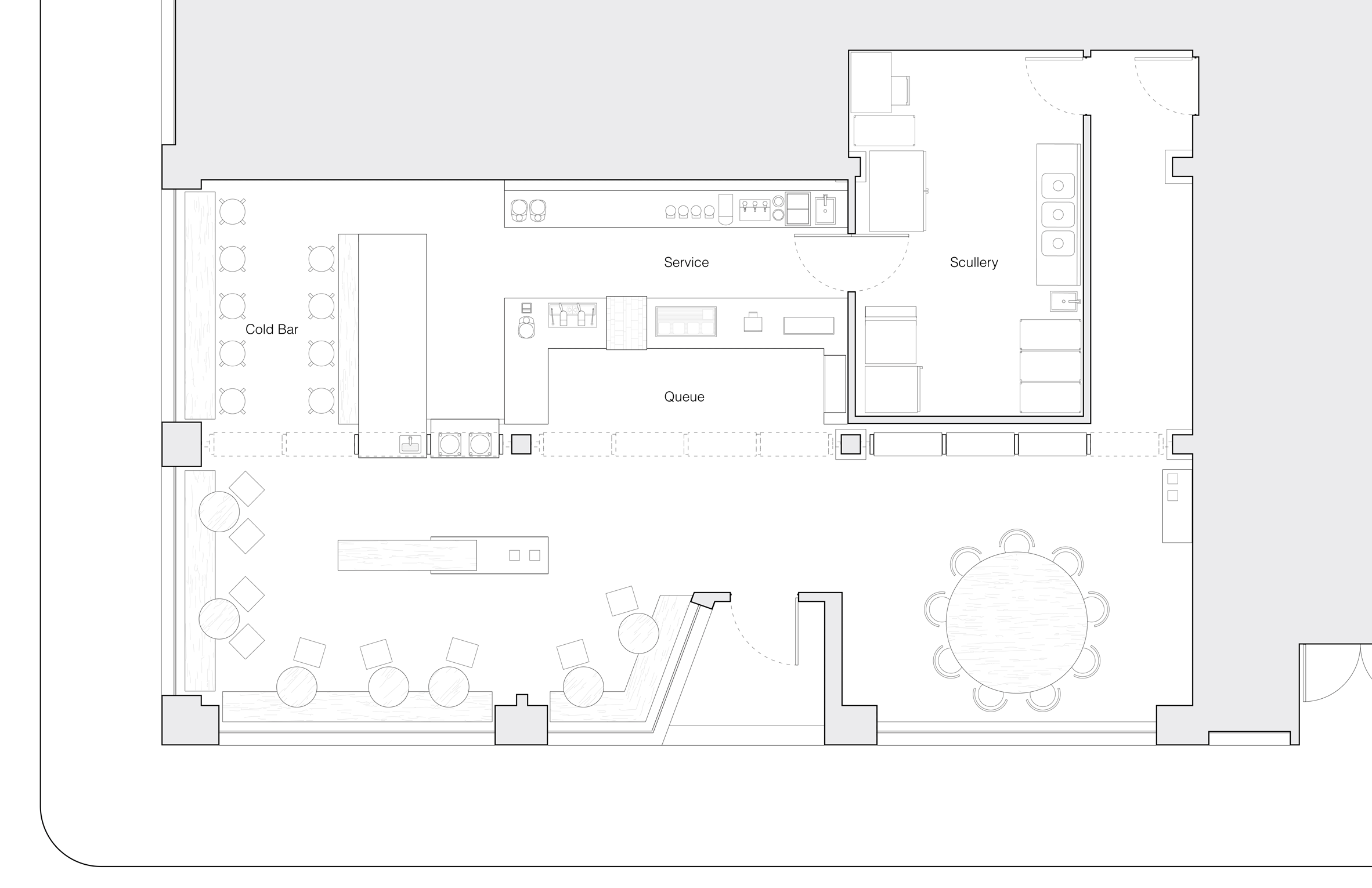
▼平面图

项目名称:Blue Bottle Coffee蓝瓶咖啡店
项目类型:餐饮空间设计、咖啡店设计、饮品店设计
项目地址:美国 · 旧金山
设计方:Bohlin Cywinski Jackson
建筑面积:111㎡
编辑版©灵感LAB,欢迎转发,禁止以灵感LAB编辑版本进行任何形式转载

关注公众号

关注抖音号

HelloArt艺术客厅设计·杭州 | Artdeep艺痴设计

MOViE MOViE影城与库布里克书店-前滩太古里 · 上海 | LUKSTUDIO芝作室

Harudot By Nana 咖啡烘焙店 · 泰国 | IDIN Architects

Tanatap框架花园 · 雅加达 | RAD+ar

Dotcom Coffee青岛海边店 · 山东 | 龙工作室 Atelier LOONG

盛泽坛丘缫丝厂改造 · 苏州 | 平介设计