联系我们投稿
灵感LAB - 空间灵感补给实验室
EYST 1779 咖啡馆 ·韩国 | T-FP
0 FAVORITE1238 VIEWS0 COLLECTIONS
2022-11-16 RELEASE DATE
2022年

 

庆州的崔氏家族最近启动了一个名为“崔氏之家”的基金会,以实现贵族义务。作为此项目的一部分,位于庆州京东韩屋村(Gyo-dong Hanok Village)入口处的唯一西式建筑被改造成咖啡馆。在尊重该地区的历史和文化背景的同时,我们希望这个项目成为一个连接过去和未来的符号。

 

 

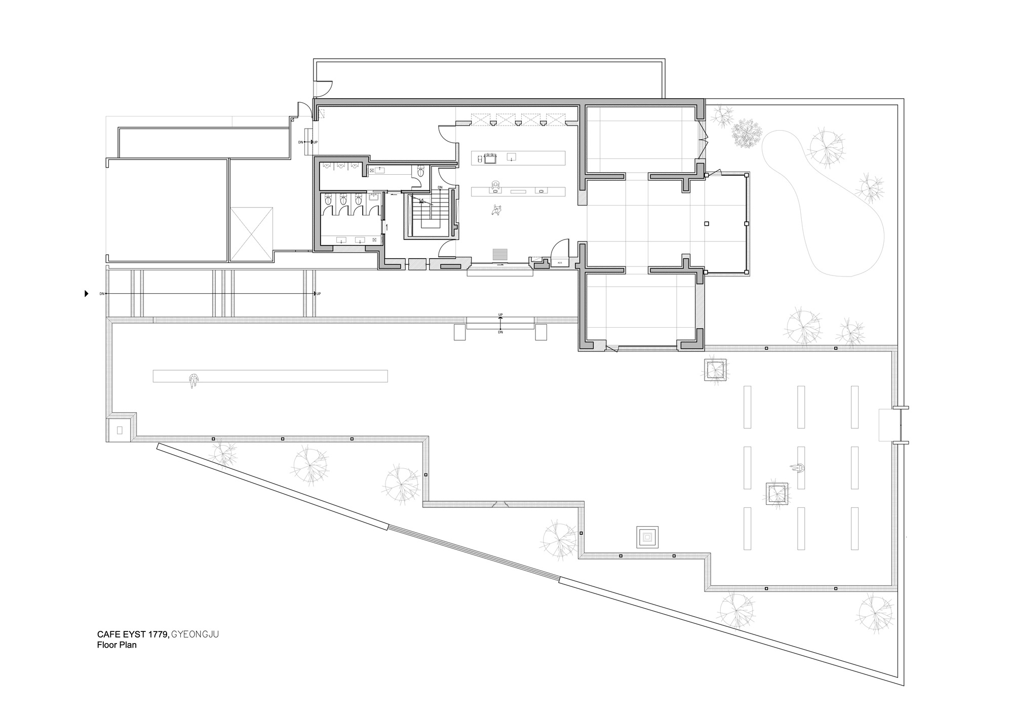
EYST1779 的建筑理念的关键在于砖。砖是长期以来最广泛应用的材料之一,在未来也仍旧如此。因此,我们认为砖是契合项目主题——联系过去与未来——的合适材料。我们选择了与周围环境相协调的红砖,而且使用了红砖的整个体量也有很强的存在感。地面、墙壁和顶棚均由砖砌成,更加清晰并强烈地表达出这个场地的身份和印象。此外,我们认为逐块砌砖也可以类比为时间的堆积。在地板、墙壁、门/窗框、吧台、照明等处采用的现代图案和不锈钢点缀,则是对未来的隐喻。

 

 

老建筑的庭院里原有很多杂乱的景观和树木。我们清理了院子的中央部分,使其成为一个迎客广场,并放置了简洁、厚实风格的木凳,以供人们更舒适地休憩。室内空间包括带有挑高天花板和天窗的主厅,以及四个有不同景观的座位区。我们为每个区域设置为不同朝向,并将花园的美丽景色引入室内,为来访者提供难忘的体验。

 

 

庆州是一座千年古城,有着悠久而深厚的历史文化底蕴。我们希望 EYST1779 可以成为一个耐久的、可持续发展的建筑,而非随着时间的推移一闪而过的商业空间

 

 

项目名称:EYST 1779 咖啡馆

项目类型:咖啡厅

项目地址:GYEONGJU, 韩国

建筑设计:T-FP

指导与设计 : Jaeyoung Choi

设计 : Seongsin Choi

施工 : Hwanmin Lee

建筑面积:309㎡

建成年份:2022

材料:红砖

摄影版权:Kiwoong Hong

编辑版权©灵感LAB,欢迎转发,禁止以灵感LAB编辑版本进行任何形式转载

关注公众号

关注抖音号