梅里雪山既下山酒店是一个改扩建项目,其前身是季候鸟雪山旅馆。项目位于云南省迪庆州德钦县雾浓顶村,其用地属于这个村子的第23户人家。季候鸟雪山旅馆本身也是对一个48柱木框架结构的夯土藏房的改造。当时因为荷载、防水、隔音、以及消防验收等问题,用混凝土框架结构替代了原始的木结构。但是保留了夯土墙和平面中心的天井。旅馆建成之后,成为通往西藏的214国道上的重要驿站,也是眺望和观赏梅里十三峰全景的最佳地点。
▼远景中的梅里雪山与位于中景右侧的酒店

▼酒店主体建筑

▼场地位置和视野分析

▼酒店视野剖面

2015年,行李旅宿的创始人赖国平先生决定把季候鸟雪山旅馆改造为一个小型精品度假酒店。新的酒店将取消“季候鸟”冬季四个月的歇业期,改为全年营业。这就是梅里雪山既下山酒店的滥觞。
▼2008年大藏房的原始状态

场地策略
改造的第一个需求是要增加使用面积,建筑空间必须突破现状大藏房的格局。大藏房南侧有一片缓坡,顺着坡地望下去,可以完美地俯瞰恬静安详的雾浓顶村。我们从大藏房南面探出一个朝向雾浓顶村的餐厅。餐厅平面呈喇叭形,喇叭嘴插入大藏房外墙上,喇叭口朝南,空间面向雾浓顶村逐渐打开;从剖面上看,餐厅内部地面的阶地形跟地形坡度完全吻合,这样,整个空间的向度就跟雾浓顶村完美锁定,每一级阶地上的餐桌都能直接观赏到雾浓顶村的景观。从形体外观上看,这个三角形的餐厅跟大藏房的关系相对独立,更好的维护了大藏房单纯的形体印象。
▼一层平面图:从大藏房南面探出一个朝向雾浓顶村的餐厅

▼立面图

▼餐厅外观

▼餐厅室内与外部景观的关系



▼餐厅室内夜景

▼从餐厅入口处看向雾浓顶村

我们把现状建筑三楼的露台封闭起来用作客房空间,让大藏房呈现出一个更简单直接的立方体“完形”,然后把酒吧放到三楼屋顶上,用水平延展的挑檐覆盖一个南、西、北三面都透明的空间。酒吧的檐口和露台的栏板限定了雪山水平长卷的上、下边界,基本上可以比较有效的截取从中景的飞来寺到十三峰远景的理想画幅。画面没有设定左右边界,取消了框景,视线在完成对雪山的凝视之后会跟随天际线向南北两侧自然转移。

▼酒吧西向的视野

▼酒吧南向的视野

▼酒吧北向的视野

中庭
从冬季保温的角度出发,我们把原建筑的天井覆盖为中庭。中庭是酒店空间的核心部分,也是整个设计中最难拿捏的环节。首先,为了改变大堂幽暗压抑的状态,我们打掉中庭部分二楼的楼板,改善了大堂进深和层高的比例关系;然后,考虑到四层高的中庭过于高耸,就把中庭部分的地面抬升到第二层,并把这个空间当作图书馆使用。
▼实施方案剖面模型

大堂和图书馆空间因此在剖面上联系起来,到达大堂的客人比较容易的被高处的中庭吸引而开始一段向上的空间游历。最后,我们用三段直跑楼梯把地面层的大堂,二层的图书馆和四层的酒吧连接起来。这三段首尾相接的直跑楼梯是通往雪山酒吧距离最短、转折最少的路径,也是形式上最凝练的表达。从二层到四层的两段楼梯用实体栏板隐藏了支撑楼梯跨度的钢结构,在中庭的东西两侧凌空斜跨,几何的抽象感让这两段楼梯从日常性中抽离,又在纪念性中凸显,一个天光下通往雪山的天梯,隐喻着一段浓缩的“朝圣”之旅。
▼从大堂通往图书馆的楼梯

▼中庭概览


▼从二层到四层的两段楼梯用实体栏板隐藏了支撑楼梯跨度的钢结构

▼三楼连廊回看大堂方向


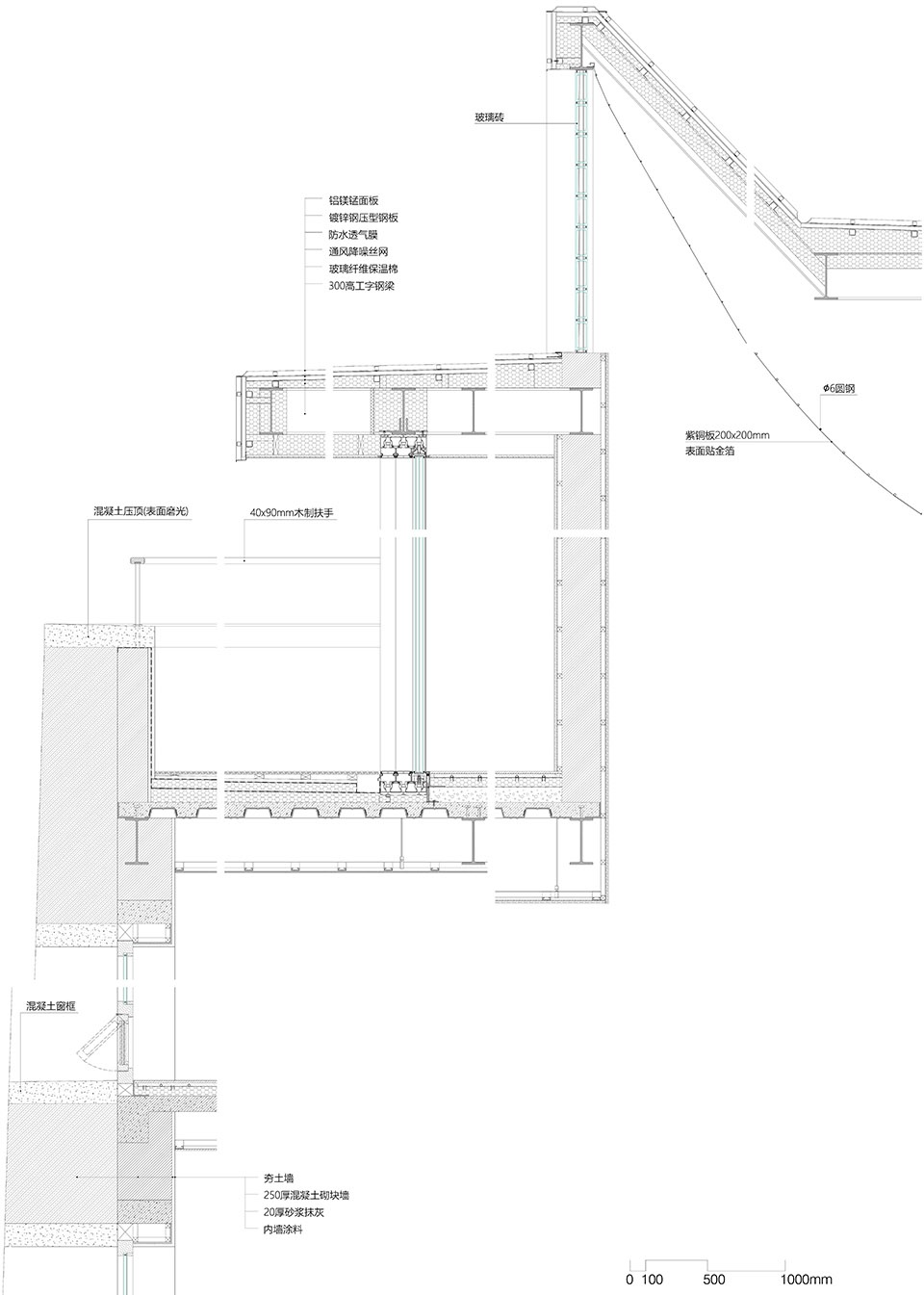
和天窗相比,高侧窗的光线相对均衡,而且可以避免正午的炫光。我们在中庭顶部东西两侧设置高侧窗,同时用一个曲面的顶棚,把从两侧进入的光线反射下去。曲面可以把直射光扩散开,这样可以保证中庭的光线均匀而柔和。高侧窗用玻璃砖砌筑,玻璃砖也可以进一步起到折射并柔化直射阳光的效果。
▼曲面顶棚对光线的散射作用

▼高侧窗用玻璃砖砌筑

▼仰视金顶

这个曲面顶棚西高东低,从剖面上跟最后一段“天梯”倾斜的趋势正相吻合。我希望这个曲面给人柔软悬挂的印象,而不是一个僵硬的造型。再加上对反射效果的考虑,就想到用若干铜板串接成一张靠重力自然悬垂的“挂毯”。正好大理旁边的鹤庆就以加工手打铜银的工艺闻名,跟工匠交流后,我们决定用1364块20厘米见方的镶金箔的紫铜板错缝串接成一张54.6平方米的“紫铜挂毯”,悬垂于两端高侧窗的顶部。手工打制的铜板表面有密集的凹坑,这也是为了进一步散射光线,让中庭内部通体光明。
▼金顶(左),铜板的悬挂与连接(右)

▼金顶与雪山酒吧

▼从酒吧回看金顶

其实千里迢迢的来看卡瓦格博,就是朝圣。从这个意义上讲,这个酒店就是为朝圣者准备的,它的真身是供奉神山的庙宇,酒店只是化身,它要影响朝圣者面对雪山的姿态和心态。在金顶的光芒下攀爬天梯而接近雪山就是一种仪式,经历了这份庄严再看卡瓦格博,面对雪山的凝视就不再只是一个“国家地理”式的眺望了。
▼在金顶的光芒下攀爬天梯

材料与建造
现状的夯土墙外表面有一层用于防止墙体剥落的水泥抹灰,为了恢复夯土墙原初的外观,并满足未来酒店的使用要求。我们拆除并回收了现状夯土墙的泥土,并在内部结构改造完成后,再掺入适量水泥和固土剂重新夯一遍,相当于把夯土墙当作一件羽绒服套在已经用混凝土砌块填充过的主体框架结构之外。这样的夯土墙当然就不再有透气效果,但强度和耐久性都明显提高。改造后客房的窗户扩大到1.5米宽,远远超出了传统木窗套的跨度极限,我们于是决定现浇混凝土窗套来替代传统的木窗套做法,并在浇筑完成后打磨成磨石的表面效果,细腻光滑的窗套跟粗粝的夯土形成别致的反差。为了让客房的景观不受干扰,我们把窗户的开启扇设计在每扇落地窗的底部。老榆木制作的窗框因为混凝土窗套的保护也规避了变形开裂的后顾之忧。
▼墙身剖面详图

▼夯土墙与窗套的施工(左);窗套的磨石表面与夯土墙的交接(右)

▼清晨的西立面

▼立面夜景细部

▼从客房窗户看雪山

紧贴后山的“山房”立面用当地常见的毛石挡土墙饰面,其色调基本和山坡融为一体。为了让餐厅和雪山酒吧的屋面看上去尽可能轻薄,跟大藏房厚重的外表形成对比,我们最后决定用铝镁锰合金板来包裹这两个空间的外皮,包括屋顶和立面。这样省去了屋面额外的防水处理,合金板的背面也便于粘贴保温材料,同时也使这两个明显加建出来的空间更有临时建筑的感觉。
▼夯土墙与“山房”毛石墙的并置

▼正在补夯第三层外墙的大藏房

▼夯土墙与餐厅金属表皮的并置

▼从“山房”屋顶看主体建筑西立面

▼酒店夜景鸟瞰

▼实施方案整体模型


▼一层平面图

▼二层平面图

▼三-四层平面图

▼立面图

▼剖面图

项目名称:赵扬建筑工作室
项目地址:云南省迪庆藏族自治州德钦县雾浓顶村
业主:行李旅宿酒店集团
设计公司:梅里雪山既下山酒店
主创及设计团队:赵扬, 王典, 李乐, David Dufourcq, 白皓文,丁香,张楠,周怡静
室内设计:谢柯(尚壹扬)
结构设计:马智刚
机电设计:北京卡林建筑设计有限责任公司
设计年份:2015.10-2016.5
建成年份:2018.11
建筑面积:1961㎡
空间主材:石材 毛石 木材 金属 建材材料 玻璃 玻璃砖 夯土
编辑版权©灵感LAB,禁止以灵感LAB编辑版本进行任何形式转载

关注公众号

关注抖音号