一朵象征理想主义的云,缓缓升起在永宁江畔|
Wutopia Lab设计的朵云书院黄岩店,于2021年6月26日正式落成并盛大开幕。这是诞生于上海的朵云书院的外省市首店。可谓一朵象征理想主义的云,缓缓升起在永宁江畔。
▼书店外观

“永宁江畔白云乡,山河历历见清影。”——俞挺
一次类型学和象征主义写作
A typology and symbolist writing
起兴 | Getting up
设计的开始完全可以基于一种情绪。白天站在永宁江边,江水平静地缓缓东去,我很容易被带入中国南派山水的平远式构图之中,心情和视线都沿着水平线延伸而放松。晚上,江边许多人各自扎堆娱乐,热闹欢快而不嘈杂。空气中略微有些潮湿,江风轻轻弹破水珠,在我的脸庞周围爆裂出一点一点的清爽。我很羡慕这个城市的安详和愉悦,这是上海所稀缺的。突然,我认定应该有一朵云,平静地缓缓在江边升起。
▼永宁江畔鸟瞰

▼书店顶视图

作为加法的减法 | Subtraction as Addition
云具有一种复杂的纯粹美感。我不对拼贴的杂乱的商业地域性立面做整容手术,而决定连续的白色穿孔铝板墙将其包裹起来。连续的白色在江畔形成了一个复杂而纯粹的界面(通过控制穿孔率,立面上会形成云雾缭绕的层次)把书店藏起来了。铝墙是立面,也可以剥离立面成为庭院的围墙或者两者兼顾。连续的白色铝墙是用做加法的方式创造了一个宁静而宜人的视觉减法。一朵云升起在江畔,书店的读者就在云中了。
▼连续的白色在江畔形成了一个复杂而纯粹的界面

▼白色铝墙

▼书店入口

传统类型学 | Traditional typology
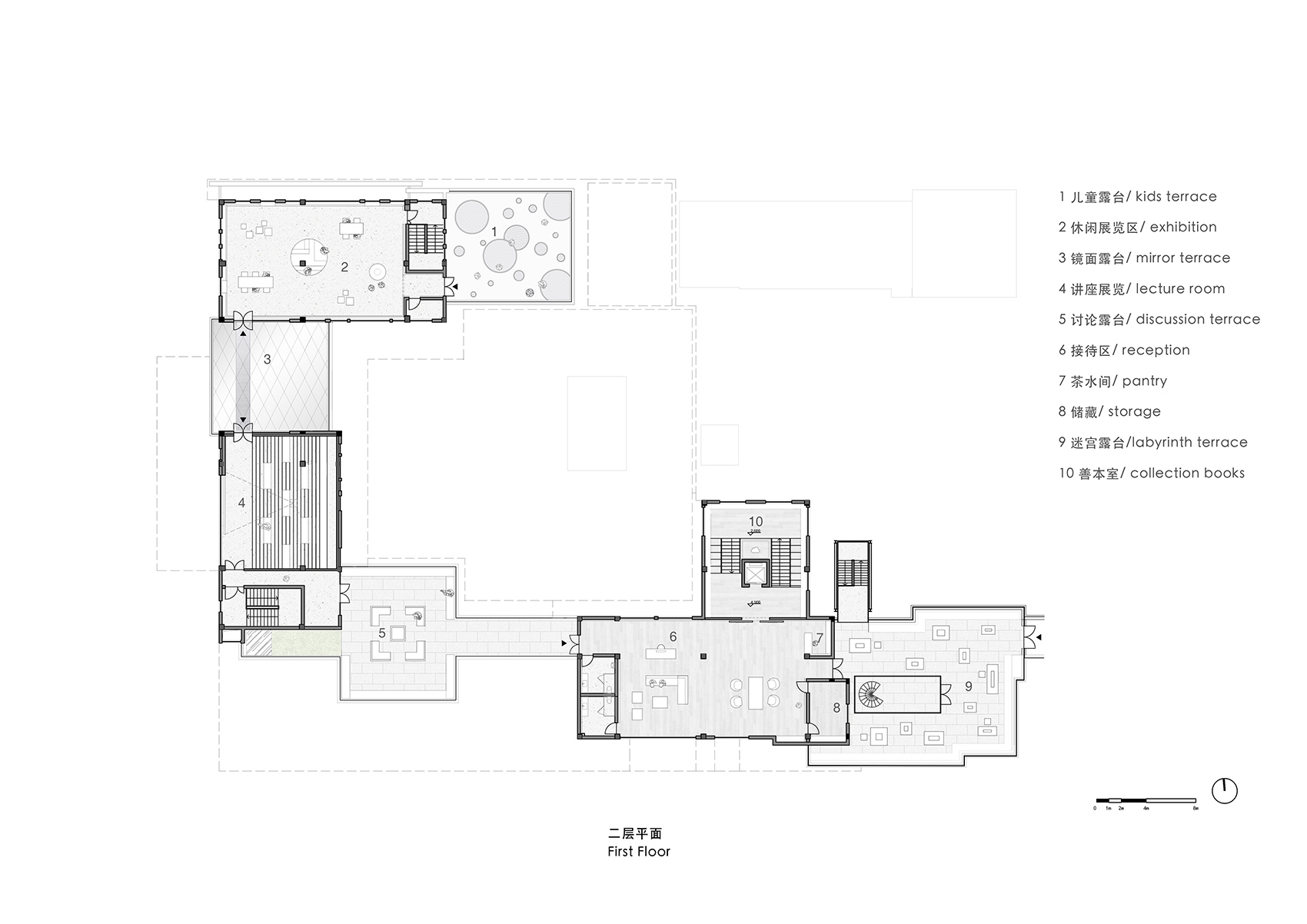
书院选址在永宁江边上一组4栋建筑中的1,3号楼。1号楼也是由两栋建筑在首层相连成一体的。公共空间场地设有地下室天井和疏散楼梯间。是一个焦点分散而没有重点的场所。传统有规模和形制的书院都是一组有序的建筑群形成的。我如果把分散的1,3号楼以及内部空间看成传统建筑群里的亭台楼阁和庭堂轩榭的类型,那么显而易见这样的建筑群缺一个作为重点的院子。既然我需要一个空间来控制这些分散的个体,那么创造一个庭院类型毫无疑问是我的自然而然对的选择。
▼轴测图

▼首层庭院


1,3号楼之间的空地被我规划出一个方形的院子。但这个院子躲在1,2号楼(他人物业)之间的夹弄后面。一不做二不休,我把这个夹弄变成了前院。成为书院的正式入口。西侧加设了室内过道通往1号楼。这个过道被设计成展廊(廊)。1号楼首层是书店区域,入口是朵云特有的有态度的书架区(亭),转过向北进入书店主陈列区(堂)。经过收银台进入利用过道设计的阅读区(居),其后就是文创区(斋)。
▼庭院连接不同的功能空间

穿过层层门洞来到作为建筑主入口的3号楼,第一个区域是生活方式类图书区(厅),东侧是临水的咖啡区(榭)。我把咖啡到二楼的楼梯设计成结合交通的善本复制品展示区(阁)。咖啡二楼则是未来的城市客堂间(楼)。
▼善本室


▼楼梯

文创区的楼上是展览(馆)。书店的楼上是个阶梯演讲区域(室)。二楼之间都是屋顶平台相连。这些(台)是儿童嬉戏平台,镜面露台,有火塘的讨论露台和作为咖啡外摆的迷宫露台。
▼镜面露台

拿亭台楼阁和庭堂轩榭的类型建筑学借用的好处是,将功能和园林的建筑类型联系起来便于让不懂建筑的观众更容易理解并支持我用新庭院来改建公共空间将建筑群整合成容易解读的新书院。那个后来被命名白云庭的院子以及衍生的三个边庭(前院,南苑和西庭)和围墙,将1,3号楼整合成一个在视觉上连续的建筑群。于是一个新书院建筑空间脱胎于历史建筑类型而改写了一组分散的商业建筑,最后创造一个新的视觉和空间形象。
▼白云庭一角

隐喻和符号之五彩祥云 | Metaphors and Symbols of Colorful Clouds
我坚持建筑应该是充满隐喻的。我们把云提炼成一个容易阅读的形式符号,将其变成门洞,标识甚至VI。白云的白则覆盖了所有的建筑背景空间来强化云中的象征意义也代表了朵云的上海。
▼云形门洞

从黄岩最著名的橘子提炼的桔色不仅代表了朵云的黄岩,更成为入口图书区和咖啡区的前景主色。由白云到橘云,很容易构建一个关于五色祥云的故事。由此书店区包括文创区前景采用了绿色。这也是朵云书院系列中的经典色,更重要的是作为青色的蓝在台州当地有特殊的意义,并不能作为主色使用,所以选了朵云书院家具系列中的经典绿色作为青云。二楼的演讲区选了绯红色作为红云,二楼的展览区选了粉紫色作为紫云。五种不同的颜色标识了不同的主要功能区。这是云这个隐喻的进一步演绎。五色祥云的故事最后取代了类型学建筑借用成为联系功能,上海,黄岩,典故,文献,历史和地方性的突出陈述。强化了作为隐喻的云的丰富性以及符号使用的正当性。从而建立一个在云中读书的“神话”。
▼阅读区

金字塔和迷宫金字塔和迷宫 | Pyramids and Labyrinths
在讨论空间视觉焦点这个话题时,项目建筑师提供的艺术家Roelof Louw于1967年创作的Pyramid of Oranges的照片成为灵感。在门厅制作了一个橘色摆放书籍的金字塔书台。(这个Pyramid其实更像Ziggurat.不过中文都是一样的)。它成为空间的主导装置, 一个更大的绿色的金字塔书台成为有态度书架区(亭)的中心。而脱胎于金字塔的三角形变成半透明的亚克力收银台成为书店主区(堂)的控制性视觉焦点。橘色和黄岩的关系在某种意义上更符合艺术家当年装置的正式名称Soul of City。在朵云书店黄岩店则由此创造了是Soul of Huangyan。我一直着迷在场所中通过方向和视觉的复杂组织来创造时间体验,相对的快与慢。迷宫是一个极好的建筑类型结合光线能够达成这种体验。于是书架和家具成为书店迷宫的墙。透明和半透明的界面模糊了光线的明确性,让人在空间中产生迷惑和充满好奇的不确定。以至于时间在这里似乎有些慢。
▼书架区(亭)




意外的是在咖啡区(榭),橘色的家具更像涟漪。而在临窗的高台上沙发上发呆,江水水平如画卷展开,一种中国画形成的时间观意外的复生了,吻合了我第一次站在江边时的那个情绪。由于屋面板下多余的结构次梁,我无法在收银台天花上开设天光,让水面和天空成一色。只能以发光天棚代替,少了一种光线组合,略微有些遗憾。
▼咖啡区(榭)

▼临窗高台

▼橘色的家具更像涟漪


水面和天空 | Water surface and sky
为增加迷宫的迷惑性,我用波纹铝板作为吊顶仿佛波光潋滟的永宁江水。同时把收银台区域的屋顶平台变成一个能够反射天空的镜面。我用把水面和天空浓缩在一层楼板的正反面上去创造一个失去方向和时间判断的场所。
▼波纹铝板吊顶

白云庭的神话 | The Myth of the White Cloud Garden
朵云书院黄岩店的庭院体现了我追究园林形式背后的精神的一种尝试。在业主的授权下,我有完全的意志成为这个庭院的主人去主观地设计。我决定因地制宜地去创造一个合乎自己观念的世界(园林)。我剔除了原来场地上的构筑物和设施。保留了原来的乔木植物,也保留了但改建了规范要求的消防楼梯间和排烟庭院。我把庭院看成水面,三组树木形成的绿岛就形成了中国园林中的基本范式一池三山。
▼白云庭

树形的搭配和组织是借鉴了我热爱的大画家倪瓒的构图。但庭院所表现的白石头和绿植很容易让人联系到日式的枯山水庭院。但这个灵感来自于仇英的《园林胜景图》中的一个关于中国枯山水的片段。画中一株勃勃生机的蔷薇花矗立在宽广的模仿波光粼粼的白色石作地面上,简洁疏阔。画中的庭院是竹帘围合而成,而我用白色穿孔铝板,一样封闭了一个半透明的庭院。光线可以经过围墙的筛漏而如雨点洒落庭院形成斑驳的光影而增加了庭院的生动。这个庭院不求传统园林的形式,而是传递出中国人热爱在人世间的最拥挤处创造一个生机勃勃人间仙境,即所谓桃花源。也是当代人的真实的梦境。
▼庭院的灵感来自于中国枯山水

梦境和现实 | Dream and reality
白色铝墙并没有把所有的旧建筑遮挡掉。在白云庭的大多数地方,读者几乎完全陷在一个彻底的梦境。在有些地方,旧建筑会微微露出一些痕迹。这躲在梦境后面的真实反而构建了一个魔幻现实主义的体悟,不真实的真实,或者陌生的熟悉感。这大约才是我乐于所见的意外吧。
▼在有些地方,旧建筑微微露出一些痕迹

两个彩蛋 | Two colored eggs
读者会在白云庭里发现一白一蓝两个云凳。这是用回收海洋垃圾的塑料制作的。利用黄岩是模具之都的优势,制作模具灌铸塑料成型。使用回收海洋垃圾的塑料来自我女儿的环保教育,建筑师需要在自己的设计中表达一种环保的态度。咖啡馆螺旋楼梯而上有个蓝色玻璃屋,日光下把橘色楼梯和屋顶交接处染成极其漂亮的紫色。不过只要按一个开关,蓝色玻璃就变成无色透明,永宁江就跃然眼前。这个玻璃是黄岩当地企业自主开发的车玻璃技术。我第一次拿来用在建筑上。我在演讲区也采用了这个玻璃。因为我一直幻想这个场景,在春天,我坐在阶梯上,蓝色褪去,盛放的樱花如云一般绽开在我脚下,这一切,真好。
▼用回收海洋垃圾的塑料制成的蓝白云凳

“不必抬头看,你就在云中。” ——王海(大头费里尼)
朵云书院黄岩店是小城市的新时代宣言
建筑即写作。我一直认为一间书店应该能够体现这个城市或者区域的精神。朵云书院黄岩店是我对黄岩这个城市以及城市生活的人和城市文化做出的理解和反应。我认为中国的小城市缺少一个塑造它们自己精神的当下的艺术形式。在互联网时代,三四线城市的人民普遍具有一种自信和判断。建筑师在这里的创作其实不必目追求大城市和外国的时髦或者在所谓历史形式中固步自封。完全可以用抽象的艺术语言运用隐喻将当地的特点创作出体现当地当下的新的艺术形式和空间。朵云书院黄岩店就是这么一个作品。如果中国的小城市都像黄岩那样满足和安详,有历史,风景,同时又着眼于创造属于自己的未来,那么则这样的中国就会更美丽。
▼书店入口夜景

▼书店夜景



“你明明有熊熊烈火,但是你要让它燃烧的那么平静和宜人。”——俞挺
▼一层平面图

▼二层平面图

▼外立面图

项目名称:“朵云书院”黄岩店
项目地址:浙江省台州市黄岩区桔源街157号、161号
设计公司:Wutopia Lab
主创及设计团队:俞挺、Begoña Masia、宋君竹、吴亚萍、王家钧、王磊、戴云峰、张敏敏、郭佳女、吴晓艳、常学恩、陆烨、张问遂、孟东、荆亚伟
项目经理:濮圣睿
前期建筑:王卓尔
后期建筑:濮圣睿
驻场建筑:米柯洁
设计咨询:〇筑设计| Office ZHU
照明顾问:张宸露、蔡明洁
深化设计:上海呈煜空间设计有限公司、上海至烨建筑设计咨询有限公司
施工团队:台州市黄岩市政园林建设发展有限公司
合作团队:星威国际家居股份有限公司、张家港钰嘉金属装饰有限公司
项目年份:2021.6
建筑面积:1726㎡
空间主材:涂料、亚克力、穿孔铝板、烤漆铝板、石材、木材、水波纹镜面不锈钢、发光软膜、花岗岩、钢格网、砾石、微水泥、瓷砖、玻璃
项目业主:台州市黄岩永云文化发展有限责任公司、上海世纪朵云文化发展有限公司
摄影师:CreatAR Images
编辑版权©灵感LAB,禁止以灵感LAB编辑版本进行任何形式转载

关注公众号

关注抖音号

“钟书阁”书店(欢乐港湾店)·深圳 | 唯想国际XL-MUSE

MOViE MOViE影城与库布里克书店-前滩太古里 · 上海 | LUKSTUDIO芝作室

上海市工人文化宫茉莉花剧场改造项目·上海 | 上海华建工程建设咨询有限公司

盛泽坛丘缫丝厂改造 · 苏州 | 平介设计

礁石书塔 · 深圳 | 城外建筑

中国土家织锦艺术博物馆-土家之花 · 湖南张家界 | 风合睦晨空间设计