我一直在思考,如果一座住宅能够跨越不同的国家、文化与时代,与人产生共鸣,它应当是什么样子。它既不是奢华铺陈的豪宅,也不是极简克制的白盒子。在我看来,那应当是一种能够静静吸纳所在场所气息,同时又保有一种超越时间的、普遍而恒久的美感的住宅。
▼项目概览

基地是一块旗杆形的狭长用地,周围既有传统的日本住宅,也有由开发商建造的当代住宅,呈现出时间不断更迭的状态。在有限的预算条件下,为一个五口之家设计一座适合此地的住宅时,我脑海中浮现的形象,是一座传统的日本住宅。通过真壁结构(shinkabe:日本传统做法,在室内显露柱与梁的结构方式),木结构框架被直接呈现,去除一切多余装饰,显得克制而纯粹。空间关系并非通过严密的分隔来定义,而是让室内与室外、房间与房间之间保持一种松弛而连续的联系。即便建筑面积不大,这种通透性也能让住宅显得开敞而不局促。在建筑成本不断上涨的当下,我认为重新审视传统日本住宅中蕴含的智慧,是最理性、也最现实的选择。
▼室内概览


为了与周边环境相协调,建筑采用了简洁的两层山墙体量。外立面以烧杉木收边,呈现出克制而朴素的外观。在尽量压低层高的同时,结构被直接显露,二层的地板与一层的天花由同一层杉木板构成。通过这种方式,在减少材料与施工工序的同时,依然获得了空间上的开阔感。整体建材仅选用市场上易于获取的标准化产品,并尽量避免增加工种分化的复杂做法,而是优先采用能够由木匠一体完成的构造方式。
▼入口

▼榻榻米客厅


▼室内的木质色调


考虑到业主夫妇热爱烹饪,厨房与餐厅被安置在住宅的核心位置,其余生活功能则紧凑地围绕其展开。在东侧,场地地势向下延展,设计引入了大尺度的开口与缘侧(engawa:连接室内与庭院的狭长木平台),使人的感知自然向外延伸。这是一座希望让五口之家能够舒适生活、而不感到压迫或拘束的住宅。
▼厨房

▼餐厅

▼侧墙开口


住宅所承载的各种要求——包括业主需求、性能标准与成本控制——均通过对日本居住感性的一种当代表达,被细致地调和在一起。在和室中,悬浮式的收纳柜与小型床之间(tokonoma:和室内用于陈设季节性花艺与艺术品的空间)与沙发相互交织,模糊了其与客厅、餐厅之间的界限。用于封闭地面窗的可折叠木板,可通过将把手卡入电视柜顶部预留的凹槽中进行收纳,使其仿佛成为一体化家具的一部分。这一装置的灵感源自传统日本建筑:某些功能只在需要时才显现,其余时间则融入空间或家具之中,体现出一种可移动、可兼用的智慧。
▼餐厅与庭院

▼首层阶梯

▼挑空空间


此外,在和室中,靠近柱子的障子竖向框架被省略,取而代之的是将硬木格栅直接附着在室内侧的推拉门边缘。在二层,柱与梁本身作为推拉门的框架,从而进一步减少了门框构件。这些操作强化了结构骨架的独立性,也更清晰地呈现出与真壁结构相关的构造表达。
▼二层公共空间

▼走廊

▼卫生间

在当下,即便是在日本,选择日式住宅的人也已寥寥无几。榻榻米(tatami:以蔺草编织而成的传统地面材料)与床之间逐渐消失,住宅空间愈发封闭,人们感知四季变化的机会也随之减少。然而,洁净榻榻米所散发的静谧气息、榻榻米缘与障子格栅细线条所营造的微妙张力、透过和纸过滤而来的柔和光线与随风摇曳的树影,以及将室内外边界轻柔模糊、引入季节性微风的舒适缘侧——我相信,这些日本住宅所蕴含的美,是可以被不同文化所共享的。
▼结构细部


▼室内细部


▼地基

同时,我也希望这些元素不要消失,而是能够被延续至未来。因此,与其营造一种装饰性或怀旧性的表达,我更希望创造一座朴素、简单,却兼具功能性与美感的住宅——一座为普通人而生的、中性的日本住宅,作为当代生活的一种新标准。
▼夜览


▼总平面图

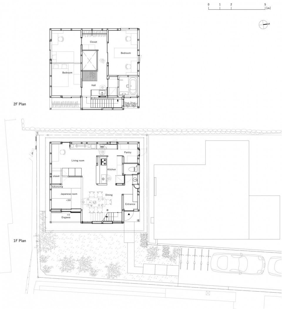
▼平面图

▼立面图 & 剖面图

项目名称:House in Saidera
项目类型:住宅设计、独栋住宅设计、别墅设计
项目地址:日本 大坂
设计团队: Akio Isshiki Architects
建筑面积:96㎡
建成年份:2025
摄影版权:Benjamin Hosking
感写观览、登录灵感LAB账号、点击文章顶部?可收藏案例
更多该设计公司案例,请点击 → Akio Isshiki Architects
©非特殊说明,文章版权归原作者所有

关注公众号

关注抖音号

折给故乡的千纸鹤.乡村住宅 · 重庆 | 冠著原造建筑科技(重庆)有限公司

泊心域•个个世界自然营地 · 湖北黄冈 | 个个世界+先进建筑实验室

五四村住宅 · 浙江湖州 | 壹山建筑设计

渭南·巴邑村玻璃砖房 · 陕西 | 西安建筑科技大学设计研究总院

Assembly Three装配式木屋 · 澳大利亚 | Studio Nine Architects

齐云山树影屋·安徽 | LanD Studio