
丽思卡尔顿隐世酒店位于九寨沟漳扎镇中查沟,为万豪国际酒店集团在国内的首家、全球第六家“隐世”系列度假酒店。设计以藏、羌地域文脉为建构基础,以场所精神为引导,延续“川派营建“的设计理念,建造根植于自然,有机生长的建筑群落。

“日赛”(Rissai)藏语意为寨子,寓意在山谷中以千年文脉筑起的一方净土。传统藏寨空间格局形成与地形气候、生产生活方式、以及宗教文化都有密切关系。山地传统藏族村寨总平呈散落式布局,依山势层级错落,以碉楼为核心,道路沿地形蜿蜒连通,民居围合院落,兼顾防风防寒与防御,隐立于密林之中,与山林溪流相融共生。酒店地处中查沟中部山谷的西侧,整个场地处于西高东低的山坡中部,地势陡峭。用地内最高点海拔 2400m,最低点 2311m,垂直高差最大处达 89m。正对山谷的东侧,则是隐藏在中查沟山谷中原汁原味的藏族村寨“波日俄寨”。酒店总体规划借鉴山地传统藏寨散落式布局,顺应等高线,随形就势。项目占地 166088㎡,总建筑面积 36217㎡,包括 87 栋豪华私人别墅、酒店公区和 SPA,总体布局以中心腹地的公区为核心,其余建筑围绕其周,鳞次栉比地环绕于浅山之间,向景而居,浑然天成,如同一座古朴村寨,与山谷对面的“波日俄寨”遥相呼应,名副其实的奢华“隐世”。酒店由一条蜿蜒的盘山公路与外界联系,进入酒店区域后,沿路而上到达公区,穿过一道寨门,在私人管家带领下,转乘观光车至客房下榻。

建筑单体借鉴藏寨传统吊脚楼形式,利用吊层设置配套、设备用房。客房为地上一层,吊脚一层,上部分为居住功能,保障采光通风与景观体验,下部吊层作配套或设备用房;公区为地上两层、吊脚三层,上部满足酒店餐饮、宴会等大空间需求,下部吊层承担后勤、停车等辅助功能。利用高差设不同标高出入口,游客入口位于首层中心位置,便捷且景观佳,后勤入口则隐蔽设置,实现动线分离、互不干扰。此外,每一栋客房基座之上均设置东向休闲露台,且前后排客房保持约7米高差,确保每套客房拥有良好的景观视野,远眺雪山近瞰原生态古藏寨。



在借鉴传统藏寨空间布局的同时,结合现代酒店功能需求,引用传统藏式民居的“院落”空间,从落客区的“前院”到客房的入户“小院”,从开放到私密,不同功能、不同尺度的院落空间营造出不同的空间氛围。客房注重为宾客提供温馨的“归家”感,精致小巧的木门迎宾入院,稻草、夯土墙围合的私人院落更具避世之感,穿过玄关、客厅、卧室来到宽敞的私人露台,让宾客在私密空间面朝绿野山涧,拥抱古朴。


前言
丽思卡尔顿隐世酒店位于九寨沟漳扎镇中查沟,为万豪国际酒店集团在国内的首家、全球第六家“隐世”系列度假酒店。设计以藏、羌地域文脉为建构基础,以场所精神为引导,延续“川派营建”的设计理念,建造根植于自然,有机生长的建筑群落。
▼从山顶俯瞰整个酒店

01 依山结寨 和谐共生
“日赛”(Rissai)藏语意为寨子,寓意在山谷中以千年文脉筑起的一方净土。传统藏寨空间格局形成与地形气候、生产生活方式、以及宗教文化都有密切关系。山地传统藏族村寨总平呈散落式布局,依山势层级错落,以碉楼为核心,道路沿地形蜿蜒连通,民居围合院落,兼顾防风防寒与防御,隐立于密林之中,与山林溪流相融共生。
▼酒店总平面

酒店地处中查沟中部山谷的西侧,整个场地处于西高东低的山坡中部,地势陡峭。用地内最高点海拔2400m,最低点2311m,垂直高差最大处达89m。正对山谷的东侧,则是隐藏在中查沟山谷中原汁原味的藏族村寨“波日俄寨”。
▼酒店遥望山谷对面村寨

酒店总体规划借鉴山地传统藏寨散落式布局,顺应等高线,随形就势。项目占地166088㎡,总建筑面积36217㎡,包括87栋豪华私人别墅、酒店公区和SPA,总体布局以中心腹地的公区为核心,其余建筑围绕其周,鳞次栉比地环绕于浅山之间,向景而居,浑然天成,如同一座古朴村寨,与山谷对面的“波日俄寨”遥相呼应,名副其实的奢华“隐世”。酒店由一条蜿蜒的盘山公路与外界联系,进入酒店区域后,沿路而上到达公区,穿过一道寨门,在私人管家带领下,转乘观光车至客房下榻。
▼酒店高程分析及交通分析


▼外部道路与内部道路


02 堆石筑台 围院而居
建筑单体借鉴藏寨传统吊脚楼形式,利用吊层设置配套、设备用房。客房为地上一层,吊脚一层,上部分为居住功能,保障采光通风与景观体验,下部吊层作配套或设备用房;公区为地上两层、吊脚三层,上部满足酒店餐饮、宴会等大空间需求,下部吊层承担后勤、停车等辅助功能。利用高差设不同标高出入口,游客入口位于首层中心位置,便捷且景观佳,后勤入口则隐蔽设置,实现动线分离、互不干扰。此外,每一栋客房基座之上均设置东向休闲露台,且前后排客房保持约7米高差,确保每套客房拥有良好的景观视野,远眺雪山近瞰原生态古藏寨。
▼A型客房首层平面及剖面


▼客房

▼公区东立面

在借鉴传统藏寨空间布局的同时,结合现代酒店功能需求,引用传统藏式民居的“院落”空间,从落客区的“前院”到客房的入户“小院”,从开放到私密,不同功能、不同尺度的院落空间营造出不同的空间氛围。客房注重为宾客提供温馨的“归家”感,精致小巧的木门迎宾入院,稻草、夯土墙围合的私人院落更具避世之感,穿过玄关、客厅、卧室来到宽敞的私人露台,让宾客在私密空间面朝绿野山涧,拥抱古朴。
▼客房视线分析

▼酒店客房外观


03 隐秘藏羌 文化传承
建筑风貌从藏羌传统中汲取灵感,以藏羌碉楼的雄浑与藏式木制榻板房的原始古朴为蓝本,建筑立面设计融入三段式形式,延续了量感明显的悬山坡屋顶,古朴宽厚的夯土与木板墙身以及收分适宜的基座。建筑构造设计提取传统藏式建筑的典型特征与符号语言,用于木构件的装饰设计中,演绎围墙“边玛墙”、窗楣“飞子木”,木门”门斗“等构造样式。建筑屋脊高低变化、穿插组合,建筑群落顶部线条灵动多变,在巍峨雪山背景的映衬下,建筑与环境和谐相融,共同勾勒出一幅至美的自然画卷。
▼从酒店远眺雪山

▼客房外立面细部构造

▼客房外立面细部构造

室内设计巧妙融合藏羌文化,室内空间摒除多余装饰,展露木结构体系,完整显现梁柱穿插交接之美与一品品椽子排列的节律之美。大堂功能区镜像布局、客房入户轴线遵循中正序列,这些视觉秩序无不体现着藏式建筑特有的庄重感。
▼大堂

大堂吧复刻火塘与烟囱,还原民俗场景;客房床头装饰吉祥纹,地毯、楣梁与之呼应,公共区域采用吉祥纹作为空间分隔元素。室内摆放着藏式物件,很多都来自当地村民家,经过清洁或修缮后成为客房中的点睛之笔。这些凝练着地域基因的符号,让藏式风情自细节处自然流淌。
▼餐厅包间室内

04 因地制宜 生态绿建
藏羌地区的建筑形态与气候环境有着密切的关联,应对高海拔和寒冷的气候特点,传统建筑材料就地取材,建造方式因地制宜,形成独特的结构形式与构造特点。“绿建生态”概念早已在先人世代流传下来的低技、适用、低成本的构建手法中实现,并成为当代学习的典范。
▼冬雪中的酒店

▼冬雪中的酒店

首先,建筑采用传统绿建智慧。场地顺西高东低山势延展,西侧借地形成屏障,防止西晒与寒风;建筑形态延续传统藏式碉楼特点,平面布局紧凑、形体简约以减少散热面积;客房呈现不同角度顺应等高线,以保证每间房屋得以充足日照;开窗比例匹配朝向、功能需求:东侧设露台与大木窗纳光揽景,外装悬挑木格栅防紫外线,木窗周围辅以藤编墙体增强储热性能;南北墙优化保温层、窗型及窗墙比以增强保温性能,双层实木窗框密封避风;西侧则小窗少开,仅满足盥洗采光。
▼融入山林的客房建筑群

▼酒店公区望向雪山

其次,传统建筑中的材料具有很强的耐候性和环境适应性,在继承传统营造精髓之上,融合当代材料与技艺,经当代建造体系重新诠释,既延续传统智慧,亦焕发质朴持久的生命力。建筑屋面采用岩板瓦与复合保温层,增强保温和防水性能;采用防腐木替代传统木料,以延长木屋架寿命;毛石墙采取内层用实心砖墙或混凝土墙,外层以粗犷的麻岩石砌块堆叠的双层构造,其内部通过钢筋网拉结,将叠石与混凝土墙连接稳固,墙身的传统夯土墙质感,则是利用表面浅咖色矿物涂料甩浆的现代营造手法模拟再现。
▼木构件、毛石墙等建筑细部


最后,在建筑结构设计上,依据高设防烈度、坡地高差等不同工况,采用框剪等多种结构组合,设置防震缝、脱开的挡土墙等,兼顾安全与经济。设备系统方面,给排水系统分区供水、余热回收;空调冷热源结合当地实际采用“集中 + 分散”形式,搭配自然通风;电气系统采用双重电源保障高海拔供电,且各系统借助节能产品与智能控制,实现节能运行 。
▼白雪皑皑中的酒店聚落

结语
九寨沟丽思卡尔顿隐世酒店的设计秉持尊重自然与文化的理念,延续川地传统聚落“道法自然,天人合一”的哲学观。它如自然生长的聚落,在这片神圣山川间浑然天成,将夯土的厚重、经幡的灵动、火塘的暖融熬煮成一味独有的藏羌 “佳肴”,让每一位驻足者,都能品味到原乡文化与天地共生的醇厚滋味。
▼酒店公区木门

▼酒店公区夜景

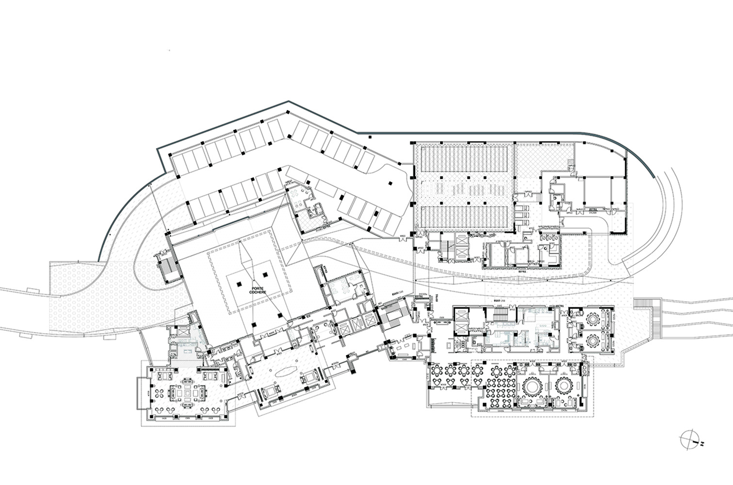
▼公区首层平面图

▼公区二层平面图

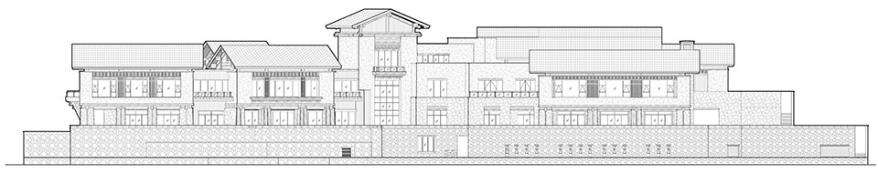
▼公区正投影立面图

项目名称:九寨沟日赛谷丽思卡尔顿隐世酒店
项目类型:建筑设计、酒店设计、民宿设计
项目地点:四川省阿坝州九寨沟漳扎镇中查沟
建成状态:建成
设计时间(起迄年月):2014年6月-2015年4月
建设时间(起迄年月):2018年
用地面积(平方米):166088㎡
建筑面积(平方米):36217㎡
设计单位:中国建筑西南设计研究院有限公司(合作方案设计、施工图设计)、WATG建筑设计事务所(概念方案)
中国建筑西南设计研究院有限公司项目团队
设计总负责人:郑勇 李峰
建筑专业:张纪海 杨明 张煜佳
结构专业:魏忠 廖晓雄 雷云 王飞
给排水专业:王建军 蒋龙 李佳 王铁竹
暖通专业:倪先茂 林佳佳 文玲
建筑电气专业:王素军 廖洪根 侯贺 葛远东
其他参与单位,包括但不限于(若无可空出,若有其他合作方请补充):
景观:艾奕康设计与咨询有限公司
室内:JAYA & ASSOCIATES
摄影师:404NF STUDIO
感写观览、登录灵感LAB账号、点击文章顶部♥可收藏案例
更多该设计公司案例,请点击 → 中国建筑西南设计研究院有限公司 + WATG建筑设计事务所
©非特殊说明,文章版权归原作者所有。

关注公众号

关注抖音号