南京市新街口的写字楼高空中,悬浮着一座与城市对话的精神容器。当推开玻璃门的瞬间,城市轰鸣即刻被抽离,眼前展开的是一片由桦木、织物与光编织的有机系统。多么工作室以建筑学视角重构当代都市人的学习空间,在百米高空演绎空间叙事与身体感知的协奏曲.
▼由高分贝区看向前台

▼前台

▼前台内部视角

光的现象学装置
一盏悬浮的灯笼意向装置仿佛空间的精神图腾,安静的盘旋在空中。桦木多层板经数字化设计,构建出精细的榫卯细部,其木质骨骼隐于布料之后,若隐若现,当光线穿透时有了呼吸的节奏。白天,日光温柔地穿过布料与木骨架的间隙,在书桌上投射出层次丰富的光影,灵动而诗意。夜晚,温暖的灯光透过半透纱幔,在顶部晕染出一片柔和的微光,仿佛漂浮的梦境。这个悬浮的发光装置不仅是功能性的照明系统,更是空间的精神象征,其投影随着太阳角度在12小时内完成从实到虚的形态渐变。
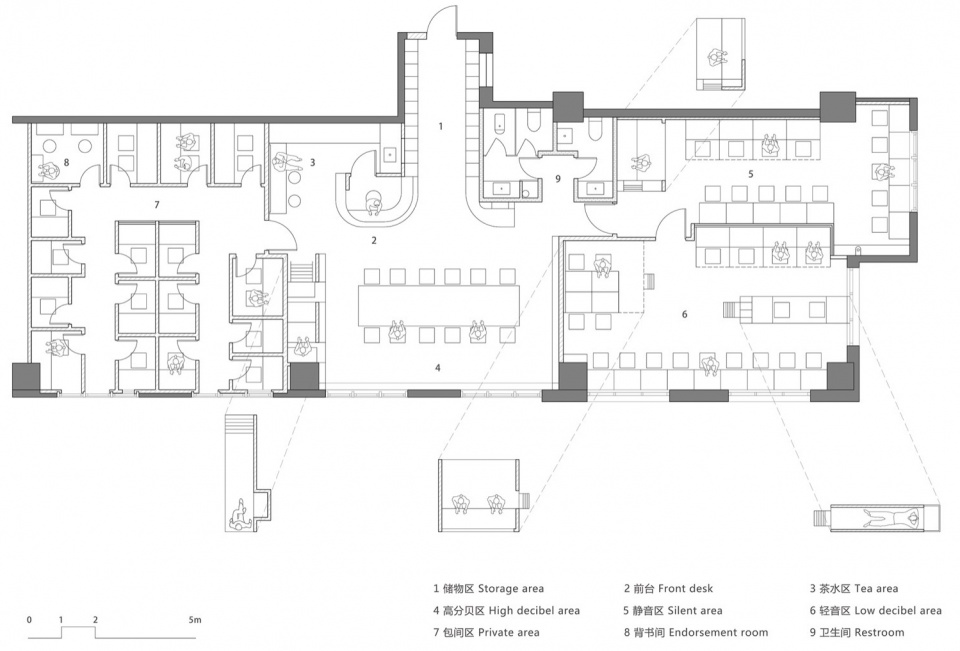
▼平面图

▼高分贝区概览

▼悬浮的精神图腾

▼高分贝区书桌的悬挑细部

▼空间里的对称关系

▼光影与虚实

▼茶水区

▼窗前半透明的书架

▼灯笼般的空间体量

垂直维度的精神路径
在竖向设计上,我们设计了具有趣味性的攀爬路径,选择空间里顶部障碍物较少的区域置入叠加功能区,在自习区里穿插了多个立体盒子,增大了使用面积的同时,也增添了有趣的空间体验。沿着爬梯向上,便抵达精神性空间 —— 冥想小屋。这个舱体空间兼具躺卧与静坐功能,尽端的透明消隐式桌子,让使用者在百米高空俯瞰城市脉络,在此体验一览众山小的意境。
▼动态轴测图

▼轻音区概览

▼轻音区立体座位

▼静音区立体座位

从节省成本和保证层高的角度出发,我们仅在空调及新风管道区域设置了局部吊顶,并将大多数隐蔽工程集中整合于这些吊顶内部,从而确保其余顶面干净利落的裸露效果。这些木饰面吊顶体块通过空间构图上精心的推敲,与室内各要素建立起新的视觉关系。其与原始顶棚的巧妙脱开处理,更在视觉上营造出轻盈的悬浮感。
▼不同高度的视线景观

▼由立体座位看向冥想小屋

▼冥想小屋内部

▼冥想小屋内鸟瞰城市

形式嫁接功能
条件的限制,往往能催生最动人的设计。为弱化空中水平消防喷淋管的存在感,我们为其量身设计了一款木质灯具,这些灯具以阵列形式寄生在水管之上,将原本突兀的管道转化为串联木质灯具的结构杆件,让功能本身成为美学的一部分。考虑到高分贝区的12人长桌需要桌面照明,我们在桌子中心设计了一根方形立柱,这根立柱既满足地面走线需求,又为悬臂灯槽创造出受力条件。悬臂上我们设计了可拆卸的屏风机关,每一侧的悬臂中心都设计了一道缝隙,用于悬挂屏风,与对面的座位实现了视线的开合切换可能性。
▼书桌格挡装置动图

▼轻音区景观座位

▼静音区一角

▼静音区概览

▼静音区的VIP座位

非标建造的温度
空间不仅是功能的容器,更是情感的放大器。项目最动人的部分在于其建造过程,布料与木框架的固定方式最终由业主一家人亲手完成。这种”参与式建造”让非标准节点超越了机械化的冰冷,成为承载记忆的载体。随着时间推移,织物逐渐沾染使用者的痕迹,空间从被设计的对象蜕变为有生命的物体。
▼入口储物区

▼茶水区框景洞口

▼光影与书架

▼书架细部

▼木构架轴测图

▼家具轴测图

项目名称::壹心空间自习室
项目类型::自习室设计,商业空间设计、办公空间设计
项目地址:南京
室内设计/软装设计:多么工作室
设计团队:盛乐,王维,左一轩
施工图协作:璇玑深化
客户:壹心空间
建筑面积:208㎡
设计年份:2025.01
材料:乳胶漆,木材,布
摄影版权:有松影像-周狼行
感写观览、登录灵感LAB账号、点击文章顶部🤍可收藏案例
更多该设计公司案例,请点击 →多么工作室
©非特殊说明,文章版权归原作者所有

关注公众号

关注抖音号