引言 |
帝国已经遍布城市,重压着大地和百姓,到处是拥挤繁忙的交通,到处是过多的装饰和庞大的建筑,是复杂的等级结构,于是,他梦境里出现了像风筝一样轻盈的城市。
—— Italo Calvino《看不见的城市》
▼项目鸟瞰

背景 |
2000年前,中国人用竹子和丝绸制作了一个简单的结构体,第一只风筝由此诞生,这是人类有史以来第一次了解到,如何让一个结构离开地面并成功的滞空。1885年,澳洲发明家Lawrence Hargrave发明了箱式风筝,并以此为基础,开发出了一种载人装置。当飞机和直升机还只是幻想时,载人的风筝是人类最接近飞行梦想的东西。而如今,科技的发展并未带来人的解放,反而被重压到难以呼吸。
▼概念拼贴

场地 |
关于纸鸢屋的畅想,开始于一片温柔的树林,这里原为农场内供游客露营的林地,草木茂盛,并没有具体的用地红线,漫是自然生长的椿树,撒下清凉,我们坐在草地上,可以听到风的声音。现场片刻的松弛成为了笃定的愿望,我们意图建造一座如纸鸢般轻质的茶庭,最大程度的保护原始林地,任由阳光与微风穿过,并以此安抚负重的心灵。
▼纸鸢屋与远景城市

建筑 |
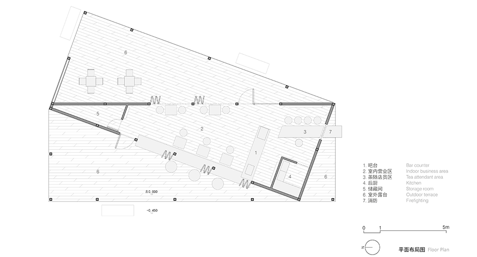
无界的场地意味着五向的观感。面对场地,建筑与西侧道路以平行关系塑造入口空间,再旋转20度与东南侧森林景观形成互动,两个矩形的交错形成了三角形的室内空间,于是,整个建筑平面布局呈现四个不同角度的三角形,每个三角形面向不同的视野与景观,也承载着不同功能。外围的三角形灰空间分别作为入口平台、观景平台、与展示平台,多向联系着绿意盎然的景观视野,室内的三角形空间通过切分两端的储藏间与厨房,以达到异形空间的适用。
▼建筑生成

▼西向视角

▼西南视角

特殊的造型逻辑使得建筑物面对不同方向呈现出各不相同的观感,北向呈现类似双坡屋顶的形式,东西向呈现水平长向的简洁造型,南向呈现具有穿插感的体量组合,屋顶更是呈现出形如纸鸢的几何构图。
▼东南视角

▼东向视角

延展的平台是室内外空间的过渡,营业时作为经营场所的拓展,闭店后则成为了林间小动物的庇护所。
▼清晨的入口平台

▼营业时的入口平台

▼观景平台

▼展示平台

建造与节能 |
温柔的草木意味着轻质的介入。建筑采用点状基础,结合预制钢结构柱脚,将地面整体抬起,与草地形成空腔,防止湿气对建筑的侵扰,亦能最大程度的保护原始草地。木质的主体与轻薄的聚碳酸酯板围护,减少了现场施工的湿作业内容并有效缩短了工期。同时,屋顶采用双层中空屋面,在确保防水的基础上,更利用保温空腔实现了良好的节能效果。
▼剖面构造

▼节能分析

▼建筑与自然

室内 |
室内空间意图营造柔软细腻的“内胆”和漫无目的的宁静氛围。设计保留了暖色的木质梁柱,利用木饰面板进行脱缝填充,并以实木地板通铺室内外,形成了原始质朴的空间氛围。
▼无界的室内外场景

▼吧台场景

家具陈设展现原始调性,以原木、烧杉木、裸色金属、草编、大地色布艺为元素进行组合。特殊的绿色桌面与茶牲板把手,作为美拉德配色的点缀,并呼应室外的自然绿意。墙面展架同样试图表达轻薄观感,通过预制钢板结合实木抓点实现。
▼茶甡板把手与不锈钢置物架

▼绿色桌面与室外绿意

吧台侧面的“茶随店员”区域,长向的桌面从室内穿透落地玻璃延伸至室外,室外部分则通过镜面材质将树影与天空反射进室内,传递出“自然无界”的理念。
▼向室外延伸的桌面

▼穿透建筑的柜体(消防柜)

克制的灯光设计意图降低光线对林间鸟兽的干扰,当夜幕降临,温暖的“内胆”仿佛林间的营火。
▼黄昏

▼夜幕

愿景 |
当沉重而固拙的建筑浸嵌为城市的伤疤,囚役着疲惫不堪的人们,纸鸢屋以其轻盈的木构支撑和柔软的空腔围护,为生灵提供庇所,在敬畏自然的同时营造松弛氛围,更承载着关于自由的执着愿望。
▼纸鸢屋与建筑师

▼平面布局图

▼立面图


项目名称:椿序茶庭
项目类型:餐饮空间设计、茶室设计、商业建筑设计
项目地址:西安市米禾农场
建筑设计/景观设计/室内设计/软装设计:即时设计研究所(IM Design)
主持建筑师:周小富
艺术总监:傅帅
设计团队:邓若楠、王乔熙
施工方:马世忠团队
结构形式:钢木结构
建筑面积:150㎡
建成年份:2024.10
材料:进口松木、聚碳酸酯板、布艺、茶甡板等
摄影版权:Kevin
感写观览、登录灵感LAB账号、点击文章顶部🤍可收藏案例
更多该设计公司案例,请点击 → 即时设计研究所(IM Design)
©非特殊说明,文章版权归原作者所有

关注公众号

关注抖音号