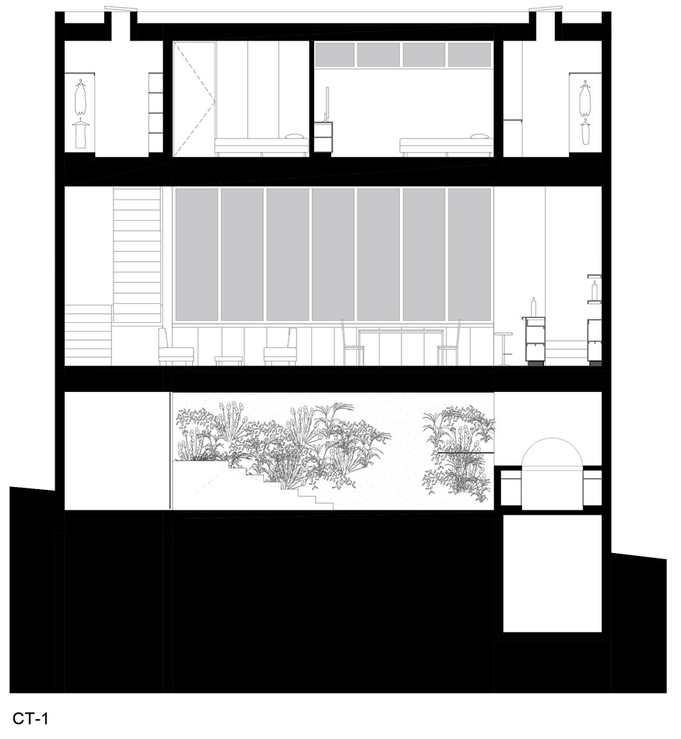
本项目的用地狭窄,并且有一个非常明显的坡度。建筑前方是一个带有峡谷和河流的自然保护区。设计者对建筑的开发是向下进行的,充分利用了斜坡的地势特点,所以只有一层是高于街道面的,其余两层都低于街道面。高于人行道的一层布置了卧室、浴室、衣帽间和电视房。

▼依地势而建

▼入口处



低于街面人行道的首层设置了公共区域和厨房。再下面位于自然地形上的一层,设计者在客厅下方打造了一个中央天井,还布置了露天厨房和一个半遮盖的游泳池。
▼客厅

▼公共区域

▼厨房

▼拥有自然保护区视野的卧室


▼中央天井

▼走廊

▼室内楼梯

本项目的占地面积仅有100平方米,沿地块两侧设置了服务设施和流通业,这些横向的体量确保了房屋的私密性,使得峡谷的地形能够自然植被能够不被遮挡的保留在房屋的下方。这些白色的体块组成了房屋的主要空间,并从侧面向峡谷和内部的庭院开放。
▼建筑下方的自然植物和峡谷地形



▼庭院


建筑的结构系统基于刚性混凝土的框架,使用了砖石围墙和板材的桁架与穹顶。地基部分顺应了相互交错的自然地形,并与挡土墙相连。
▼屋顶露台

▼区位

▼负一层平面图

▼地面层平面图

▼地上一层平面图

▼立面图

▼纵向剖面图


▼横向剖面图



项目名称:CAÑADA之家
项目类型:住宅设计、别墅设计、精品住宅设计、住宅建筑设计、独栋住宅设计、景观设计、庭院景观设计
项目地址:墨西哥
建筑设计/景观设计/室内设计/软装设计:Escobedo Soliz
建筑面积:100㎡
建成年份:2023年
摄影版权: Ariadna Polo
感写观览、登录灵感LAB账号、点击文章顶部?可收藏案例
更多该设计公司案例,请点击 → Escobedo Soliz
©非特殊说明,文章版权归原作者所有
编辑版权©灵感LAB,欢迎转发,禁止以灵感LAB编辑版本进行任何形式转载

关注公众号

关注抖音号