Hipico Piedra Grande俱乐部位于墨西哥州一处被森林环绕的方圆八公顷的地块上。项目设计者力求在最小程度上改变用地,并尽可能使用来自当地的材料,如石材和木材,寻求当代的表达方式来融入当地环境。
▼项目概览



▼从附近道路上看向建筑

▼现代语言融入自然

俱乐部主要是由一个中央庭院进行控制的,该庭院营造出一种开放的氛围,邀请人们凝视这堵由石墙够构成的景观,这些石墙作为分隔,还承担了过渡公共空间与私人空间之间的通道功能。
▼通向建筑的小路

▼开放的庭院

▼面向森林和山脉


▼俱乐部内部空间



该项目提出了一个基于柱子和钢制梁的模块结构系统,这个系统能够定义建筑的框架和形状,来应对未来屋顶需要适应不同的情况。
▼模块系统定义建筑的框架和形状

▼取自当地的石材与木材


▼洗手台

▼俱乐部附近的马棚


▼马棚室外连廊

设计的首要条件之一是向山谷和山脉的方向开放,在项目进行过程中,设计者利用有利的地形,使大型的空中露台朝向能够欣赏周围景色的方向。
▼总平面图

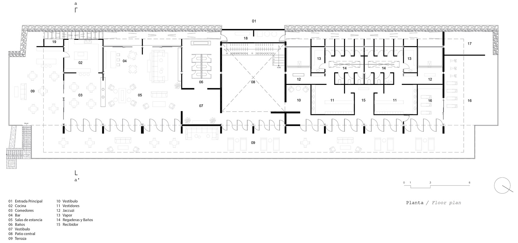
▼首层平面图

▼二层平面图

▼主要立面图

▼剖面图

▼构造细节图

项目名称:Hipico Piedra Grande俱乐部
项目类型:马术俱乐部设计、俱乐部设计
项目地址:Huixquilucan, State of Mexico
建筑设计/室内设计:Studio RC / Juan Pablo Ramirez Capdevielle
施工方:Grupo ARGO
设计年份/建成年份:2023
摄影版权:Cesar Belio
感写观览、登录灵感LAB账号、点击文章顶部?可收藏案例
更多该设计公司案例,请点击 → Studio RC
©非特殊说明,文章版权归原作者所有
编辑版权©灵感LAB,欢迎转发,禁止以灵感LAB编辑版本进行任何形式转载

关注公众号

关注抖音号