一座几乎全户外空间的住宅=“空白空间”设计,这是为位于胡志明市郊区守德市(Thu Duc)的一对年轻越南夫妇设计的房子。该场地的花园里种有大量热带植被,却经常被毗邻的河流淹没。




因此,周围建筑的第一层都抬高至地面 80 多厘米,而业主的要求之一是将一楼抬高至街道水平以上 1 米。同时,为了最大限度地发挥场地和位置优势,带有繁茂花园的住宅面向着邻近河流,使业主与自然更亲近。



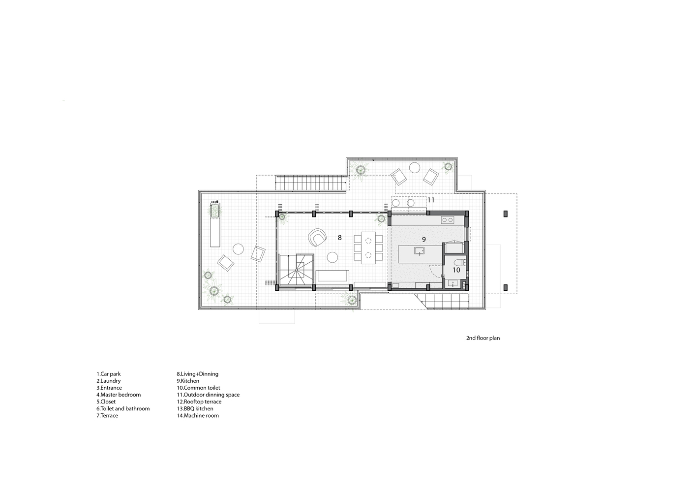
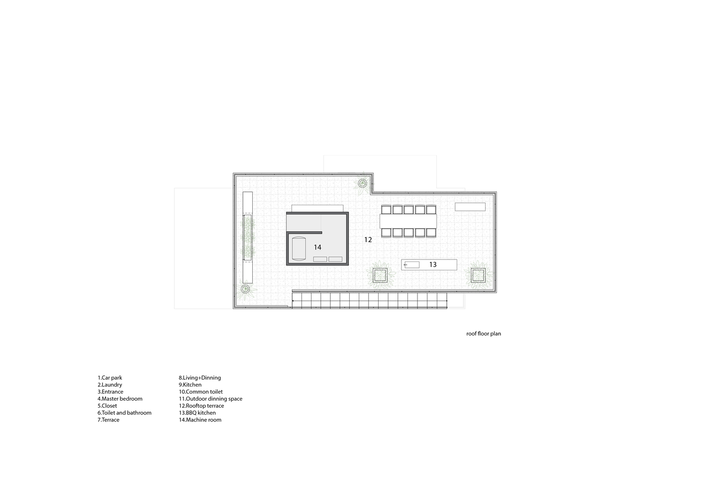
该场地的独特性体现了越南水下景观的地质特征之一;房子由三块漂浮在地面上的楼板组成。楼板的形状在上下两层之间各不相同,每层之间的差异创造了室内外空间的多样性。每块板都往花园延伸,并向多个方向悬挑,用作露台或室外空间、屋檐和覆盖室外楼梯的屋顶。这三块楼板通过独立于室内的户外楼梯连接到所有室外空间,包括屋顶。 换句话说,所有流线都是利用室外空间连接而无需穿过室内。




在这个项目中,建筑师试图重新诠释传统的越南混凝土框架建筑方法。通过采用带肋的板块来延伸地板制造出悬挑,同时使用细柱支撑。柱子的最小尺寸为 300×150 毫米,二楼的梁宽 150 毫米,使楼板厚度极小。最后呈现出一个轻盈的设计,内外部相连,而楼板如同漂浮在其周围环境之上。建筑师希望在混凝土框架结构的基础上改进,因其成本和施工技术的便利性可以在整个东南亚被广泛使用,同时遵循目前的形式方法而无需特殊技术。




包括屋顶在内,这座房子近 70%的地板都在暴露在户外。此外,当折叠门打开时,除了洗浴区几乎所有的空间都暴露在外。在炎热的日子里,宜人的微风从开口处穿过;而下雨时,空气瞬间蒸发冷却。伴随着越南开阔的户外环境,业主可以在这座热带住宅随时感受到与自然的亲近。在越南,一切都紧密相连,包括人与物,建筑师认为设计“空白区”的户外空间至关重要。这所房子将越南活跃的户外生活为主要目标,因此采用新的框架和结构设计来实现它。






















项目名称:漂浮住宅
项目类型:别墅设计、独栋住宅设计
项目地址:越南
建筑设计:Sanuki Daisuke architects
主创及设计团队:Sanuki Daisuke、Nguyen Huynh Bao Ngoc、sda Sanuki Daisuke architects
结构设计 : THANH CONG CONSTRUCTION DESIGN COMPANY LIMITED
施工方:Coppha Builders
建筑面积:325㎡
设计年份/建成年份:2022
合作方:Toto
摄影版权:Hiroyuki Oki
翻译:QI TING YU
感写观览、登录灵感LAB账号、点击文章顶部🤍可收藏案例
更多该设计公司案例,请点击 → Sanuki Daisuke architects
©非特殊说明,文章版权归原作者所有。
编辑版权©灵感LAB,欢迎转发,禁止以灵感LAB编辑版本进行任何形式转载

关注公众号

关注抖音号

折给故乡的千纸鹤.乡村住宅 · 重庆 | 冠著原造建筑科技(重庆)有限公司

泊心域•个个世界自然营地 · 湖北黄冈 | 个个世界+先进建筑实验室

五四村住宅 · 浙江湖州 | 壹山建筑设计

渭南·巴邑村玻璃砖房 · 陕西 | 西安建筑科技大学设计研究总院

Assembly Three装配式木屋 · 澳大利亚 | Studio Nine Architects

Erasto住宅 · 墨西哥 | VERTEBRAL