序列之美,冷静而有力 | The beauty of sequence, calm and powerful
巨鹿路东起金陵西路西至常熟路,全长2290米,两侧花园洋房和海派新式里弄林立,是上海极具代表性的历史风貌区;路边法国梧桐绿荫如盖,虽毗邻静安寺的繁华商圈,却独享一方宁静。

▼区域图

R130买手店位于巨鹿路西段845弄5号,银灰色的建筑外观低调温和,与周边环境融合在一起;A3 VISION 艾舍尔设计团队和R130花了两年多的时间,将这幢4层老房子打磨成一个当代艺术、时尚和设计的融合空间。
▼模型图


▼施工过程


老房子的改造 | Renovation of old houses
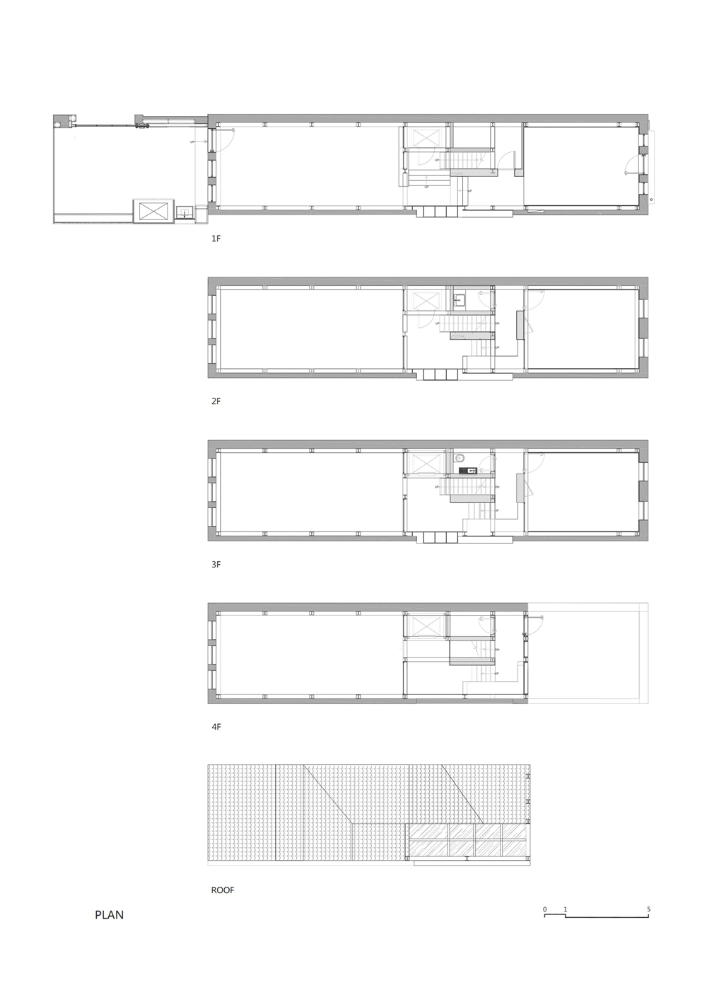
由于年代久远,加上南方的潮湿和蚁蛀,原来的木楼梯和楼板已无法使用,内部结构也因不同时期的改造而杂乱无序。设计团队经过多次商讨,最终决定拆除原有结构,重新构筑内部框架:在约 4 x 20 米的长方形基地内,由20x20cm方形H型钢将整个结构编织成三维几何网格,这个支撑体系的金属框架成了这座老房子的新生骨骼。同保持原封不动的外部建筑相比,室内空间则被彻底改造,具有强烈现代风格的银灰色空间与历史街区并存。
▼银灰色的外立面

▼《结构的时态》艺术展,艺术家王嶺带来具有粗野主义创作风格的家具作品(中)

▼《结构的时态》艺术展,当代漆装置艺术家孙文佳以作品诠释时间的印记(左)


空间氛围的营造 | The creation of space atmosphere
建筑入口及一楼的地面使用了花岗岩和广场砖这两种常用于户外的材料,并一直延伸至南侧的院子,有意无意地串联并入街道小巷,融入城市肌理之中。
▼开放的楼梯与外墙形成一个狭小垂直峡谷

站立于一楼中庭公共区域,视线向上移,原本将各楼层连接起来的金属楼梯,被中间的墙体分割成私密与开放两个部分,开放的楼梯与外墙又形成一个狭小垂直峡谷,一直向上延伸至屋顶,阳光穿过采光井投入室内,即使在建筑底部,也能感受到一天之内光线的变化。




楼梯、储物、设备等集中在中间,做为垂直交通和功能空间。房间分布在南北两侧,向中区通透与开放,同时在立面上保持错层关系。四层楼的正方形和长方形在立面上交错上升,详尽传达了内部空间序列组合形态。
▼材料研究

▼银灰色调统一了立面和顶面,保持了视觉上的一致性

银灰色调统一了立面和顶面,保持了视觉上的一致性。在细微处,无论是顶棚上与柱同宽的钢构、墙面未加装饰的原色石膏板拼接,还是地面铺装的地板与石材的规格,都在比例、尺度上进行了推敲,这种摒弃装饰的现代主义语言,呈现出一种序列的美感,冷静而有力度。
▼《结构的时态》艺术展,陶瓷艺术家张敏以陶瓷材料为媒呈现艺术的解构与重塑(中前)




▼《签名时尚:安特卫普新生力量》展览

行至四楼,映入眼帘的是一个全白色的空间,从二手市场淘来的木柜、门板、沙发等不同年代的旧家具,被重新刷白,还原了Maison Martin Margiela初创时期的店铺场景。
▼全白色的空间





北侧的顶层露台让空间从室内延伸到室外,同时将弄堂巷道生活的画幅延伸至屋顶,俯瞰巨鹿路,穿行的汽车,漫步的路人,茂密的法国梧桐,构成了一部长镜头电影。
▼模型图

▼立面图

▼平面图

项目名称:R130巨鹿路店
项目类型:买手店设计、服装店设计、零售店设计、买手店SI空间设计
项目地址:上海巨鹿路845弄5号
室内设计:艾舍尔设计
设计主持:王志峰
设计管理:范进
设计团队:谢佳秀、裴泳翰
施工方:上海德茂建设工程有限公司
建筑面积:300㎡
设计年份/建成年份:2020年12月-2022年11月
材料:H型钢、镀锌板、金属漆、石膏板、橡木地板
摄影版权:朱迪@AGENT PAY
感写观览、登录灵感LAB账号、点击文章顶部?可收藏案例
更多该设计公司案例,请点击 → 艾舍尔设计
编辑版权©灵感LAB,欢迎转发,禁止以灵感LAB编辑版本进行任何形式转载

关注公众号

关注抖音号

ANCHORET 6.0买手店 · 北京 | JANG Studio

LOOKNOW买手店设计·上海 | Sò Studio

CHUNJU&CÉNCÉN买手店&咖啡 · 南京 | 栖刻建筑设计

void买手店 · 深圳 | SAY ARCHITECTS有坪一尺

PuffFrog x Kangol x Matata复合空间设计 · 海口 | 觉得设计

Flop艺术空间·杭州 | 房子和诗建筑事务所