由Foster + Partners设计建造的卢森堡Belval全新办公大楼ICÔNE于近日正式落成。这座总面积达18800平方米的办公大楼内充满了阳光和绿色景观,旨在鼓励共同创造和合作的精神。大楼内空间的布局以灵活的方式应对了人们对未来工作环境的需求。此外,本项目还将Belval丰富的工业遗产纳入设计考虑之中,通过对场地及其周围环境做出积极的贡献,促进了当地发展,现实了地区的振兴。同时,本项目还以实现BREEAM优秀评级为可持续目标。

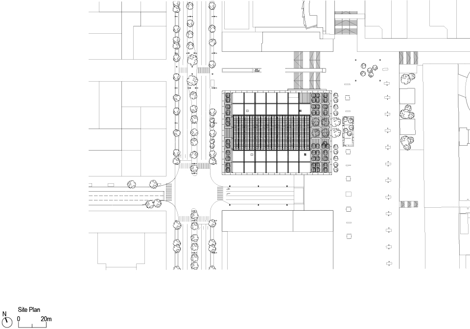
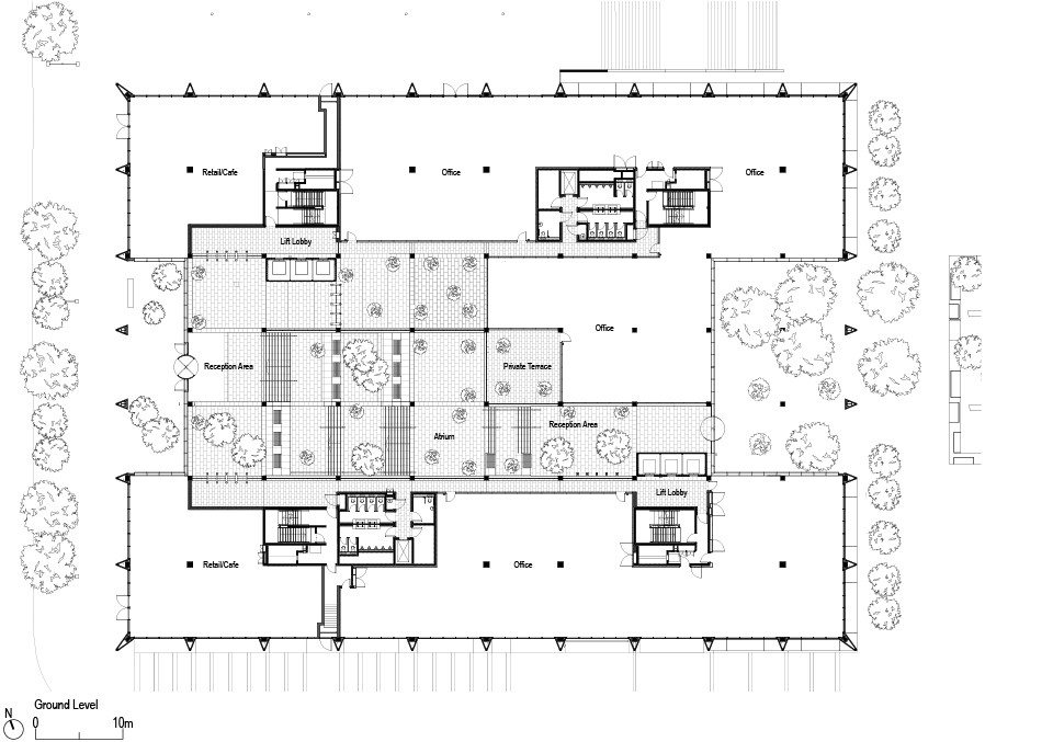
ICÔNE办公大楼位于卢森堡Belval市区,该区是一处集研究、教育、休闲和商业于一体的新兴城区。本项目的设计将周围建筑的尺度纳入考虑之中,统一了周围街道的不同建筑特征。大楼的入口整合了不同的进入方式,将场地西侧主要城市街道Porte de France以及东侧的学院广场联系在一起。全新的商店、咖啡馆以及餐厅也将进一步为入口立面带来活力。
▼轴测图

▼夜景


“我们很高兴看到这个具有里程碑意义的Belval项目的落成与开放,项目的设计开始于2016年,远远早于疫情的爆发。疫情的到来突显出人们对于对更健康、更灵活的城市工作空间的需求,而这正是本项目所想要提供的。充满阳光的中庭是这个办公综合体跳动的心脏,旨在促进员工间的合作,提高员工在工作中的幸福感。”Foster + Partners合伙人Darron Haylock说道。
▼明亮的中庭以及丰富多样的连桥


本项目由Foster + Partners当地建筑事务所BFF architectes合作完成,建筑分为两翼,空间序列围绕着中央中庭展开。正交结构形成了独特的立面与屋顶,在强调出结构网格的同时,使建筑融入其周围的工业环境。具有历史意义和象征意义的Belval高炉为中庭创造出富有戏剧性远景与视觉焦点。


▼中庭屋顶结构

卢森堡BESIX RED地区总监Geoffroy Bertrand说:“ICÔNE是一座致力于使用者福祉的‘智能建筑’,堪称办公建筑领域的先驱范本。我们设计的办公空间鼓励互动性、创造力,看重建筑的实际表现,同时适应未来的环境要求。”

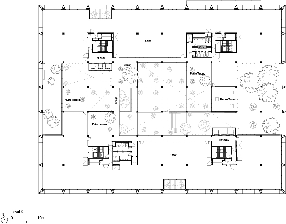
内部空间的流动性与建筑严谨规整的外观形成对比。中庭内,一系列阶梯式露台衔接了街道和广场之间的高差变化,创造出壮观的到达序列。开放的循环交通网络增加了内部空间的活力,公共的绿色景观露台可用于非正式会议,这些景观露台与位于较高楼层的休憩空间一起丰富了办公空间的多样性,同时也自然地融入到整体建筑当中。


BFF事务所合伙人Tom Beiler说:“我们非常荣幸能够参与到这座独特建筑的创作中,它的设计回应了堪称当地历史灯塔的Belval高炉。在与福斯特建筑事务所的这次出色且充满尊重的合作中,我们成功地以简约的设计体现出工业美学,创造出明亮、透明,且内外部空间联系紧密的办公场所。”

立面在结构上和环境上都具有响应性,其设计旨在为建筑提供一种综合解决方案,在为创造内部无柱办公空间提供条件的同时,利用结构形成合理的遮阳,并最大限度地优化室内的采光。一系列绿色通高空间进一步丰富了建筑的立面效果,从建筑内外都可以看到。


▼总平面图

▼底层平面图

▼三层平面图

▼立面图




▼立面结构细部

项目名称:ICÔNE办公大楼
项目类型:办公建筑设计、办公楼设计、综合体建筑设计、办公空间设计、办公室设计、潮流办公室设计
项目地址:卢森堡
客户:BESIX RED Luxembourg
建筑设计:Foster+Partners
总面积:18747㎡
建成年份:2023年
摄影版权:Nigel Young、Foster+Partners
感写观览、点击文章顶部🤍可收藏案例
更多该设计公司案例,请点击 → Foster+Partners
编辑版权©灵感LAB,欢迎转发,禁止以灵感LAB编辑版本进行任何形式转载

关注公众号

关注抖音号

Escenario SHIROKANE住宅综合体·日本 | Sasaki Architecture + YTRO Design Institute

盛泽坛丘缫丝厂改造 · 苏州 | 平介设计

重庆来福士·重庆 | Safdie Architects

通州潞城市民中心·北京 | 意度建筑

模块花园-智慧新天地创新中心 · 杭州 | gad杰地设计

福南·新加坡 | Woods Bagot