屋顶是建筑与天空的连接,是空间重要的庇护,也是建筑的核心要素。屋顶的形式逻辑被两个自然要素所左右,重力和雨水。重力作为恒久存在的万物法则,雨水作为时刻变化的自然之物。与重力的抵抗、与雨水的疏导,决定了屋顶的形式演变。随着现代材料和力学的发展,自然要素不再是屋顶形式的主导,建筑显现出一种强大无比的人力结果,变得越来越像机器,形体的几何纯粹性和形式的手工操作感(切割、扭转……)展现着现代人的野心。我们对于建筑的哲思并非如此,建筑不是对自然驱赶,而是天人合一的互相接纳:对自然的狂野进行顺导,对自然的生机尽心呵护。
▼项目鸟瞰




▼雨屋正立面

▼总平面图

雨,是因重力落下的水。水,既无形又有形,既柔软又强力。容器可以刻画水的形状,重力可以推动水的力量。水的顺导是对重力动态的刻画,容器般的建筑则是对重力静态的塑造。一静一动,被牛顿精简成公式的万有引力,因建筑能够呈现出多种推演的证明。
▼雨屋外观




▼雨屋与周围建筑



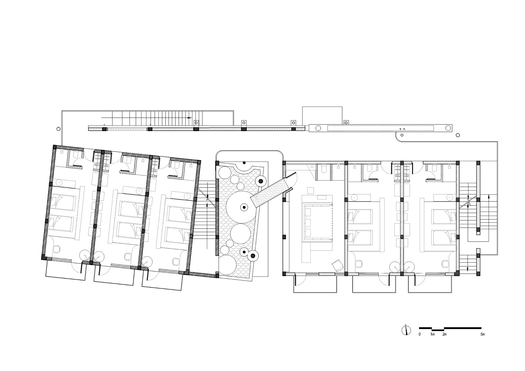
雨屋位于远离城市的半山之中,周围被竹林和农田环绕。两座分开的村宅用一片大屋顶覆盖。屋顶被圆柱撑起,雨水得以多种方式和路径导向地面,形成一种无形和有形的对仗。于此,我们称之为顺水六式:
▼模型

▼两座分开的村宅用一片大屋顶覆盖

▼从庭院望向雨屋


▼夜景

▼路径


▼屋顶被圆柱撑起

举水 | Lifting water
将屋顶高高举起,或从地面挺立或从墙边承托,水波形连续的屋顶是导水的容器,将原本均匀落下的雨滴汇聚成线性的水路。
▼水波形的连续屋顶

▼立面

▼檐下露台空

川水 | Running water
水路沿竖直方向奔涌而下,形成最有力量的疏导。“水滴石穿”是描述水力的古老形象。而在设计中则是让水路向下洞穿混凝土板,让水之力得以显形。
▼水路向下洞穿混凝土板

▼线性的水路

引水 | Diverting water
反曲形水渠,渠之形即为水之形,渠之向引水而去。
▼水塘

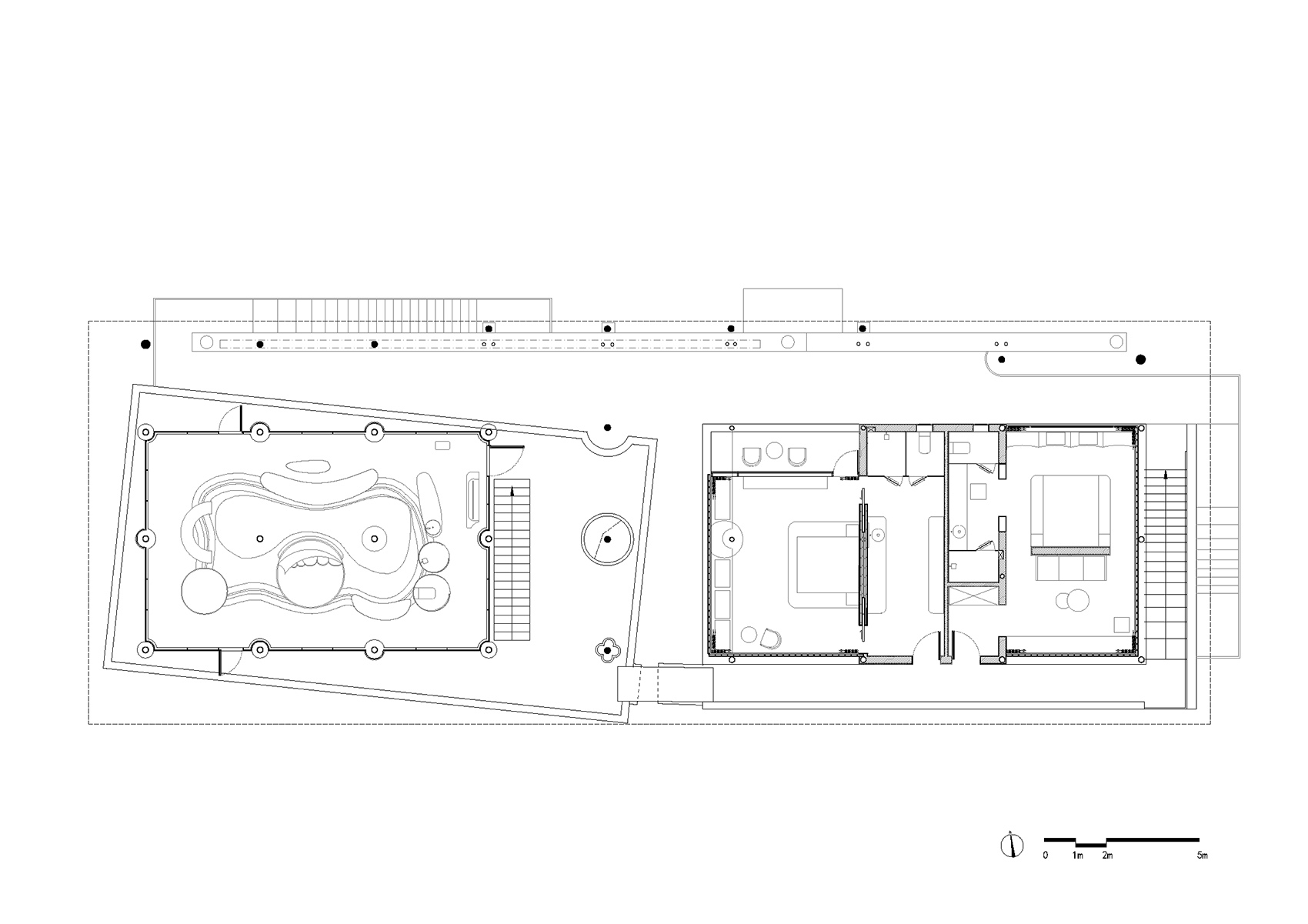
散水 | Releasing water
水从半层屋顶直接沿屋檐散落,跌入水塘之中,这种最质朴的落水方式是自由释放的水的原始形态。
▼水沿屋檐散落

踏水 | Treading water
在建筑二层,路径必经之处,要穿过一处水塘,水塘中圆形的汀步需要备好步伐跨越而过,如同雨天在野地里避开水坑的踏水而行。
▼圆形汀步


▼瓦幕细节

▼墙面和窗洞细节

跨水 | Crossing water
桥是富有诗意的人造物,连接和跨越:越涧,越塘,越层,是空间之间,身体层面的线性连接。
▼檐下空隙和连桥

在雨屋的顶层,有一间四面通透的大山亭,在屋中,将远山和身体连结。在檐下,于心中,留一片山水。
▼亭房室内




2016年设计的“川房”,将金属落水管坦白的表露在建筑外立面,来形成“川流而下”的关于水的隐喻,是第一次试图探讨重力与雨水的显形表达。“雨屋”则是对于重力和雨水的进一步探讨,不只是形式的“显露”,更是在践行一种对于自然的精心干预:“欲取之,先集之;欲驯之,先顺之。”
▼雨屋室内




▼客房













▼室内细节

▼雨屋外观细节

▼夜景

▼施工照片 







▼模型


▼一层平面图

▼二层平面图

▼三层平面图

▼立面图

项目名称:“雨屋”未迟·千山精品民宿
项目地址:浙江省杭州市桐庐县旧县街道合岭村张家舍
设计公司:来建筑设计工作室
主创及设计团队:马岛、樊宇、廖启贤、张莹
结构设计:钢筋混凝土框架结构&钢结构
项目业主:桐庐·未迟·千山精品民宿
设计年份:2019.9-2020.12
建成年份:2021.10
用地面积:412.61m²
建筑面积:1081.63m²
空间主材:砖瓦、混凝土、木材、玻璃、水磨石、艺术漆、乳胶漆
摄影师:赵奕龙、唐徐国、樊宇
编辑版权©灵感LAB,禁止以灵感LAB编辑版本进行任何形式转载

关注公众号

关注抖音号

大隐与迹・四姑娘民宿 · 成都 | 万谦集环境艺术设计 + 自由实践室

温江悦椿酒店 · 成都 | CCD香港郑中设计事务所

杭州中心四季酒店 | Avalon Collective

八亩晴川民宿 · 广东 | 本森空间设计

东京“安缦AMAN”精品度假酒店·日本 | Kerry Hill Architects

三禾 • 稻里温泉度假酒店 · 广东 | hia高地设计

京都嘉佩乐酒店 · 日本 | 隈研吾建筑都市设计事务所 + Brewin

宋麓书院 · 浙江 | 造园建筑 + 中国美术学院建筑艺术学院

黄山紫阳烟雨度假酒店· 安徽 |风合睦晨

不在山林·泸州梨花村· 四川 | 小隐建筑

九寨沟日赛谷丽思卡尔顿隐世酒店 · 四川 | 中国建筑西南设计研究院有限公司 + WATG建筑设计事务所

云躲躲·烟花小屋 · 湖南 | EERI 建筑设计工作室