有力统一的形式,标志性的建筑综合体|
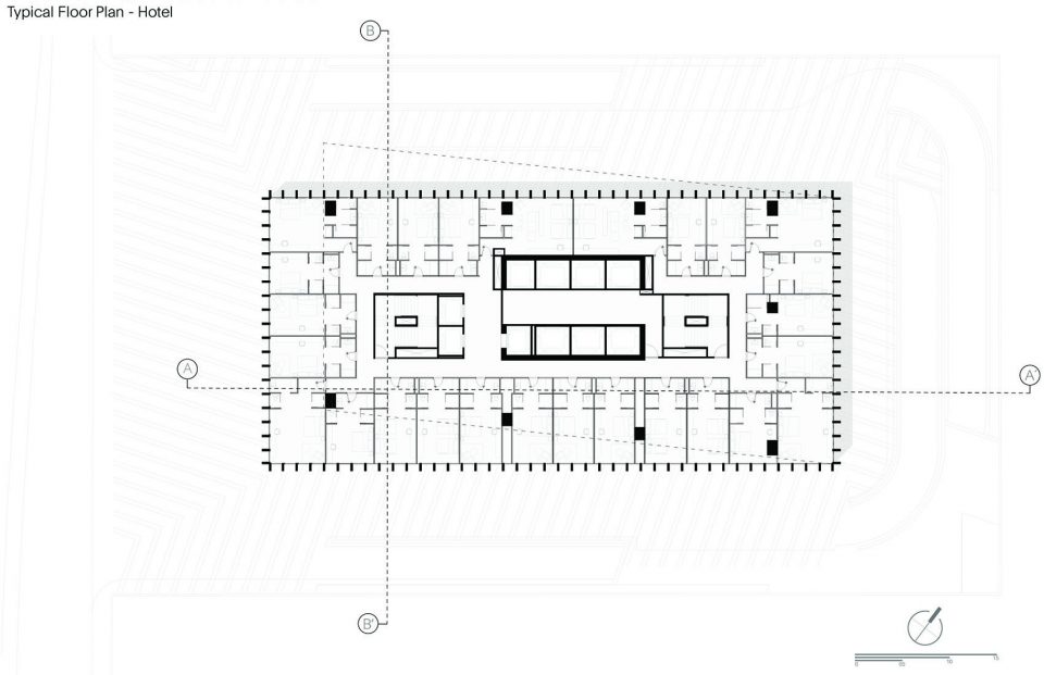
AMÉRICAS 1500 这座办公室和酒店综合体位于瓜达拉哈拉市中心。他正式、有力、统一的体量感传达出了作为标志性建筑的特征。设计概念源自建筑未来会承担的混合性功能:四个堆叠的几何形体组成了建筑的主体部分,其中两个部分略微偏移并在最末端的平面再次对齐。这种不稳定性是为了打破建筑呆板、稳固的外表,增加一抹优雅的运动感。整个建筑的底部空间是用作酒店客房,上面的三个体块分别为三家不同的公司提供办公空间。
▼建筑外观

▼建筑主体部分略微偏移的体块在最末端的平面再次对齐

该建筑毗邻城市中一条最主要的高速公路 Americas Ave.,将周边环境因素纳入考量后,设计团队决定使用双侧幕墙结构以更好的隔离建筑内部与外界环境。
▼建筑毗邻城市中主要的高速公路

设计过程中最大的挑战是建筑的四个外立面中有三面都有强烈的光照,为了保证建筑内部均匀的光照条件,设计团队采用嵌入式铝框架。最外侧的铝制结构有着特殊设计的角度,以创造恰到好处的阴影,避免建筑内部聚集过量的光线和热量。此外,双层的玻璃幕墙保证了内部稳定的温度环境。建筑外观流畅、重复的线条赋予了它独特且永恒的品质,强调了地标建筑的经典的形象。同时这也是墨西哥西部第一座获得 LEED 认证的环保建筑。
▼外表皮的铝制结构


▼特殊设计的角度保护建筑内部的光热环境

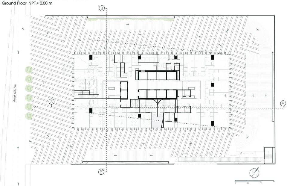
建筑底层是一个广场,一个大型的公共空间,为建筑周边各种交通功能提供服务。建筑内部的核心筒中共有三组电梯服务于酒店、办公空间、停车场和后勤工作。车辆和行人入口设在一个有着导向性铺装和垂直绿化的空间。天然石灰石不同的颜色组成了铺装的主要纹理,这个在地面上随机的组合,延续了建筑外表皮的机理。
▼建筑的主入口的铺装和绿化延续了建筑外表皮的机理

▼由主入口进入办公空间大厅

Torre Américas 1500 是整个综合体建设的第一阶段。整个建筑占地 4,166 平方米,建筑面积 29,461 平方米,地面上共有26层,天台附有一个直升机停机坪。地面下共有七层,总面积达到 28,509 平方米。整个建筑结构设计基于预应力混凝土板和核心筒的部分。
▼位于建筑另一侧的酒店入口

▼酒店大堂

▼建筑内部空间

▼观景露天泳池

▼高层的开放观景空间


▼立面

▼剖面

▼平面





项目名称:美洲 1500 办公室酒店综合体
项目地址:墨西哥瓜达拉哈拉
设计公司:Sordo Madaleno Arquitectos
主席:Javier Sordo Madaleno
架构负责人:Javier Sordo Madaleno de Haro
项目负责人:Boris Pena
项目经理:Andrés Harfuch
制作经理:坎迪多·埃尔南德斯
主创及设计团队:Juan Marin de la Plaza、Miguel Baranda、Abraham Gracía、Luis a.Cabello
工程协调:Marcos Hernández
施工单位:ADC Soluciones Integrales para la Construcción
媒体与营销:Rosalba Rojas, María Luisa Guzmán
室内设计:Sordo Madaleno Arquitectos
内部主管:Nadia Borrás、Enrique Ralph
内部团队:费尔南达·帕蒂诺
结构工程:Luis Bozzo Estructuras y Proyectos
结构监理:Alba Proyectos
电气工程:Fortuis Electromecánica S.A.de C.V.
空调工程:ICC Aire Acondicionado S.A.de C.V.
系统与特殊工程:Teleintra S.A.de C.V.
水利卫生工程:建筑、工程和卫生
照明顾问:Sistemas y Soluciones en E ciencia Energética S.A.de C.V.
音频和视频顾问:Teleintra S.A.de C.V.
景观顾问:lantica S.A.de C.V.
安全顾问:Bravo Sentinelas
构造:Constructora Anteus
项目年份:2016年
建筑面积:57970 ㎡
地形面积:4116 ㎡
空间主材:铝合金 玻璃
摄影师:Rafael Gamo
证书:LEED Silver
编辑版权©灵感LAB,禁止以灵感LAB编辑版本进行任何形式转载

关注公众号

关注抖音号

九寨沟日赛谷丽思卡尔顿隐世酒店 · 四川 | 中国建筑西南设计研究院有限公司 + WATG建筑设计事务所

阿那亚入户大堂·三亚 |是所设计

容居·沙港田园民宿 · 上海 | 得当设计

Mountaintop Bilpin 度假屋 · 澳大利亚 | IAPA

凯州新城中央音乐公园-婚礼堂及酒店 · 四川德阳 | STUDIO QI建筑事务所

丹棱老峨山居度假酒店 · 四川眉山 | 門口建筑工作室