该项目是由Plan B Arquitectos设计的位于哥伦比亚首都波哥大的一座宾馆。整个建筑体量、高度、宽度、缩进和分布都严格遵循波哥大市政府的规定。
在这些参数规定下,建筑的大部分结构都被确定;此外,出于盈利需要,酒店建筑应充分利用每一寸空间,不应有丝毫浪费。上述条件决定了建筑师的发挥空间十分有限。
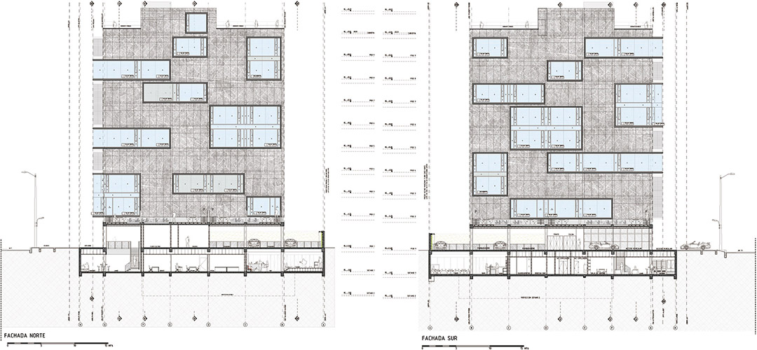
该设计试图渗透到这些限制条件当中,最终呈现出的是一个修长的建筑体量;四面均为开放式立面;较大的立面有金属和玻璃双层表皮;前立面面对街道,并高悬于1.5m的地面层之上(建筑规范允许的范围内)。
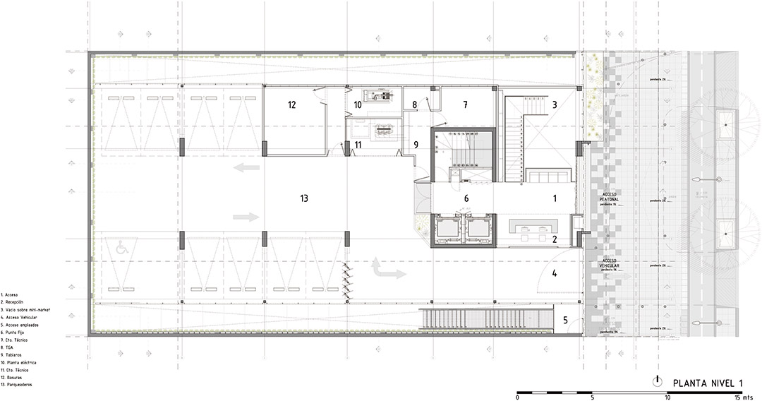
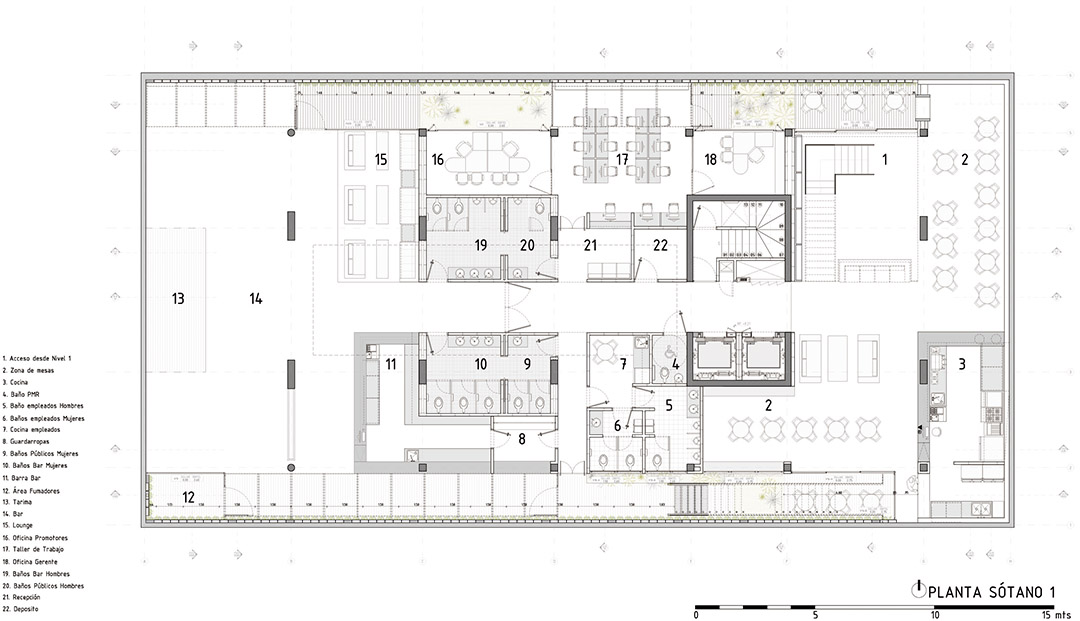
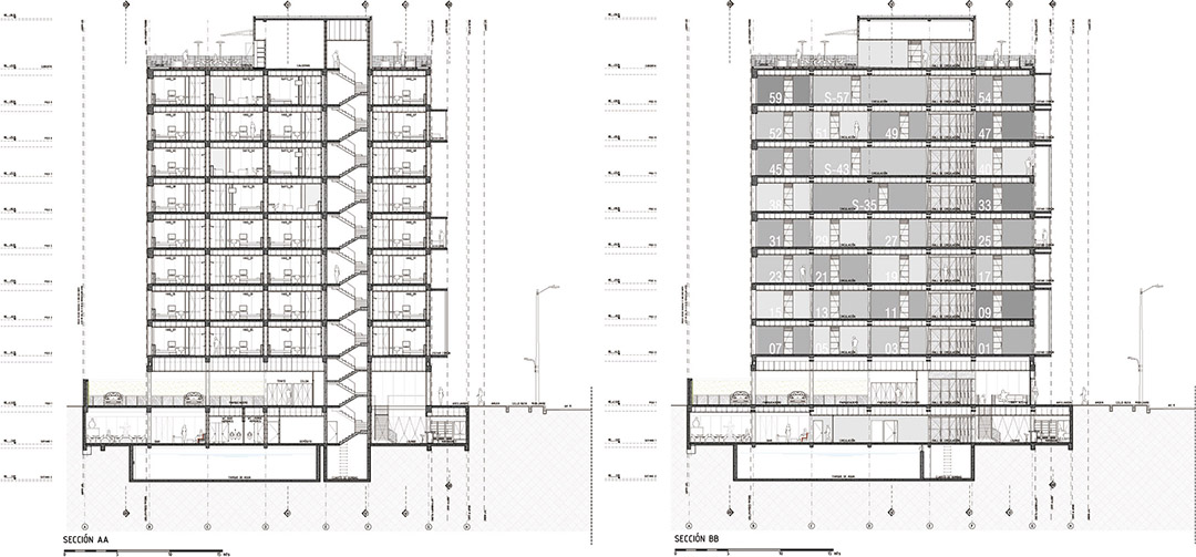
车道和人行道位于同一层。从天窗投进的阳光照亮位于地下层的公共区域。
▼(左)建筑拥有修长的体量与开放式立面(右)立面由玻璃落地窗,玻璃凸窗以及穿孔金属百页组成

酒店层叠的小房间通过中央廊道连接起来。固定的多孔金属百叶窗、大型落地窗以及悬浮在主街道上方的窗户等三种不同类型的窗户以及与城市的视觉联系是该酒店最大的特色。部分悬浮窗户甚至被当做小房间使用。
在房间内可以看到外部的城市生活和风景:有人居住的小山、被统一砖砌体建筑占据的城市,93公园附近区域,而从建筑外部也可以看到酒店内部的情景。特殊的立面设计将内外部巧妙地连为一体。
▼修长的建筑体量与开放式立面。凹凸有致的盒体堆叠让建筑看上去充满活力

▼在酒店内部看到的城市景观。设计模糊了建筑内外的区别

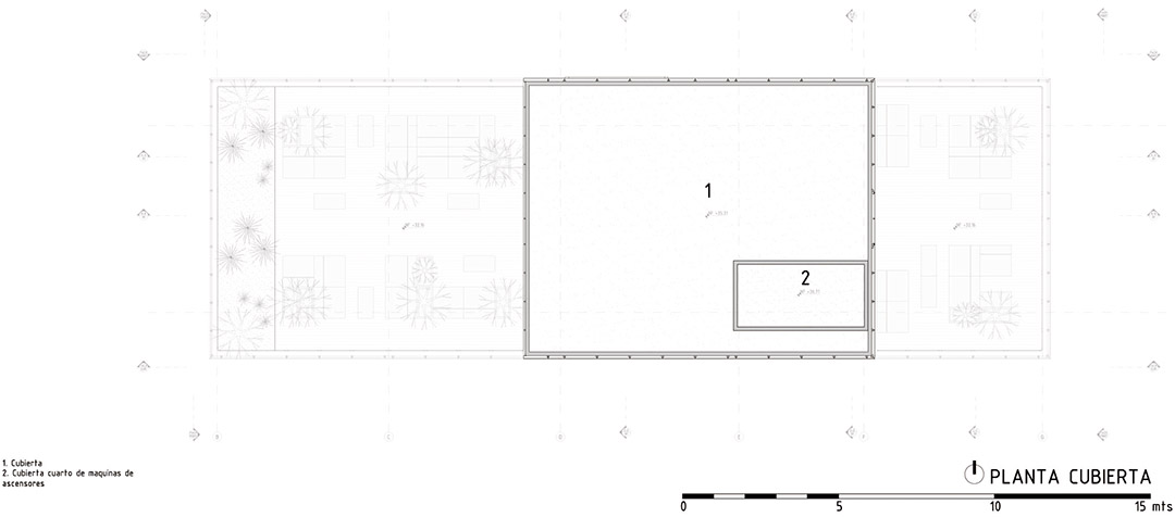
▼拥有屋顶花园的酒店层,两侧留出的缝隙成为天窗,光线渗透进地下两层的酒店大堂与停车场空间。一侧的墙壁做成垂直绿化花园

▼酒店大堂公共空间。一面墙是垂直绿化空间。自然光从建筑与垂直绿化墙之间的缝隙天窗洒进


▼酒店客房,窗外是穿孔金属表皮–其机理是抽象化的城市地图

▼(左和中)开放并凹凸有致的立面,立面由玻璃落地窗,玻璃凸窗以及穿孔金属百页组成(右)酒店大门也使用了抽象画地图的穿孔金属板元素

▼堆叠的体块 概念示意


▼将城市抽象化地图的机理运用在建筑外表皮的金属穿孔板上


▼ 渲染图

▼立面展开图

▼ 立面图

▼ 地面层

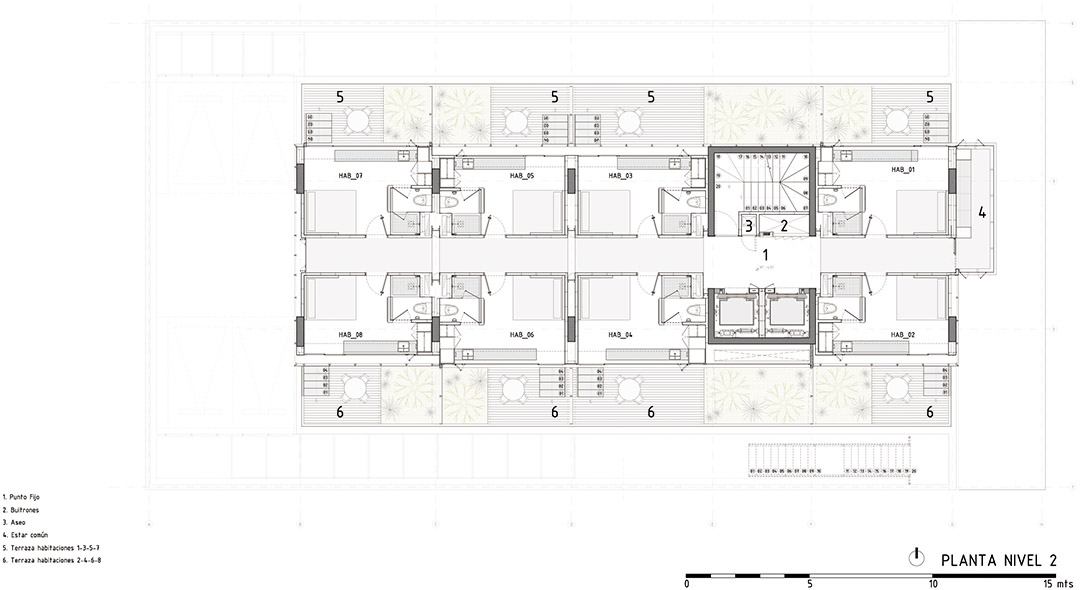
▼第二层

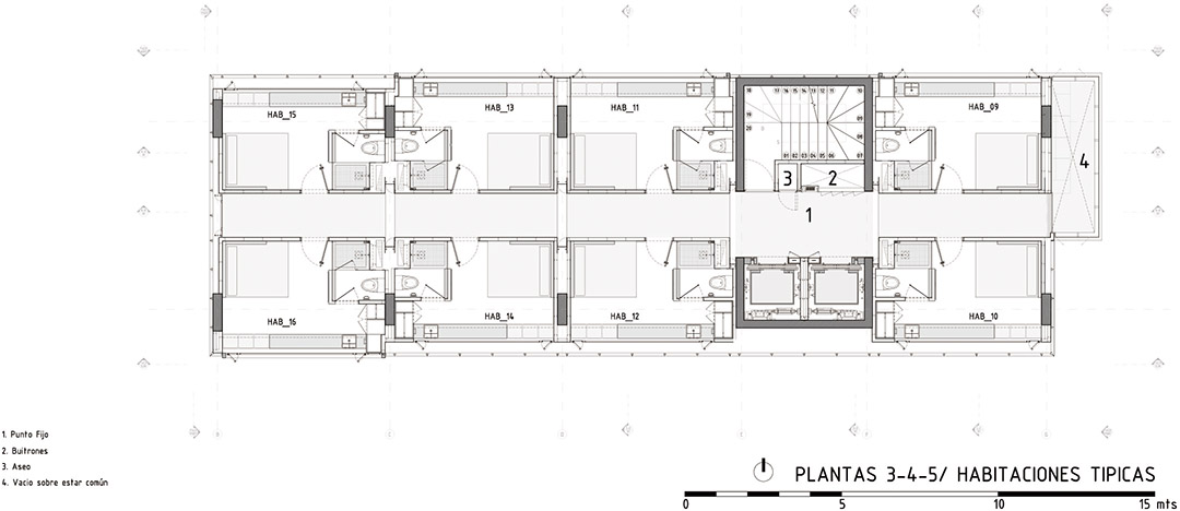
▼3到5层

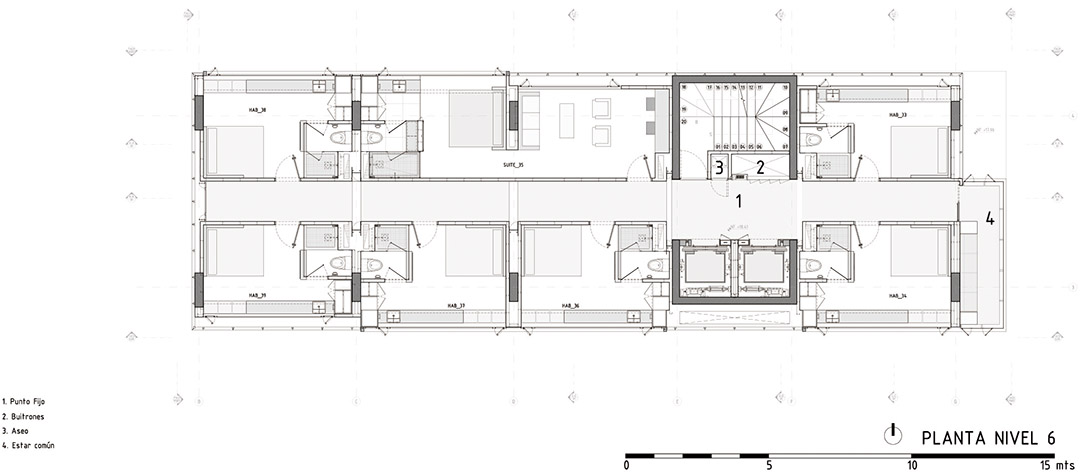
▼ 6层

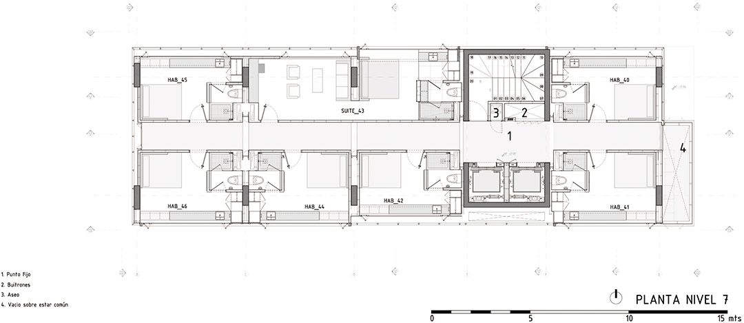
▼7层

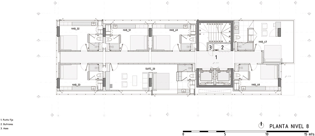
▼ 8层

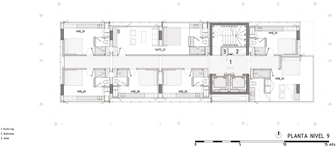
▼9层

▼顶层

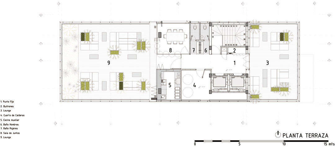
▼屋顶平面

▼地下一层

▼地下二层

▼立面

▼立面

▼剖面

▼剖面

项目名称:Click Clack 宾馆
项目地址:哥伦比亚波哥大波哥大
设计公司:Plan B Arquitectos
主创及设计团队:Ivanovha Benedetto, Sebastián Serna, Juan Pablo Giraldo, Juan David Hoyos, Carlos Blanco, Daniel Tobón, Gloria Rivera,Anne Berkers
室内设计:Perceptual
施工单位:Acecuma Constructores LTDA
项目年份:2012年
建筑面积:4500㎡
空间主材:金属
摄影师:Andrés Valbuena, Santiago Pyniol
编辑版权©灵感LAB,禁止以灵感LAB编辑版本进行任何形式转载

关注公众号

关注抖音号

九寨沟日赛谷丽思卡尔顿隐世酒店 · 四川 | 中国建筑西南设计研究院有限公司 + WATG建筑设计事务所

阿那亚入户大堂·三亚 |是所设计

容居·沙港田园民宿 · 上海 | 得当设计

Mountaintop Bilpin 度假屋 · 澳大利亚 | IAPA

凯州新城中央音乐公园-婚礼堂及酒店 · 四川德阳 | STUDIO QI建筑事务所

丹棱老峨山居度假酒店 · 四川眉山 | 門口建筑工作室