Baan Pomphet酒店外观的设计灵感来自于项目场地及其周边环境。场地不仅包括古老的纪念碑“Pom Phet”,还拥有俯瞰帕萨克河与湄南河交汇处美景的绝佳视野。随着水流起起伏伏的水葫芦,在夏季铺满整个河面。两河交汇于此形成的漩涡,成为场地独一无二的风景。
▼河畔酒店远观

事务所在设计建筑及包括滨江平台的各平台布局时,将顾客的视野视为最重要的考量因素。如何在尽可能为客户带来绝佳视野的同时,还能保护他们的隐私,是该项目的重点。在总体规划中,设计师将餐厅和酒店这两座建筑分开,利用主流线的规划,使得每个人一进入场地就能欣赏的河流景观。
▼建筑平台的布局充分考虑游客的视野

▼上层平台上视野开阔

Pom Phet堡垒是由漆为白色的砖和水泥构成的,因此在该项目中,设计师选择继续采用砖材料。砖块是大城府非常常见的建筑材料。设计师为建筑选择了四种不同尺寸的手工砖。每种砖的宽度和厚度相同,仅长度不同,分别是4,5,6厘米。将这些手工制作的砖块以独特的手法拼接,建筑的墙壁和地板成为更为独特的手工艺品。墙壁凹凸不平的纹理呈现出光影斑驳的变化。项目中所用的手工砖来自于距场地30分钟车程的本地砖厂,BPK。这种手工砖非常小,呈现出特殊的橙色。设计师用这些砖块为墙壁和地板拼接出6中不同的图案。BPK生产的砖块在砖炉内用木材烧制,且手工控制砖炉。因为不像其他工厂一样使用气体来同一控制砖的质量,所以BPK出炉的砖块的橙色有一定的差异性。
▼餐厅与客房间的主通道

▼墙壁凹凸不平的纹理呈现出光影斑驳的变化

▼酒店主楼梯,砖块拼接出不同图案

该项目其中一个有趣的灵感来自于业主自己。业主Saralee Rattanapuchpong是大城府本地人,他的家人在与Baan Pomphet相同的街道上经营着另一家成功的餐厅。Saralee要求酒店的客房修建在厨房之上。对Saralee来说,这个项目不仅仅是能容纳160个座位的餐厅和8间客房的酒店,同时也是她的家。Saralee性格友好,热情欢迎每一位到来的客人。因此,设计团队将建筑控制为较小的规模,以此营造出温馨而舒适的氛围。这样的建筑形式能让人联想起在泰语中被称为“baan baan”的传统房屋。 项目中采用了许多泰国建筑中常见的细节结构,例如每间酒店房间门前的木质楼梯,或是铁艺与木艺结合的酒店主楼梯。设计师认为,砖,木材及手工瓷砖一类的天然材料可以为建筑带来温度。
▼通向客房的木质楼梯


▼客房楼梯细节




Baan Pomphet酒店的设计让客人在探索通向河岸的不同空间时,总能源源不断地发现惊喜,比如在河边的Pom Phet堡垒边设置的观赏点,又比如泳池边只有内部游客才能欣赏到的菩提树。泳池和主通道之间用木墙分隔。木墙既成为酒店木质的主楼梯的延伸,又增强了空间的隐私性。其次,酒店场地中有一棵优美的菩提树,事务所请来专家为它精心修剪树形。为保护菩提树,酒店建筑的地基尽量远离了树根。该树成为酒店三维空间构成的灵感之源。为了让顾客能够欣赏到整棵菩提树,设计师仔细考量了游泳池的高度。场地内风力强劲,设计师在布置酒店房间时,还需要考虑建筑内部的通风要求。
▼木墙分隔空间,增强隐私性

▼泳池被抬高

▼从檐下看向造型优美的菩提树

▼泳池边的半开放空间和泳池细节

Baan Pomphet餐厅内部的主色调采用了烤河虾的橘色。烤河虾是大城府当地最著名的一道菜,其颜色与建筑外部砖墙的颜色非常相似。从餐厅主入口进入,游客会先进入一间带有烟囱的木制建筑,“烤河虾屋”,随后经由主通道进入餐厅。餐厅的天花板上装饰有名为chanang的传统渔具,并将它们改造成吊灯。这种器具在泰国当地被用来捕捞鱼虾,是传统劳动人民智慧的象征。同时,chanang衍生的编织物也被当作装饰,挂在餐厅的墙上。
▼餐厅的天花板上装饰有名为chanang的传统渔具

▼从餐厅看向庭院,木材结构的颜色与橙色的砖墙相比配

▼餐厅吧台

▼餐厅墙壁上的编织装饰

酒店的内部采用了两种从食物中提取的颜色为主色调。一楼的房间采用了来自Cha-plu的绿色。Cha-plu是泰餐中常见的配料,颜色为深绿色,口味略苦。二楼的房间采用了菠萝蜜的黄色。菠萝蜜甜而鲜,因而经常被用做泰式糖果的原料。酒店室内装饰以简约风为主,使室内的简洁与室外丰富的细节形成对比。对比亦发生在室内的绿色和黄色与室外砖块和木材的色彩之间。
▼以绿色为主色调的酒店房间


▼以绿色为主色调的浴室

▼以黄色为主色调的酒店房间


▼以黄色为主色调的浴室

哈努曼(Hanuman)门把手是Baan Pomphet酒店充满设计感的小元素之一。在罗摩衍那史诗中,哈努曼是印度风神瓦尤(Vayu)的儿子。我们选择用哈努曼来象征酒店中的风。酒店的哈努曼门把手像是一只鼓起脸颊的猴子,猴子的毛发沿顺时针的方向旋转成风涡的形状。门把手由Chunsiri Chai-ear绘制形状,再由柚木进行手工制作。在轮廓绘制完成后,需要根据木材的层次制作电子模型。手工制作的产品往往比机器切割更具魅力。木制的门把手没有锋利的边缘,因而脸颊处呈现出立体的弧度。更重要的是,酒店中目前安置有16个这样的门把手,每个门把手都因手工制作而呈现出略微的不同。Baan Pomphet体现出业主,建筑师和工匠之间良好的合作关系,在这个项目中,每个部门都展现出了自己最精湛的技艺。
▼充满设计感的门把手

▼夜色中酒店的灯光倒映在湖面上

▼夜晚的后庭院

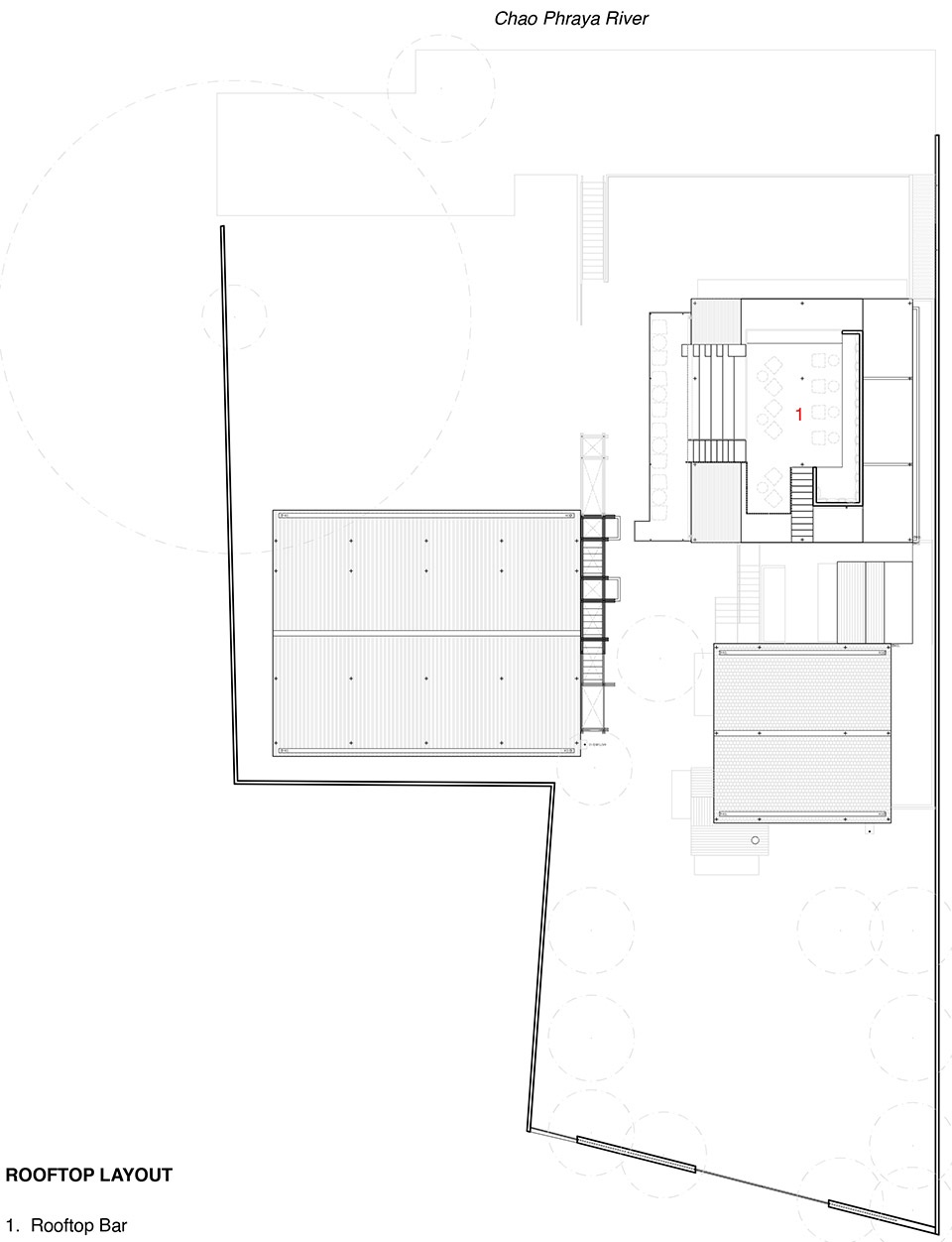
▼屋顶平面

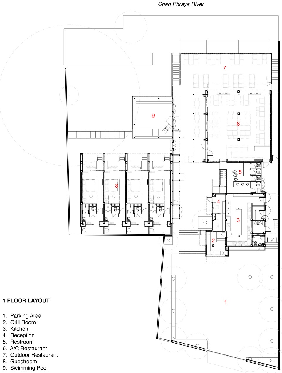
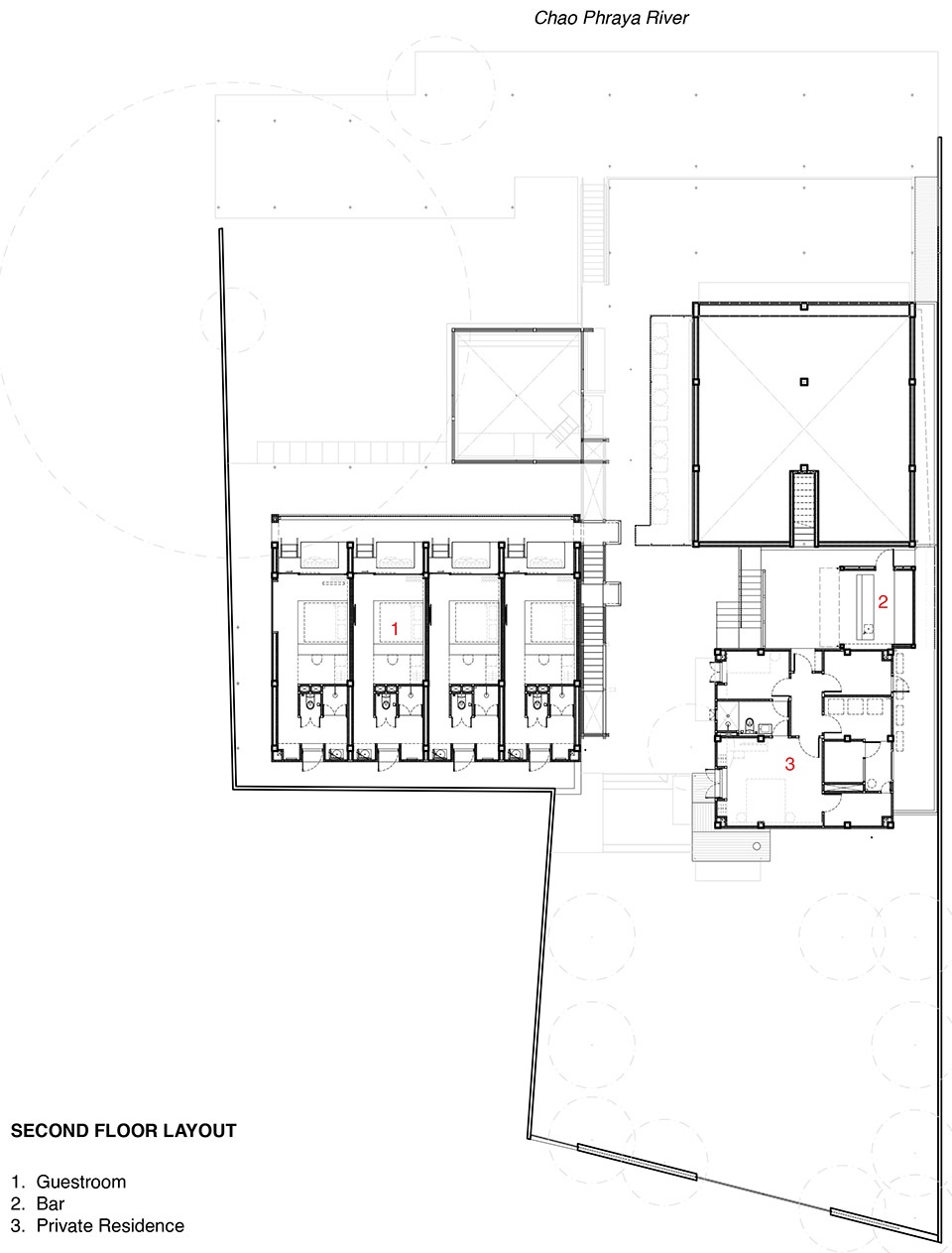
▼建筑平面



项目名称:Baan Pomphet餐厅及酒店
项目地址:泰国大城府乌通路“Pom Phet”古堡旁
设计公司:Onion Design ASSOCIATES、M.L.Chittawadi Chitrabongs
所有者:Saralee Rattanapuchpong
主创及设计团队:Arisara Chaktranon、Siriyot Chaiamnuay、ML Chittawadi Chitrabongs
室内设计:Onion Co. Ltd.
结构工程师:Sawekchai Tangaramvong
施工单位:Double Click Construction Co. Ltd.
建成年份:2020年
建筑面积:2020㎡
空间主材:木材 金属 砖石
编辑版权©灵感LAB,禁止以灵感LAB编辑版本进行任何形式转载

关注公众号

关注抖音号

九寨沟日赛谷丽思卡尔顿隐世酒店 · 四川 | 中国建筑西南设计研究院有限公司 + WATG建筑设计事务所

阿那亚入户大堂·三亚 |是所设计

容居·沙港田园民宿 · 上海 | 得当设计

Mountaintop Bilpin 度假屋 · 澳大利亚 | IAPA

凯州新城中央音乐公园-婚礼堂及酒店 · 四川德阳 | STUDIO QI建筑事务所

丹棱老峨山居度假酒店 · 四川眉山 | 門口建筑工作室