泉州万科里在工业遗址保留及商业氛围活化之间取得了良好平衡,同时勾起了对泉州当地民居民风的感性回忆。
▼项目概览

历史背景
泉州是古代“海上丝绸之路”的起点,宋元时期泉州刺桐港被中世纪世界著名旅行家马可波罗誉为“世界第一大港”,与埃及的亚历山大港齐名。市区分为古城区与新城区,古城区保留了大批融合了闽南、伊斯兰、阿拉伯、欧式风格的古建筑。泉州被誉为“一眼红城”,古城区呈现满城红砖的特质,非常壮观,各种保留完好的古代建筑经常出现在街头巷尾。
▼俯瞰泉州

中侨糖厂具有悠久的历史背景,在泉州有一定影响力,曾是福建经济支柱产业,产值占整个泉州的三分之一。改造前厂区旧建筑保存良好,具有一定规模,多为通高空间,其中留有水陆码头吊车廊架等特色构筑物,场地现场保留原生树木,且有若干棵树龄超过百年的榕树。项目西侧紧邻潘山,与晋江仅一路之隔,背山面江,享有独特景观优势。
▼项目鸟瞰

设计说明
竖梁社的设计概念,从链接“旧糖厂保留区、裙楼车库、平台连廊”这三个基本功能展开,在保留原有厂区的空间肌理的原则下,新建建筑与旧建筑精确而和谐地共处,营造出尺度舒适的消费场景。核心保留区以一座传统石材建造的“厂长办公室”为中心,结合新建住宅区停车场的边界,巧妙的通过“增加小院子”的方式,打造凹凸不一的商业界面。在空间设计上,通过置入、衍生、对望的手法,使失去了活力的工业遗址再造重生。
▼轴测图

▼临街立面

▼核心保留区以一座传统石材建造的“厂长办公室”为中心

▼通过“增加小院子”的方式,打造凹凸不一的商业界面

▼立面细部

走在万科里内部的时候,动线所见每一时刻都是不一样的,可以透过空间看到许多小型庭院的嵌套关系,行进中时而在院内,时而又在院外,结合休闲退台营造的看与被看的积极互动空间,使得整个体验层次丰富又充满趣味。
▼层次丰富的动线

▼庭院细部


与此同时,设计师保留沿用了从前运输甘蔗(制糖原料)的廊架元素衔接弥合了滨江路与场地的巨大高差,强调了主要商业厅堂与游览线路的轴线关系,明确了主要广场空间的进入秩序,同时也解决了住区与商业区的空间衔接问题。
▼原先用于运输的廊架被保留下来

▼夜间视角

老糖厂原本就生长着大量的芒果树,设计师将它们保留下来,并依据空间序列的需求将它们重新移植到恰当的地方,树龄超长的老榕树,则采取保留保护的措施,让它们在原位置继续生长,见证万科里光阴的故事。
▼建筑立面与葱郁的树木形成对话


老糖厂保存下来的历史文物大烟囱成为了万科里的地标,业主斥巨资将烟囱原封不动地移动到现有的位置,中间因为发生小插曲:烟囱意外倒地破碎,业主又不惜再投入费用进行仔细修复,才得以让民众看到它原本的雄姿。
▼老糖厂历史悠久的烟囱

繁复的“砖砌法”体现出设计师的巧思与匠心,设计师通过砖块方向的变换、镂空的砌法设计,设计出不同造型的立体几何立面,在保持立面元素统一的情况下兼顾了室内采光。糖厂的南北两侧受高层楼盘遮挡,东西向的阳光照射带来优美的光影变幻,每逢清晨或傍晚,镂空的墙面折射出斑驳的影子,引发人无穷的怀旧情思。
▼以“砖砌法”构建的立面

▼砖块方向的变换和镂空的设计形成不同造型的立体几何立面


▼夜景


▼场地剖面透视图


▼尺度控制

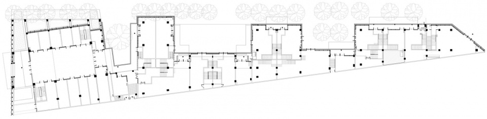
▼平面图1

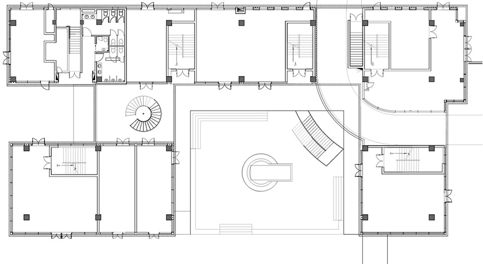
▼平面图2

▼立面图

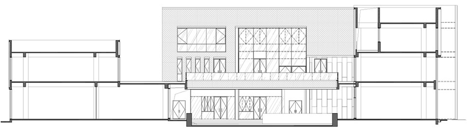
▼局部剖面图

▼局部剖面图

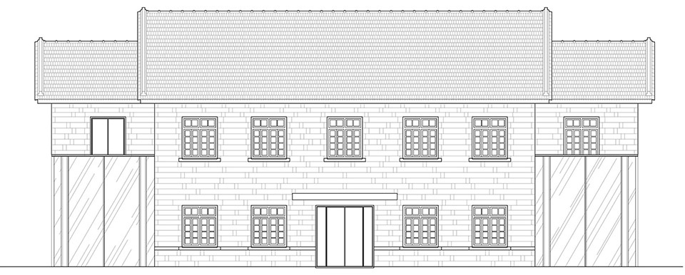
▼厂长办公室立面图

▼厂长办公室剖面图

项目名称:泉州万科里
项目地址:福建省泉州市丰泽区江滨路
设计公司:广州市竖梁社建筑设计有限公司
主创及设计团队:钟冠球,宋刚,朱志远,金鑫,林海锐,温展俊,林祥庚,梁子豪,李梦倩,刘潇懋,蔡嘉彬,潘庆文,谭鎏,李锐波,蔡雅倩
客户:万科
施工单位:南京建工
项目年份:2013.8-2018.8
建筑面积:29500㎡
空间主材:红砖 金属 钢 砖石 玻璃
摄影师:吴嗣銘、钟冠球
编辑版权©灵感LAB,禁止以灵感LAB编辑版本进行任何形式转载

关注公众号

关注抖音号