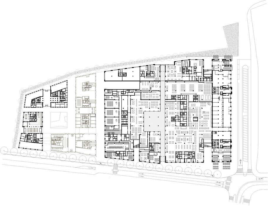
苏黎世城市中心一块紧靠中央火车站的用地正在进行如火如荼的建设,这个大型的基础项目将在2018全面竣工,局时将提供6000个工作位空间,1800个学习空间,一个酒店,商店,餐厅还有其它的休闲空间。在2006年决定改建前这块地区属于铁路部门和邮政局专属用地。

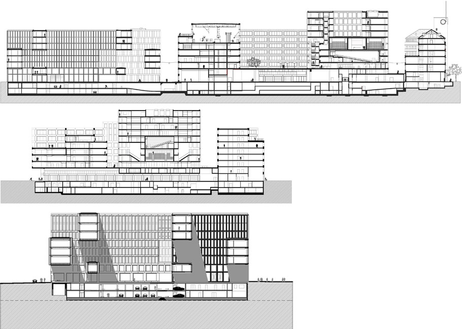
整个用地分两期建设,第一期包含的苏黎世大学教育区,办公楼和商铺已经在2012年秋季完工。南面的玻璃建筑还设有会议室,幼儿园,音乐室等,屋顶有两个体育厅。地下有演播厅,大学食堂,图书馆。建筑的外墙砖石拼接简洁优雅,大尺寸玻璃与石墙间上演着优雅的合奏,一些局部的凸起和澳超让建筑体现出雕塑般的品质与宁静。2013年将有银行完成,大卫齐普菲尔事务所设计的另外一块用地上的四栋建筑在2015年完工。
这个城市老区中的新开发建筑群高度与周边协调;其内部具有整体感,形成彼此对话;同时语汇上对苏黎世传统做出传承。这里有街道,小巷,广场等等要素,当喷泉,路灯,长凳部署完毕,这个区域仍旧是优雅丰富欧洲城市历久弥新一部分。


苏黎世欧洲酒店
建筑工地A
苏黎世的城市正在成长
马克斯·达德勒创建教师教育和办公大楼大学
在苏黎世的新欧罗巴勒区。
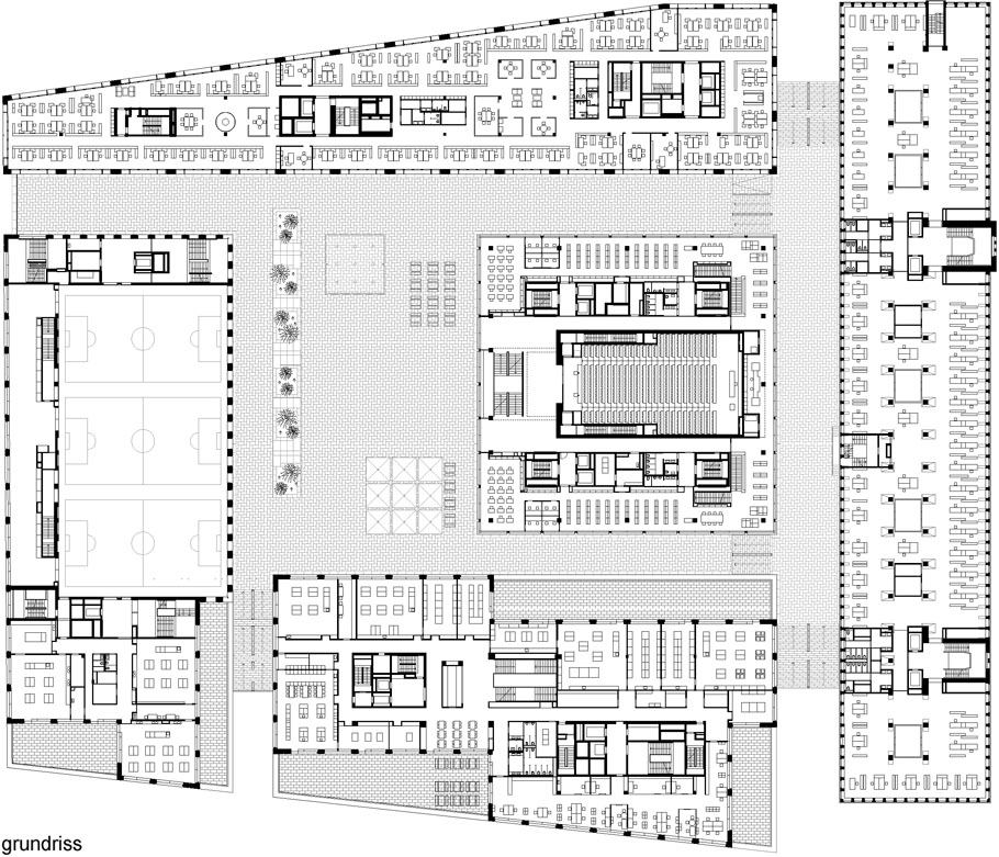
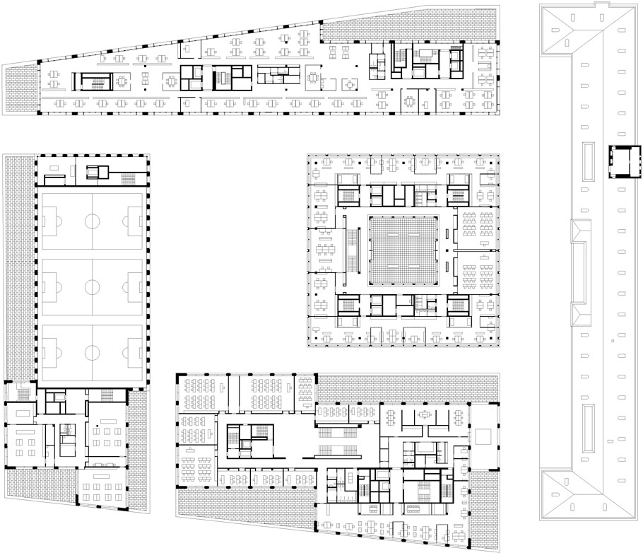
马克斯·达德勒将新欧罗巴阿莱区的建筑分为两个施工阶段。在建筑工地A,直接在Siell邮政大楼后面,一个三个建筑物的集合正在为苏黎世的大学教师教育建立,连同额外的办公室和商店设施。该建筑群是欧罗巴阿莱区建造的第一座新建筑,于2012年秋季竣工。这所大学的高架中心校园是通过一组比例相当大的外部台阶到达的。中央区域将乐团的主要玻璃建筑与南面的建筑相连,南面的建筑内有研讨会室和托儿所,西面的建筑内有工作室和音乐室,最高层有两个体育馆。广场北侧是一栋办公楼,也是由马克斯·达德勒设计的。在演讲室、大学食堂和图书馆的下方建有一座购物中心,其中包括一条通往地面火车站的通道。建筑群的立面以砖石建筑的简洁和优雅为视觉导向。深邃的阴影将大型玻璃和特罗塞尔费尔斯石灰岩立面元素分隔开来。通过部分投影和凹槽,该建筑的正面既有雕塑感又宁静,视觉上也一致。其玄武岩表面细节无缝延伸至相邻的门厅和食堂。
此外,在西面与施工现场A接壤的施工现场C,到2013年,将为一座大型银行修建总共四座建筑。在这四栋建筑中,有两栋由马克斯·达德勒设计,另外两栋由吉贡/盖耶(苏黎世)和大卫·奇珀菲尔德建筑师(伦敦/柏林)设计。桥梁将这四座建筑连接在一起,形成一个大型结构。随着现有Alte Sihlpost大楼的改造,整个合奏将于2015年完工。
主要设计目标是将新区融入原有城市的结构中。因此,设计的楼层高度与周边地区的屋檐高度相匹配。这座建于1929年的优雅的Sihlpost建筑位于建筑工地A的入口处,为新建筑中的雕塑投影和凹槽提供了视觉线索。从整体来看,建筑工地a和C上的建筑是正在进行的建筑对话的一部分,将苏黎世的建筑传统转化为我们时代的语言。该城市发展计划中包含的街道、小巷、广场和通道为欧洲城市设计提供了更多的多样性。喷泉、路灯和长凳等细节,使这座城市的新部分具有永恒的欧洲特色。




















以下是MAX DUDLER提供的更多信息:
马克斯·达德勒在欧洲大学教师教育大学苏黎世分校开幕式上的访谈
在苏黎世的主要火车站,新的欧罗巴阿莱区将于2018年完工。你认为这一领域的转型有哪些机遇和风险?你对建筑工程的结果满意吗?现在正是增加苏黎世这座不断增长的城市的密度的好时机。和瑞士的许多城市一样,提高密度是苏黎世唯一重要的增长方式。因此,我们必须对已经建成的场地进行加密,并利用剩下的最后一块土地,比如苏黎世主要火车站的这块开发用地。在这样做的过程中,苏黎世获得了一个新的密度,就像新出版的一本关于教师教育大学的书所说的那样。也许是一个新的密度,但也需要一个新的城市设计质量水平。面临的挑战是提高密度,同时确保苏黎世保持苏黎世的知名度。将新元素整合到现有元素中也是如此。EulaPalLee的第一个阶段需要建设教师教育的建筑群,就其时间和规模而言,这是这方面的先驱。当然,如此规模的项目会影响各种既得利益,冲突也会随之发生。然而,我相信,结果不言而喻。
从竞赛阶段到项目的实际实现是一段漫长的旅程。在构思这些建筑时,你的指导思想是什么?从那以后有什么变化吗?如果你将作为我们参赛作品的一部分制作的模型与完成的季度进行比较,令人惊讶的是几乎没有什么变化。我们已经成功地将我们内心的致密化想法转化为现实。从一开始我们就想要一个合奏;新的街道布局既能吸收城市的地貌,又能将其转化为当代建筑语言。如果你穿过小巷,走上台阶来到校园,你会感觉到这种重叠。苏黎世也有类似的例子,比如林登霍夫:通往公共广场的美丽台阶。在我看来,这非常成功。我对细节也很满意。还有一件事对我来说很重要:Sihlpost大楼终于恢复了其作为主要建筑的应有地位。它将不再像以前那样简单地“建立在后面”。因此,旧的是新的一部分。
建筑工地A与它的Alt SiHLPOST和教师教育大学的竞争,以及建筑工地C与瑞银银行大楼,是同类产品中的第一个。你认为这场比赛对欧罗巴莱的出场有决定性的影响吗?的确,我相信我们第一阶段的解决方案对随后的建筑工地产生了连锁反应:对它们的节奏,它们的核心。许多其他参赛作品设想的建筑工地A的完整建筑与教师教育大学。我们建议把大学校园建在一个凸起的广场上。我们沿着Kees Christiaanse在总体规划中所规划的原始路线,并通过增加更多空间和通道对其进行了扩展——现在,城市中终于有了真正的广场。城市空间的连续性也保持不变。一切都是公开的。考虑到欧洲城市的未来发展,我相信,随着时间的推移,开放空间在城市规划中比一栋孤立的建筑更重要的理念将会盛行。在这个过程中,我们也学到了新的东西。建筑工地A和C的构思是同时进行的,因为以前位于这里的邮政分拣办公室占据了如此巨大的面积。我们意识到这个空间对于任何一个建筑师来说都太大了。这就是为什么我们建议建筑公司David Chipperfield和Gigon/Guyer(他们也参加了比赛)也为建筑工地C提供建筑。这被证明是成功的。
人们经常提到可持续性,这个词在与Europaallee的联系中反复出现。对我来说,可持续性的问题超出了能源使用和材料选择的问题。在这种情况下,重要的是决定把教师教育大学带入城市的中心,到一个所有火车连接汇合的地方,从而成为完美的位置。这就确保了这个季度变得生气勃勃,而且非常多样化。这就是可持续性。和阿尔特·西尔波斯特一样,如果这些建筑能在接下来的一百年中存活下来,那也是可持续性的。要让一个地方被接受,它需要提供广泛的城市功能,其中包括商店和餐馆。这就是为什么我们也认为购物中心是个好主意,将Lagerstrasse与Europaal连接起来。
项目名称:苏黎世中心区域新综合项目
项目地址:瑞士苏黎世
客户:SBB Swiss Federal Railways,Construction Department of the Canton of Zurich
设计公司:Max Dudler
项目管理:Mark van Kleef,Wiebke Ahues
项目经理:Christian Moeller、Wiebke Ahues、Maike Schrader、Claudio Pasquini、Christof Berkenhoff、Nina Behjati
主创及设计团队:Britta Fritze (Wettbewerb), Anna Bartels, Inken Blum, Stefan Bohe, Eva Brass, Merry Classen, Beate Dauth, Stefania Dziura, Jan Feislachen, Arlette Feltz- Süssenbach, Hannah Ferlic, Christian Franke, Martin Grasse, Gesine Gummi, Aysu Gümüstekin, Clive Hildering, Anna-Katharina Hüveler, Jörn Kärcher, Isabell Klunker, Katharina Laekamp, Silke Meier zu Evenhausen, Isabelle Meissner, Johann Moeller,Helga Müller, Lisa Onnen, Hannes Reichel, Max Rein, Marcel Rüther, Katja Schmidt, Kathrin Schmitz, Andrea Schregenberger, Andrea Thöny, Cornelius Voss, Karin Weber-Mank, Katja Wemhöner, Renwen Yang
项目年份:2009-2015年
建筑面积:(苏黎世师范教育大学)54 300㎡、(新办公楼)15 300㎡、(Alte Sihlpost改建为办公楼)21 200 ㎡
空间主材:混凝土 玻璃
摄影师:stefan Miiller
编辑版权©灵感LAB,禁止以灵感LAB编辑版本进行任何形式转载

关注公众号

关注抖音号

九寨沟日赛谷丽思卡尔顿隐世酒店 · 四川 | 中国建筑西南设计研究院有限公司 + WATG建筑设计事务所

阿那亚入户大堂·三亚 |是所设计

容居·沙港田园民宿 · 上海 | 得当设计

Mountaintop Bilpin 度假屋 · 澳大利亚 | IAPA

凯州新城中央音乐公园-婚礼堂及酒店 · 四川德阳 | STUDIO QI建筑事务所

丹棱老峨山居度假酒店 · 四川眉山 | 門口建筑工作室