阿姆斯特丹RAI成立于1893年,以制造自行车起家,如今已成为世界上最大的商业会展中心之一。1961年RAI会展中心便已建立于现在的位置,吸引了超过一亿游客前来参观,当时负责设计建造的建筑师是Alexander Bodon。1989年Benthem Crouwer建筑事务所荣幸地接管了这一任务,并在之后的20年间设计完成了Amtrium和Elicium大楼,阿姆斯特丹RAI螺旋停车场是RAI会展中心建筑群中最新的成员。
▼建筑外观


这座新型多功能停车场位于阿姆斯特丹Zuidas商区A10环道边,建筑高达30米,有八层停车空间,可容纳约1000辆车停放,其二层除停车之外,还可用来举办会议和展览。当RAI没有活动时,这里可作为公共停车场供大众使用。
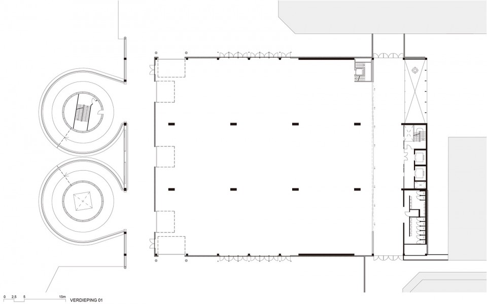
▼建筑二层平面,可用作会议和展览

螺旋结构
建筑整体为简洁的长方形,在其西端设计了两个标志性的螺旋塔楼,一个用以将车辆引入停车场上层,另一个做为出口让车辆回到街道。阿姆斯特丹RAI车辆繁多,这样将进出的车辆分流可以大大提高停车的效率。塔楼由预制混凝土构件建造而成,两个巨大的螺旋体相对而立,成为了A10沿线的标志性建筑。夜晚这里会被蓝色的LED灯光点亮,其优雅的螺旋形态会变得更为引人注目。
▼相对而立的两座螺旋塔楼


▼夜晚蓝色LED灯光

▼从螺旋坡道上看到的景色


▼由预制混凝土构件建造的螺旋塔楼及其与主体的连接

▼停车层室内

可变空间
这里不仅可以作为独立的停车场使用,还可以用来举办会议和展览。停车场二层有7.2米高,是其他停车层高度的两倍,整个大厅约有2800平米,其柱网尺寸为7,5米,这样大的尺度减少了空间中支撑结构的数量,使空间更为宽广,人们可以在其中安排不同活动功能。整栋建筑包含三个跨度为15米的中厅,可用作单独的活动空间,而当滑门拉开时,扩展展厅便与RAI主会场连接在了一起。除了一层,上层的停车场和屋顶也可供不同活动使用。
▼二层层高7.2米

▼柱网尺寸为7.5米,扩展展厅用拉门与主展厅相连

RAI薄板
停车场立面由竖向薄板构成,这一元素在RAI的建筑中被多次使用,是综合体建筑之间的一种外在联系。停车场立面的铝制薄板间隔设置,使建筑既通透又保持了一定的私密性;薄板间的空隙让风可以流入建筑,避免了机械通风的使用;而薄板的角度和朝向还可以达到遮雨的效果。
▼立面的薄板

▼薄板间隔保证了室内的通风

▼总平面图

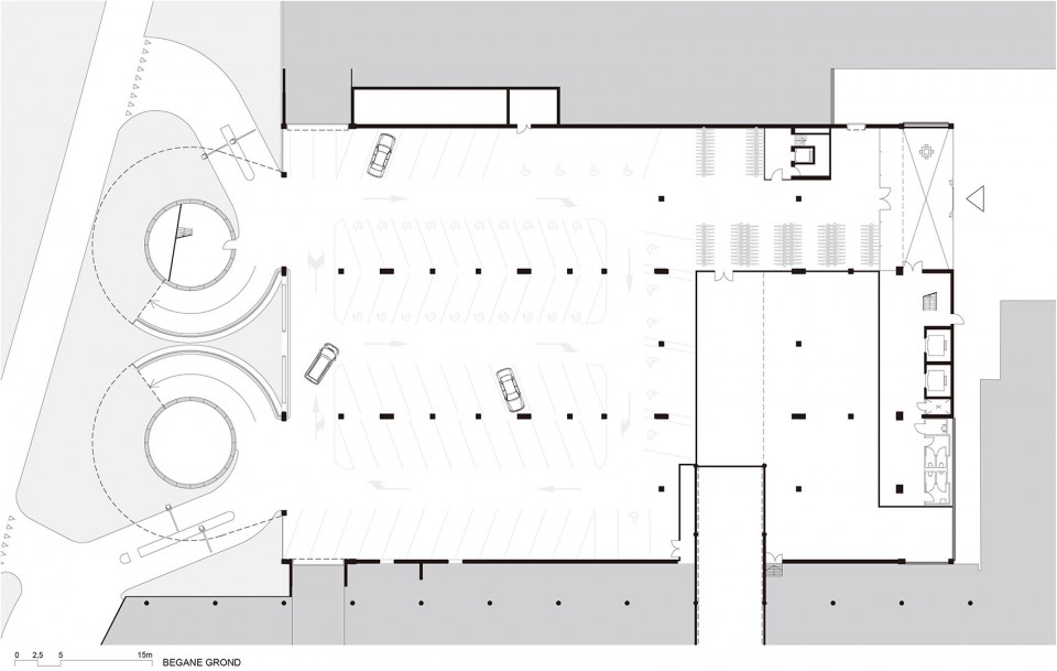
▼平面图




▼立面图


▼剖面图


项目名称:阿姆斯特丹RAI螺旋停车场
项目地址:荷兰阿姆斯特丹Zuidas,位于A10环
客户:RAI Amsterdam
设计公司:Benthem Crouwel Architects
主创及设计团队:Mels Crouwel, Heymen Westerveld, Noortje ter Heege, Willem Jan van der Gugten, Pepijn van der Kroft, Volker Krenz, Jerome Latteux,Aan de Stegge Twello
设计年份:2014年
建成年份:1016.8
建筑面积:28265㎡(不含螺旋)
空间主材:铝合金 混凝土 百叶
摄影师:Jannes Linders
图纸:Benthem Crouwel Architects
英文文本:Benthem
中文文本:gooood
编辑版权©灵感LAB,禁止以灵感LAB编辑版本进行任何形式转载

关注公众号

关注抖音号

科威特驻文莱大使馆· 文莱 |Architectkidd + Arkitek Rekajaya

又见五台山剧场 · 山西 |北京市建筑设计研究有限公司朱小地工作室

首都国际会展中心(CIECC)· 北京 |Zaha Hadid Architects

CIFF2024 广州三朗家具展厅·广州 | 互建筑

九江渡口文化空间改造 · 佛山 | 玳山设计

山下有松空间 · 北京 | 建筑营设计工作室