重庆两江协同创新区 创新∑空间,这栋不足3000平米的办公楼,世外桃源般的山野环境,三个不同个性的私享景观庭院,七重层次的全视野超大露台,每种都是极为稀缺的元素,却都巧妙的融合在一栋办公空间里,这是想象力的一次爆炸。
▼项目鸟瞰

重庆是座山城,尊重山地就是尊重“重庆文脉”
重庆作为一座山城,山地是最重要特征和载体。我们从一开始就摒弃传统的削峰填谷处理方式,而是以山地作为营造元素,采用“顺势营造”的设计理念,通过与山地共融的方式来探索空间和体验的新可能。项目位于两江新区创新区,为新区建设指挥中心提供办公,餐饮,展示等功能,面积约3000平方米。基地位于局部制高点,东面临湖,三面俯瞰新区全景,景观资源绝佳。东侧主要道路,南侧西侧为次要道路,用地几何形态狭长,场地落差高达20多米。
▼体块分析

▼远景鸟瞰


“顺势营造”山地的高差带来空间多样性
我们将餐饮服务,办公,展厅三个功能组团根据功能属性,沿山势标高错位布置,最大限度减少土方调整,同时每个功能组团景观视野互相不遮挡,下一层的屋顶同时也是上一层的平台。
▼分解轴测图

▼顶视图,项目由三个功能组团组成

▼三个组团依山势而建


材料用色要考虑当地气候和环境
重庆大部分铅灰色阴郁天气,灰色和深色在这个环境下容易给人压抑的感觉,因此主材颜色选择偏白色调的仿石混凝土,既低调稳重又彰显存在感,竖向实体采用深灰文化石,粗犷的质感与山地融为一体,同时与细腻的白色主材形成有趣的对比。
▼近景鸟瞰,建筑采用偏白的混凝土

▼竖向实体采用深灰色石材

▼从办公区的屋顶露台看向展厅

▼阶梯式景观

▼展厅外观

▼餐厅入口

▼办公区入口

细部控制 —— 落地的保证
我们希望呈现纯粹而低调的建筑特质,而不去过分炫耀立面。挑檐作为主要表现元素,采用白灰色混凝土挂板,横向采用错缝,竖向企口密拼,增强立面的体量感,凹槽划分弱化尺度,减少挑檐厚重感。
▼不同材料与高差

▼细部

▼夜景

▼总平面图

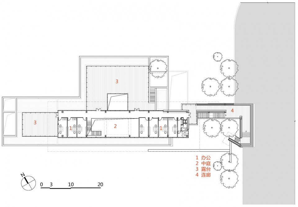
▼首层平面图

▼二层平面图

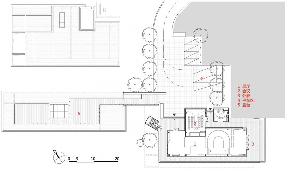
▼三层平面图

▼四层平面图

▼剖面图


▼细部

项目名称:重庆两江协同创新区 创新∑空间
项目地址:重庆两江新区
设计公司:上海都设营造建筑设计事务所有限公司
项目管理:徐燕宁、孔君涛
主创及设计团队:凌克戈、胡威、丁天齐、李知临、谢欣准
设计年份:2018年
建成年份:2020年
建筑面积:3000㎡
空间主材:石材 混凝土 玻璃
摄影师:存在建筑 – 何震环
合作方:西南院重庆分院
客户:重庆两江协同创新区建设协调领导小组办公室,重庆两江新区龙兴工业园建设投资有限公司
品牌:倍仝石
编辑版权©灵感LAB,禁止以灵感LAB编辑版本进行任何形式转载

关注公众号

关注抖音号

科威特驻文莱大使馆· 文莱 |Architectkidd + Arkitek Rekajaya

又见五台山剧场 · 山西 |北京市建筑设计研究有限公司朱小地工作室

首都国际会展中心(CIECC)· 北京 |Zaha Hadid Architects

CIFF2024 广州三朗家具展厅·广州 | 互建筑

九江渡口文化空间改造 · 佛山 | 玳山设计

山下有松空间 · 北京 | 建筑营设计工作室