奇遇城位于神鹿峰旅游度假区内,建筑面积为5000平方米,共分三层,每层设计有不同的主题,通过鹿文化的主线与鹿同行;包含森林寻鹿、探秘洞穴、雪顶勇士。
▼建筑外观

不止于奇遇城建筑本身的似景非景,它还涉及到儿童游乐、研学、景观与公共空间。室内游乐园连接了神鹿峰商街与儿童室外奇遇乐园,为来访的儿童游客提供餐饮、娱乐、研学、观景、休闲五位一体的游乐体验。
▼总平面图

▼场地鸟瞰

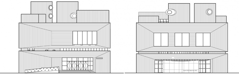
奇遇城建筑本体采用了简约的体块穿插组合模式,展现出现代、前卫的建筑形态,利用两个错位的长方体,创造出了室外平台空间以及室内出挑空间。
▼简约的体块穿插组合


▼侧立面

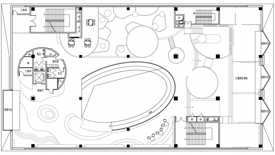
整个建筑主要包括3大功能,地下一层为服务园区的设备用房。一层为主入口包括前台、储存、换鞋等功能。其他区域主要为儿童餐厅、游乐场地。二层为屋顶平台、游乐场地、研学空间。三层为游乐场地、观景平台等。每一层功能随儿童年龄的差异性,设置不同的游乐设施。
▼轴测图

在建筑的中心位置,采用椭圆形中庭并围绕中庭设置了从一层至顶层的环形跑道。解决了竖向空间的连接,同时为儿童奔跑提供了一个适合场所。
▼中庭

▼环形跑道

▼海洋球池

室内空间符合儿童游乐基本要求。通过室内中庭的设计,延续了空间的多方面使用,光线通过屋顶采光天窗进入室内,让儿童在室内游玩的同时也能接受更多的阳光。屋顶平台作为室内外的过渡空间,为儿童提供娱乐、观景提供场所。
▼屋顶天窗采光

▼游戏场地

此外,半透明的聚碳酸酯插接型幕墙系统结合园区的整体环境,意在打造轻盈、简约、通透的视觉效果。平插式的安装方式避免了垂直固定型材的使用,增强了墙体的一体化美感;通过聚碳酸酯板材可颜色定制开发的性能,打造出白绿森系配色的超高一体化幕墙,让建筑与周围的自然景观融为一体,使得游客在室内游乐园娱乐游玩的同时能切身感受大自然的气息。
对于材料的安全性,聚碳酸酯插接型幕墙系统无毒、无味、耐腐,室温下制品与介质长期接触,性能不会发生明显的变化,也为儿童研学、游玩的安全性提供更佳的保障。
▼聚碳酸酯插接型幕墙


同时,聚碳酸酯插接型幕墙系统的透光性在白天也为奇遇城内部引入充足的自然光,使得建筑内部空间窗明几净。而当夜幕降临时,来自建筑自身的灯光则使建筑主体由内而外的散发出迷蒙的光芒。
▼夜间外观



无论是路易斯·康的“设计空间就是设计光亮”,还是柯布西耶的“建筑是光线下形状正确、绝妙、神奇的游戏”,这些话语都表达出光与建筑空间之间千丝万缕的关系。
当一座建筑如生灵般存在于自然之中时,当它遇到了光线,有了光影的陪伴,它便有了灵魂,而建筑有了灵魂,则过客也有了念念不忘的回响。
▼鸟瞰

▼1F平面图

▼2F平面图

▼3F平面图

▼南北立面图

▼东西立面图

▼剖面图

项目名称:神鹿峰旅游度假区奇遇城
项目地址:长春市双阳区山河镇柳树5队吊水壶景区
设计公司:境和设计+品诚控股集团
主创及设计团队:王维、魏成博
施工图:建筑专业孙阳,结构专业张楠,电气专业方丽娟,给排水满天明,暖通王傲然
设计年份:2019.8
建成年份:2020.7
建筑面积:5145㎡
空间主材:合成材料 聚碳酸酯
摄影师:张天争
合作方:上海品诚控股集团有限公司
客户:吉林中庆神鹿文化旅游投资有限公司
品牌:品诚®聚碳酸酯插接板
编辑版权©灵感LAB,禁止以灵感LAB编辑版本进行任何形式转载

关注公众号

关注抖音号

香塘.野邻LINE FRIENDS露营村 · 江苏太仓 | 派澜设计

上海蟠龙公园 · 上海 | 上海乐丘 游乐设备股份有限公司

锦屏山麓小学低年级校区微改造·广东佛山 | 竖梁社

The Playscape儿童成长中心·北京 | waa未觉建筑

Sukagawa社区中心·日本 | UNEMORI ARCHITECTS

神鹿峰旅游度假区奇遇城·长春 | 境和设计+品诚控股集团