莱西地处胶东半岛中部,境内有丰富的水文资源。洙河是唯一一条贯穿市域的河流,沿东部向南,是滨水湿地景观塑造的重点。随着城市发展,河岸社区的日益成熟,岸线公园成为湿地景观的重要载体,园内配套用房对社区属性的需求凸显。此次设计任务即对公园内公共建筑做整体改造提升,填补周边社区功能,激发滨水区域活力,整体提升洙河岸线空间品质。
▼展览馆概览

▼餐厅概览

改造以何种程度介入,有赖于对改造对象的认知。公共建筑分布在河岸公园位于北京东路至上海东路段,呈组布置,每组2-3个建筑单体,所处环境各异。旧有建筑是坡顶的混凝土仿古中式建筑,巨大的开敞玻璃面,让人有南方建筑的错觉。
▼展览馆组团

▼展览馆场地入口

▼建筑立面

设计希望摒弃原仿古建筑的形制残留,关注建筑气候的适应性,将原结构及仿古外形内化于新形式中。通过对建筑周边环境的梳理,发掘与基地文脉更深层的关系。
▼短边立面

▼看向中央庭院

▼庭院视角


原有建筑风格形制下,内部空间比例高耸、使用效率低,结构体系横梗其中。于是设计在2.5米高的结构下缘引入控制线,将室内划分为上、下两部分: 2.5米以上引入天窗及机电设备, 2.5米以下设置窗将室外环境引入室内;2.5米处的吊顶线引导水平视线沿河岸伸展,更直接地将室内与沿河景观联结起来。天窗引入的光与被包裹的体块化的结构一起形成光的容器。光线穿梭在梁架之间,赋予了旧空间新的空间体验。
▼室内空间模型改造分析


▼活动空间


▼室内展览空间

▼2.5米以下窗将室外环境引入室内


在改造中,空间内部通过结构体系体量化处理、空间竖向细分,进而精确地设置开窗与光线组织;外部通过室内外活动的引入,将建筑以点带线串联起来,给岸线公园注入了活力。局部被保留的裸露混凝土隐约提醒着人们建筑所经历的变化。
▼公共空间组团

▼公共空间建筑立面

▼暸望台

对洙河旧有建筑的改造,是城市更新与生长的一个缩影,让我们有机会探索不同地理环境下那些永恒不变的建筑和场地的价值。
▼餐厅

▼餐厅室内空间

▼渲染剖面

▼总平面

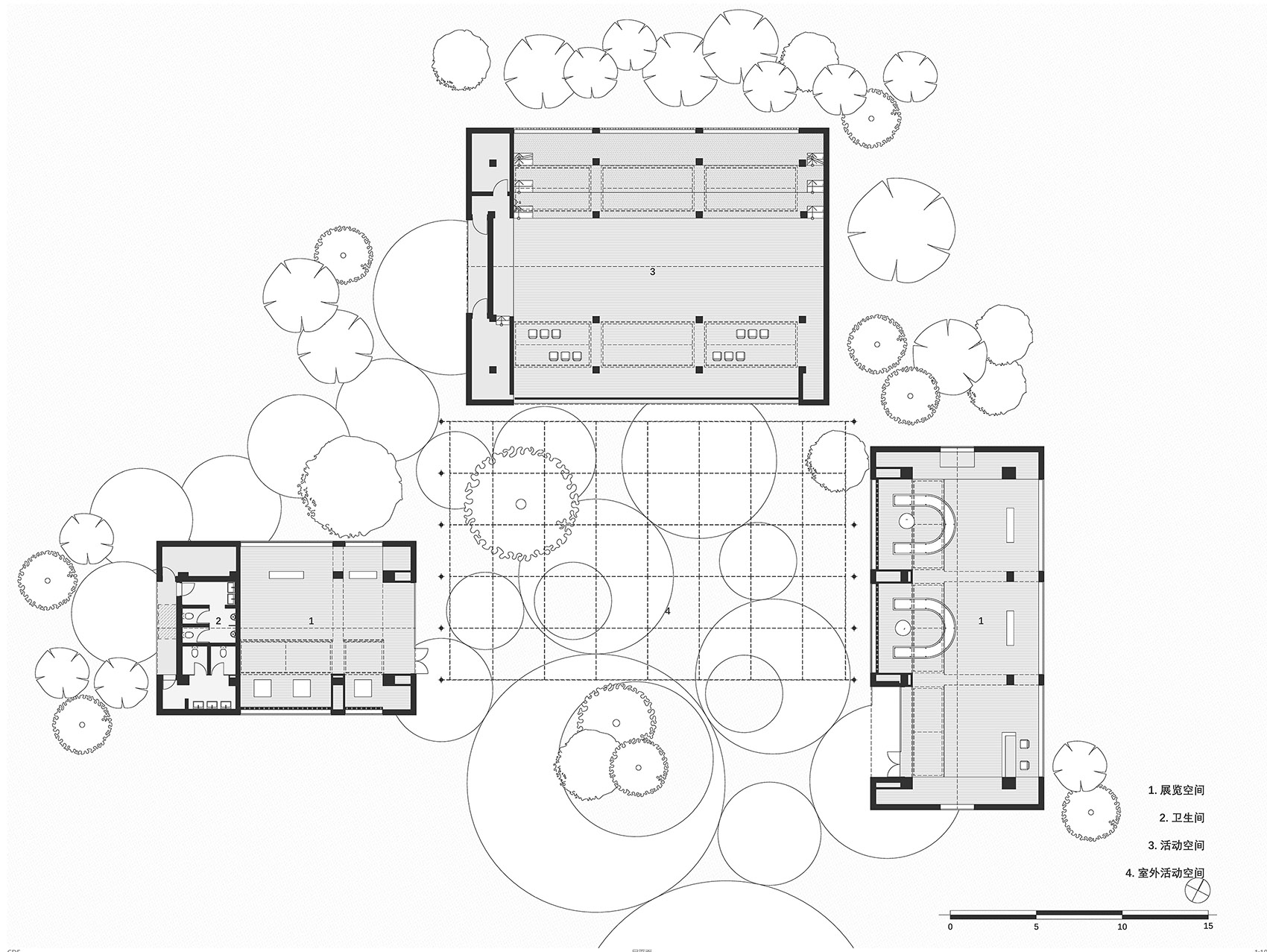
▼展览馆平面

▼展览馆立面与剖面

▼公共空间平面

▼公共空间立面与剖面

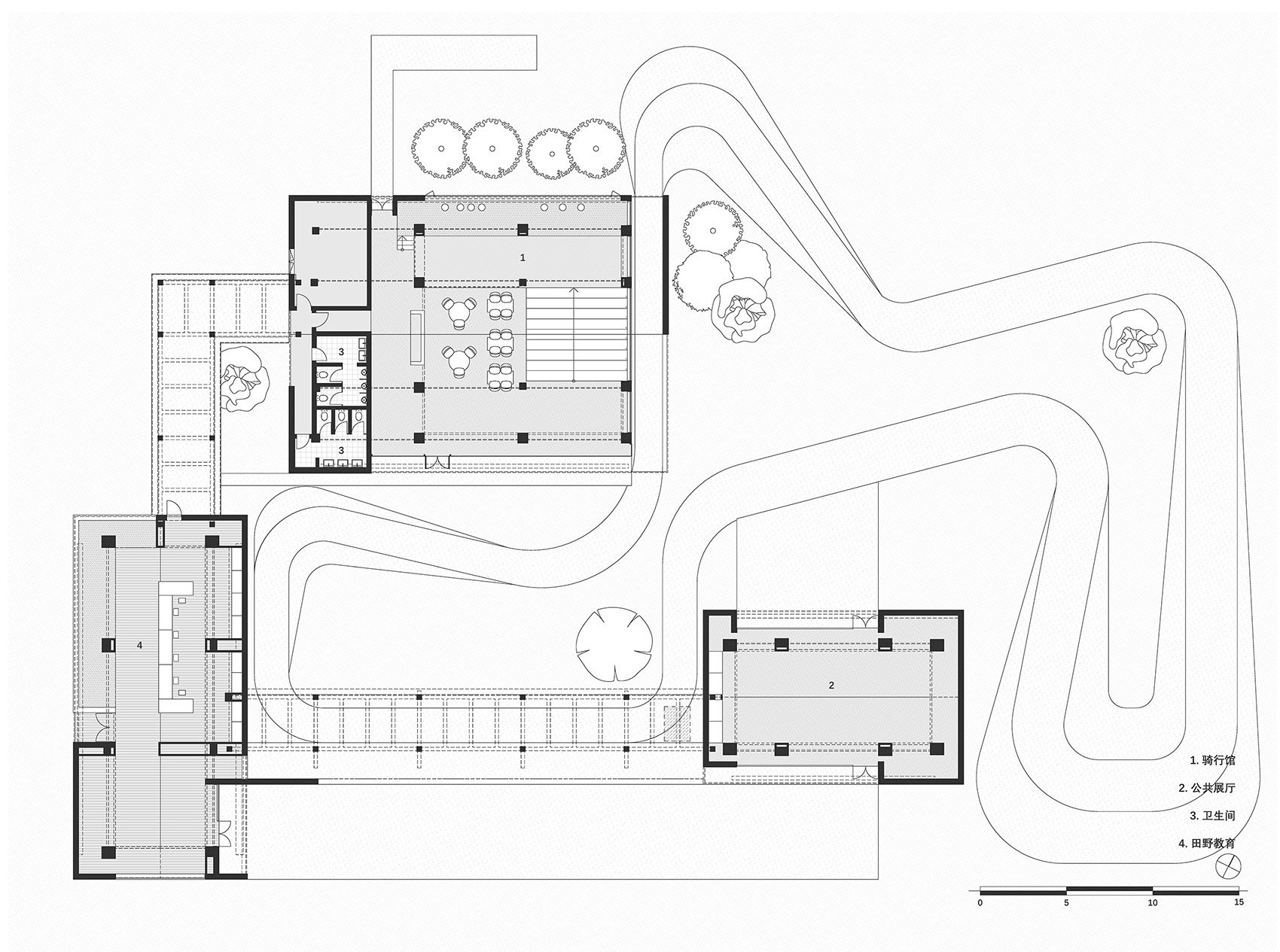
▼餐厅平面

项目名称:洙河旧有建筑改造
项目地址:山东省莱西市洙河水岸公园,北京东路南、上海东路北段
设计公司:乡伴文旅 & 研山建筑
项目管理: 郑德福
主创及设计团队: 乐康、李肇颖、郑李、曾海燕、谭鑫、邹瑜、沈丹、徐一嘉、纪鼎睿
项目年份:2020年
建筑面积:2224㎡
空间主材:木材 金属 钢 砖石 混凝土 涂料 玻璃 玻璃砖
摄影师:筑作视觉
合作方/结构设计:雷振海
客户:青岛昌阳集团有限公司
品牌:压型钢板YX50-185-740 / 上海苏新压型板有限公司
编辑版权©灵感LAB,禁止以灵感LAB编辑版本进行任何形式转载

关注公众号

关注抖音号

上峰松照 · 北京 | 上峰SHANG FUNG

太湖度假区凤凰台改造 · 苏州 | 平介设计

西丽水库排洪渠段绿道设计 · 深圳 | 同济原作设计工作室

紫马岭公园香山书房 · 中山 | 广东中山建筑设计院股份有限公司

绪塘人家 – 新安江综合保护工程系列驿站 · 建德 | 中国电建集团华东勘测设计研究院有限公司 – 徐堃工作室

崇州·竹艺村游客中心 · 四川 | 小隐建筑