在繁忙的街道和餐厅之间的过渡|
那些在80年代环绕着克雷塔罗城的工业走廊在时间流逝和城市加速的增长过程中留下了空置的工业建筑,它们成为了在城市郊区重新安排新工业中心的项目。班纳尔餐厅距离标志性的渡槽只有几米远,它坐落在其中一个重新使用的结构之中,这里曾经是销售酒和鲜花的商店。

我们同时正在为该项目的客户设计一个住宅。他希望我们在这里所设计的空间能够最大化地使用原有建筑的优势,在三个月的时间内完成,在建立新餐饮项目的身份特征的同时节约经费。


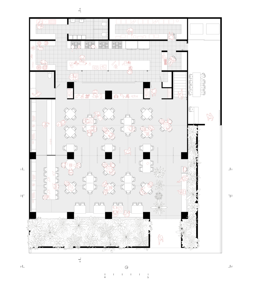
我们的设计方法开始于一个简单的想法,即在不改变原有建筑方式和结构的基础上扩张现有的厂房空间,让它能够容纳更多的室内餐饮。以此为前提我们在扩展空间和现存空间之间设计了一系列的分隔区域来将两个空间联系到一起,同时还有另一个对成的序列空间将上述两个区域和一个室外的绿色缓冲区连接到一起,这个绿色缓冲区是繁忙的街道和餐厅之间的过渡区。








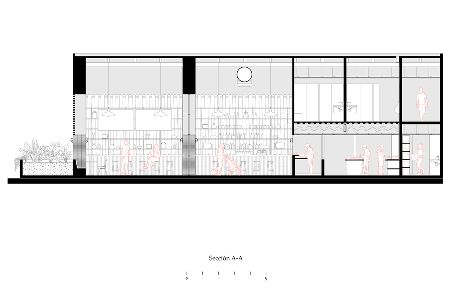
在施工过程中一个独特的细节是一个悬挂的中空细格子体快装置,它是一个非常重要的缓和日照的元素,同时它能够调整在室内看到的街道交通景观,并且为露台上的室内吸烟区起到通风作用。这些简单的低维护暴露材料的使用、自然灯光和通风的优势、开放式平面的实用性共同成为了对该项目实行的补充策略。




▼平面图:
▼立面图:



▼手绘稿:

项目名称:班纳尔餐厅
项目地址:墨西哥 Santiago de Querétaro, Qro.
设计公司:Reims 502
设计团队:Eduardo Reims、Christopher Torres、Andrea Maldonado、Andrea Leiva、Daniela Ríos
施工团队:Carlos Alanís
结构设计:Erick Rodríguez
建筑面积:610㎡
空间主材:水泥自流平、砖、混凝土、木格栅、木材、藤编、绿植
摄影师:Ariadna Polo
编辑版权©灵感LAB,禁止以灵感LAB编辑版本进行任何形式转载

关注公众号

关注抖音号

The boots泥靴西餐厅(CBD华发店)·武汉 | 朴开十向设计事务所

Rick Bella意大利餐厅 · 广州 | 朴开十向

Cuisine de Garden BKK主题餐厅设计·泰国曼谷 | ntegrated Field

TARENTUM萄木L’Opéra希腊餐厅酒吧 · 深圳 | ATELIER XU建筑事务所

鼓西大街33号院咖啡厅改造 · 北京 | 一合建筑设计研究中心

“Lounge by Topgolf 拓高乐”高尔夫餐厅设计·上海 | hcreates罕创建筑设计有限公司