联系我们投稿
灵感LAB - 空间灵感补给实验室
北27号·手禾火餐厅空间设计·北京 | 大田作物
0 FAVORITE1532 VIEWS0 COLLECTIONS
2022-03-21 RELEASE DATE
工业风格
侘寂风格
复古风格

人与空间的亲密关系| 

项目位于北京市三里屯南甲34号院里,初建于20世纪60年代,是建在一个国企职工食堂上的小院里,为了与场地的过去建立起联系,在空间处理上,保留旧建筑的面貌特点的同时又加入新的材料和设计语言,这为建筑提供了更多的可能性。

 

北京·北27号·手禾火餐厅空间设计 / 大田作物北京·北27号·手禾火餐厅空间设计 / 大田作物北京·北27号·手禾火餐厅空间设计 / 大田作物北京·北27号·手禾火餐厅空间设计 / 大田作物

 

从产品的思维来探究人与建筑的关系,空间线条边界的选择上摒弃传统硬朗的棱线带来的不安全感,选择衔接柔和的圆角曲线,让观看方式更加舒服流畅,让建筑与人之间具有更强的感受力及亲密感。

 

北京·北27号·手禾火餐厅空间设计 / 大田作物北京·北27号·手禾火餐厅空间设计 / 大田作物北京·北27号·手禾火餐厅空间设计 / 大田作物北京·北27号·手禾火餐厅空间设计 / 大田作物北京·北27号·手禾火餐厅空间设计 / 大田作物

 

空间里自然、舒适的关系进一步延伸至材料的选择,在保留原有建筑墙面的同时增加新的墙体材质,采用混凝土及石头颗粒整体浇筑,水磨石自身的颗粒感营造出一种平静的感官氛围。

 

北京·北27号·手禾火餐厅空间设计 / 大田作物北京·北27号·手禾火餐厅空间设计 / 大田作物北京·北27号·手禾火餐厅空间设计 / 大田作物

 

从建筑设计逻辑到产品创作思维,圆角应用在了空间里的各个角落,它提供了更安全的使用方式,这种舒服的使用体验,从服务吧台一直延续到餐桌餐椅它模糊光影的边界,它让尖锐的物体变得柔和,这种安心的就餐氛围,让人与建筑的关系再一次被拉近。圆角的角度越大,呈现出的光影感就越柔和,边界就越模糊。物体变得柔和,物体的使用感更强。

 

北京·北27号·手禾火餐厅空间设计 / 大田作物北京·北27号·手禾火餐厅空间设计 / 大田作物

 

▽品牌形象:

北京·北27号·手禾火餐厅空间设计 / 大田作物北京·北27号·手禾火餐厅空间设计 / 大田作物

 

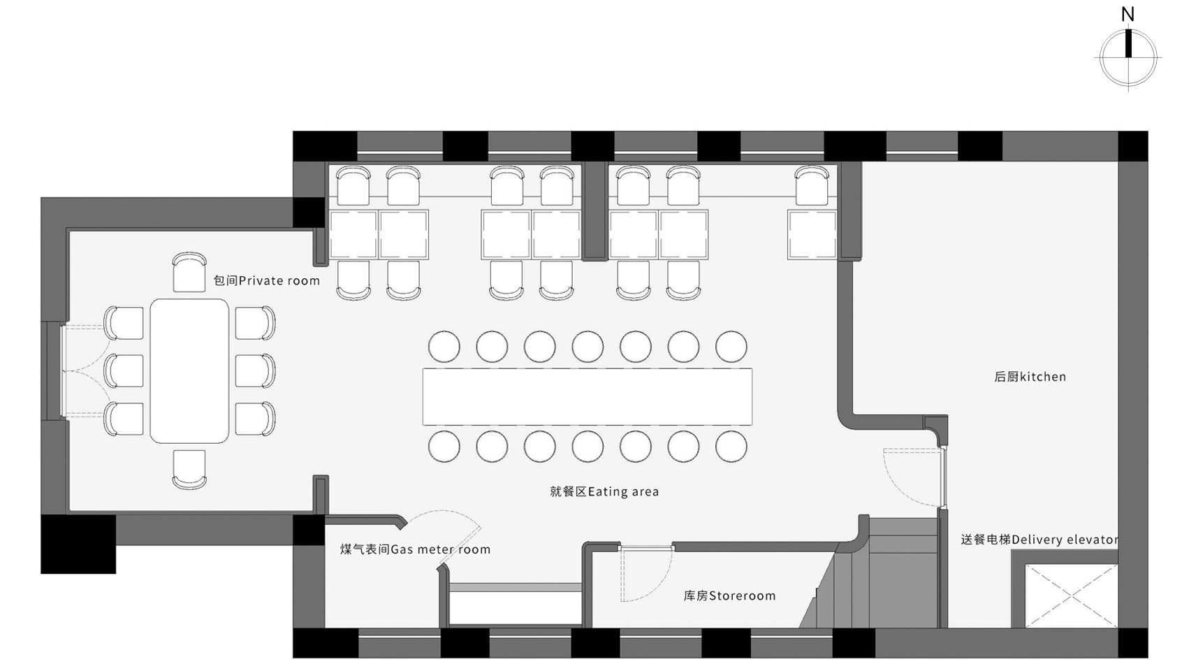
平面图:

北京·北27号·手禾火餐厅空间设计 / 大田作物北京·北27号·手禾火餐厅空间设计 / 大田作物

 

轴测图:

北京·北27号·手禾火餐厅空间设计 / 大田作物

 

 

 

家具图:北京·北27号·手禾火餐厅空间设计 / 大田作物北京·北27号·手禾火餐厅空间设计 / 大田作物

 

项目名称:北27号·手禾火
项目地址:北京市三里屯南甲34号院
设计公司:大田作物
施工单位:诺亚方舟建筑装饰工程有限公司
建筑面积:268㎡
空间主材:水磨石、混凝土、混凝土及石头颗粒浇筑、烤漆铝板、玻璃、涂料、瓷砖
摄影师:侯松茂
项目客户:廿七尚禾
编辑版权©灵感LAB,禁止以灵感LAB编辑版本进行任何形式转载
 

关注公众号

关注抖音号