联系我们投稿
灵感LAB - 空间灵感补给实验室
小也山谷民宿·北京 | 阿穆隆设计工作室
0 FAVORITE1332 VIEWS0 COLLECTIONS
2022-03-21 RELEASE DATE
工业风格

充满野趣的“不讲究”之地|

北京周边有很多太过讲究的房子,讲究的千篇一律,讲究的太不讲究。瓷砖贴面、洋红粉蓝,总是那么出挑,这个项目原先也是这个样子。钱不能花太多,所以用在山上拾的荆条子把建筑给裹起来,隐在山里,好看也遮阳。塔房子用剩下来的脚手架顺手就搭在院子里,拉上遮阳的网子,日头出来的时候坐在底下,看着层峦叠嶂,美。业主给他这个民宿起名叫“小也山谷”,但我更想叫它“野山谷”。

 

▼改造前:

北京延庆·“小也山谷”民宿设计 / 阿穆隆北京延庆·“小也山谷”民宿设计 / 阿穆隆北京延庆·“小也山谷”民宿设计 / 阿穆隆

 

▼改造后:

北京延庆·“小也山谷”民宿设计 / 阿穆隆北京延庆·“小也山谷”民宿设计 / 阿穆隆北京延庆·“小也山谷”民宿设计 / 阿穆隆北京延庆·“小也山谷”民宿设计 / 阿穆隆

 

▼室内公共区:

北京延庆·“小也山谷”民宿设计 / 阿穆隆北京延庆·“小也山谷”民宿设计 / 阿穆隆北京延庆·“小也山谷”民宿设计 / 阿穆隆北京延庆·“小也山谷”民宿设计 / 阿穆隆北京延庆·“小也山谷”民宿设计 / 阿穆隆

 

▼室内客房区:

北京延庆·“小也山谷”民宿设计 / 阿穆隆北京延庆·“小也山谷”民宿设计 / 阿穆隆北京延庆·“小也山谷”民宿设计 / 阿穆隆北京延庆·“小也山谷”民宿设计 / 阿穆隆北京延庆·“小也山谷”民宿设计 / 阿穆隆北京延庆·“小也山谷”民宿设计 / 阿穆隆北京延庆·“小也山谷”民宿设计 / 阿穆隆北京延庆·“小也山谷”民宿设计 / 阿穆隆

 

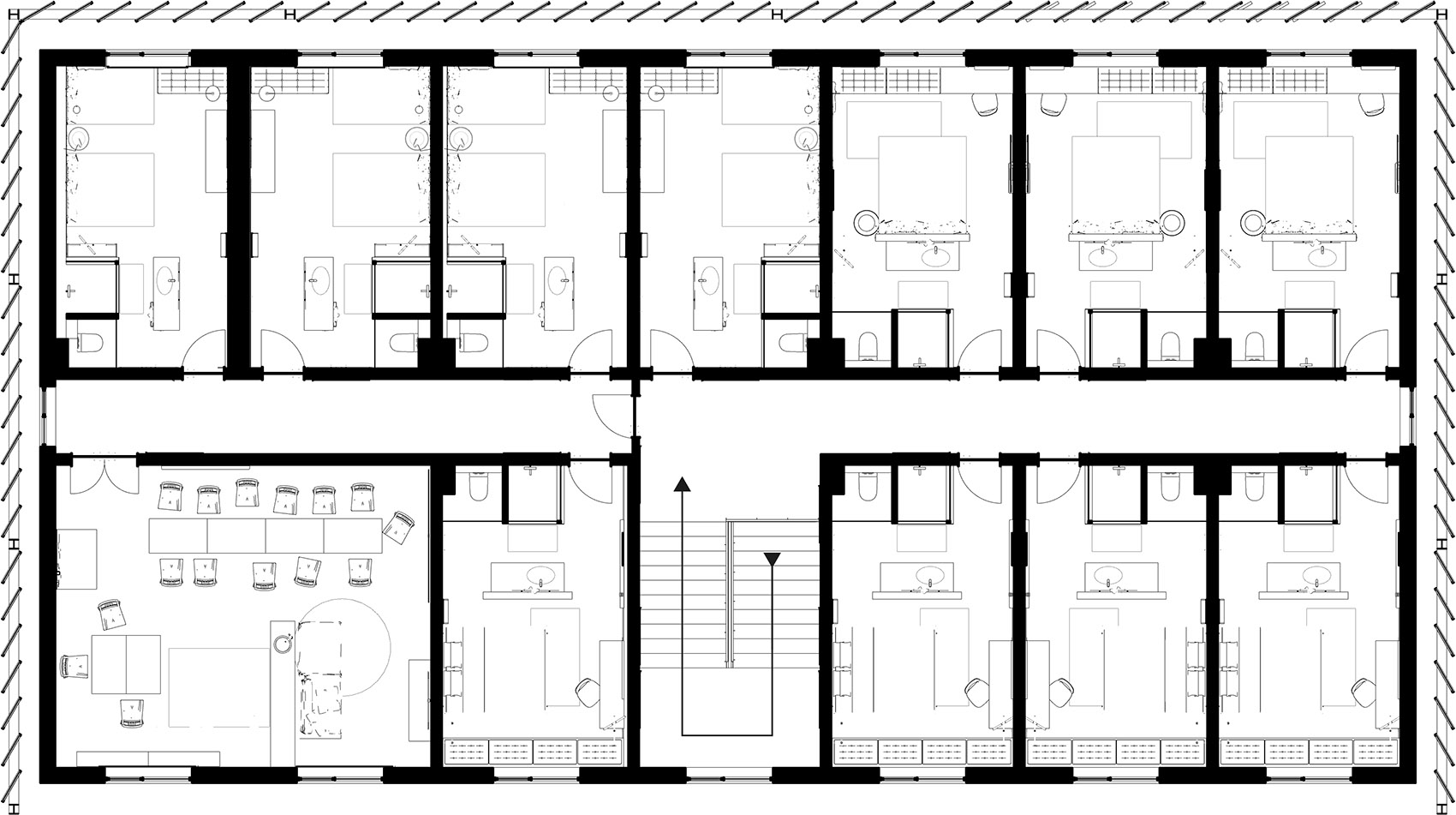
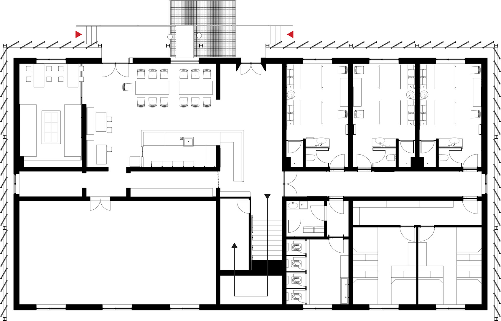
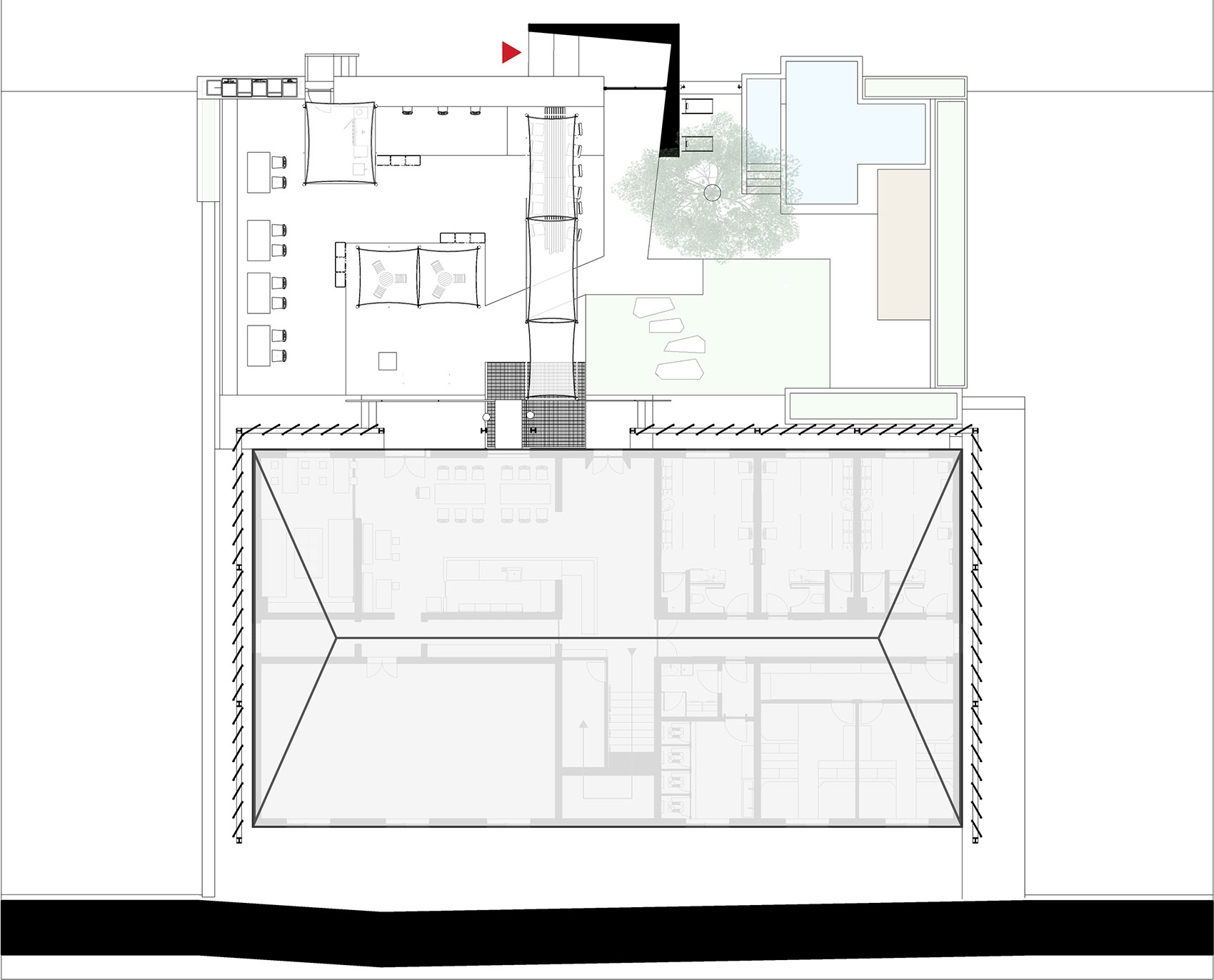
平面图:北京延庆·“小也山谷”民宿设计 / 阿穆隆北京延庆·“小也山谷”民宿设计 / 阿穆隆北京延庆·“小也山谷”民宿设计 / 阿穆隆

 

项目名称:小也山谷民宿
项目地址:北京市延庆区石佛寺村
设计公司:阿穆隆设计工作室
主创及设计团队:阿穆隆、宋小有、刘宠
设计年份:2018.8
建成年份:2019.4
建筑面积:850㎡
空间主材:荆条、多层板、钢材、镀锌板、瓷砖、混凝土、玻璃
摄影师:金伟琦
编辑版权©灵感LAB,禁止以灵感LAB编辑版本进行任何形式转载

 

关注公众号

关注抖音号