一场THE SPACE的未知遨游|
“我们通过抽象概念来规划这个世界,通过艺术,将思维、直觉、感受和意图转译成能够改变现实的行为。”
——奥拉维尔·埃利亚松

“VAGTEERA”选址在苏州姑苏区德必WE国际文化艺术中心,与“中国四大名园”之一的拙政园仅一墙之隔。鉴于本次项目所处的特殊区位,我们希望采用某种颠覆传统的展陈模式来探索产品与艺术美学“整合”的实验性玩法。透过空间界面对“体验感”的重塑,打造“参观→共鸣→选购”的整体场景。240余平米的室内场所跃升成为年轻极客们的舞台:传递前沿时尚理念,映射未来生活态度。
建构|自我生成
以“漂浮的半分地球”作为主题,打破人们的固有印象进而强调一种预设的“不可告知”。“建构”过程,聚焦不同切面延伸的参差块面;遵循原始结构及功能需求的“生成”视角,塑造空间内部的骨架。或切割、或衔接的自然状态,成就“新”的空间秩序,自带场域线索作为贯穿。
▼概念方案



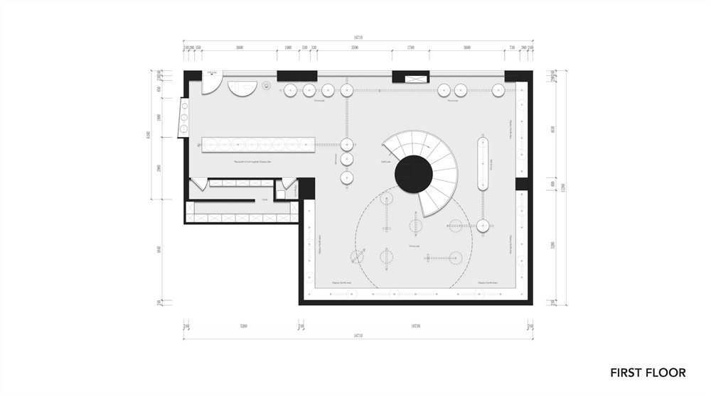
室内平面被设计师视为“一小一大”两个圆形区域的“复合”。
较小空间自然成为“引子”,由此过渡至较大的圆形区块中。基于原始承重柱顺势施为设置旋转楼梯,以之为“轴”成就洄游动线自然生成的同时,赋予商品展区自由、外向的特质。四周围设落地玻璃,既在空间上划分内、外界限;又保留视觉层面的开敞效果,促成室外景致与室内陈设的互动、交流。
▼平面布置图(1F)

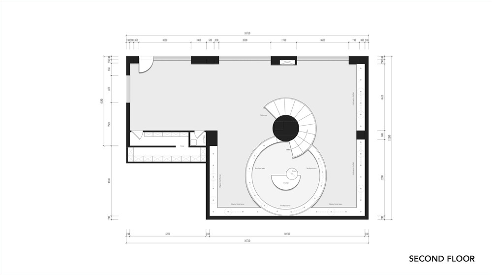
▼平面布置图(2F)

依托墙面设置的大面积直角扇形玻璃窗,内侧悬挂陈列商品,自带橱窗展示功能。“这是?”——当人们初见发出这样的疑问并产生思考,从而激发他们对空间内部的好奇与兴趣时,设计的目的便已然完成了一半。
▼项目外观


界面|模块秩序
“秩序”宛如一粒种子,能够衍生出整个空间的“抽象几何概念”。圆形概括及弧线边缘,组合纵横的界面交织,折射出“外柔内刚”的空间态度。
▼内部界面


秉持“模块化”思维解读空间分区,“拼合”构建的形式,兼顾功能区之间彼此的整合形式及相互关联,契合商品陈列与消费者选购等多方述求。
▼内部界面



材质|对比回归
材质,赋予空间质感的同时,往往还决定了某种情绪的表达。光泽金属与亚克力材料铺叙现代、时尚的基调,呼应瓦片及粗狂毛石的颗粒肌理,将科技革新和对自然未知探索的过程凝练表达呈现。未经细琢的石块,是精密节制空间里的“异类”;恰似精心策划的对原本秩序的小小“进攻”。这种“进攻”,营造出明显的冲突感,反而成就空间本身的独特个性。
▼内部多元材质的组合表达



▼二楼空间


自然被抽象,置入前卫的空间风格里;由材质回归侧重构建的对比关系,完成了内部细节及层次感受的丰富,还影射了“VAGTEERA”与拙政园及周围自然环境的微妙状态。
色彩|外向前卫
色彩,经由视觉决定着人们对外界事物的特征印象。袒露的材料,不加修饰,回归本初的真实;外向的色彩表达,积蓄着“爆发”的张力,力求通过“克制”手法打破定势,创造一种“触碰”未来的奇幻体验。设计与自然,复古和未来;灰色基调中,克莱因蓝及荧光绿的用色组搭,在过去、现在、未来之间觅得重叠的多维空间。
▼色彩表达




VAGTEERA|漂浮的半分地球
在设计中反思、回望;在“进程”中凝视、自省。这,是一场THE SPACE的未知遨游;亦是一次当下对未来、现象与本质的深度思考……
▼轴测分解

项目名称:“VEGTEERA 漂浮的半分地球 ”买手店
项目地址:苏州市苏州姑苏区德必WE国际文化艺术中心
设计公司:飞界灵感设计
主创及设计团队:胡彦昕、徐广全
施工单位:苏州青辰家建筑装饰有限公司
项目客户:漂浮的半分地球
建筑面积:240㎡
空间主材:水磨石、肌理漆、镜面不锈钢、铝塑板、磨砂亚克力、钢化玻璃
摄影师:胶水
编辑版权©灵感LAB,禁止以灵感LAB编辑版本进行任何形式转载

关注公众号

关注抖音号

ANCHORET 6.0买手店 · 北京 | JANG Studio

LOOKNOW买手店设计·上海 | Sò Studio

CHUNJU&CÉNCÉN买手店&咖啡 · 南京 | 栖刻建筑设计

void买手店 · 深圳 | SAY ARCHITECTS有坪一尺

PuffFrog x Kangol x Matata复合空间设计 · 海口 | 觉得设计

Flop艺术空间·杭州 | 房子和诗建筑事务所