在拉抛区密集而喧闹的城市肌理之中,当城市持续发出躁动的嗡鸣,一处隐藏的静谧悄然存在。生态匣居并非一座高声宣告自身存在的建筑,而更像是一种低声细语,一处在四面皆为邻里的汤匙形封闭地块上孕育而生的庇护所。建筑向内生长,将一块“失明”的土地转化为一个由光、影与静默构成的私人世界。
▼建筑鸟瞰


抵达的序列
旅程始于一条仅有4米宽的狭长通道,如同汤匙的柄部。建筑师将这一空间不仅视为入口,更塑造成一段精神上的过渡。天然石材墙体夹道而立,延展的木质天花在上方庇护,拉长而压缩的空间感官制造出神秘与期待的瞬间。这是一条具有仪式感的通道,在揭示内部庇护所之前,缓缓洗去外部世界的喧嚣。
▼狭长入口通道

一个鲜活的的玻璃展柜
跨越门槛,空间豁然展开,进入住宅的核心——中央庭院。建筑在保留场地原有树木的前提下,将自然包裹其中,如同一只玻璃陈列柜般环绕生长,形成一个被保护的生态箱。这片绿色核心作为被动采光源,主导着日常的光影表演:阳光透过枝叶洒落,在木质内饰上投射出不断变化的阴影。随着太阳角度的变化,住宅的氛围随之呼吸与转化,每一个时刻都呈现出不同的空间情绪。
▼中央庭院外部

▼中央庭院室内




▼中央庭院近景



连续的流动与顶层居所
尽管四周被邻里包围,室内却呈现出近乎无界的感受。双层挑空的起居空间赋予垂直方向的自由,弧形玻璃墙体消解了空间的转角,使客厅、工作区与上层空间之间形成视觉上的连续流动。二层作为私密的顶层居所,安置艺术收藏与主卧空间,并始终与中央中庭保持着持续的对话关系。
▼双层挑空的起居空间

▼俯瞰中央庭院

▼生态箱垂直空间


▼二层室内空间



▼一层卧室

▼二层卧室


匠人的建造宣言
使生态匣居脱颖而出的,是其富有灵魂的材料表达。作为一位资深承包商的自宅,这座住宅本身即是一份关于工艺的宣言。设计精心挑选了七种不同树种,并通过化学漂白处理,使其呈现出接近日本桧木(Hinoki)的统一色调。这种视觉上的柔和掩藏着结构上的智慧:住宅采用无柱结构,由钢结构与铁坚木(Takhian wood)玻璃框架共同承重铝制屋顶。这是一场对材料真实性的颂扬,让结构与肌理以最诚实、也最美的状态被呈现出来。
▼不同木材的统一色调


▼过道


自然生成的建筑
景观并非事后的附加,而是空间的共同创造者。入口处高挑而纤细的树木穿越天花的开口生长,将视线引向天空;室内,舒展的枝叶成为天然的帘幕,过滤视线并确保绝对的私密性。在生态匣居中,建筑与自然并非简单共存,而是彼此拥抱,营造出一处仿佛与城市隔绝的、恒久的静谧绿洲。
▼保留原有树木的生态箱

▼生态箱内仰望天空

▼室内一角


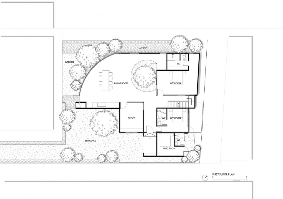
▼一层平面图

▼二层平面图

▼屋顶平面图

▼剖面图

项目名称: TERRARIUM HOUSE
竣工年份: 2025
项目规模: 450 平方米
项目地点:泰国曼谷
建筑事务所: Unknown Surface Studio
主创建筑师: Cievanard Nattabowonphal, Piyanat Songkhorh, Nonglak Boonsaeng
图片版权: Rungkit Charoenwat
感写观览、登录灵感LAB账号、点击文章顶部?可收藏案例
更多该设计公司案例,请点击 →Unknown Surface Studio
©非特殊说明,文章版权归原作者所有

关注公众号

关注抖音号

曼谷生态匣居 · 泰国 | Unknown Surface Studio

玉米地住宅 · 北京 | xiān氙建筑工作室

沪上艺墅,藏家之家 · 上海

Shelter 45 住宅设计 · 智利 | Gonzalo Rufin Arquitectos and Felipe Toro

Bellver Más Mateu 别墅设计 · 西班牙 | SAU Taller d'Arquitectura

House of 7 Trees 别墅设计 · 巴西 | Hersen Mendes Arquitectura