
在重庆南岸区临江的半山腰上,隐匿着一条名为下浩的老街。青石板铺成的街道蜿蜒曲折,仿佛一条小溪流淌在山间。作为重庆首批城市更新试点街区,这条历史悠久的街道在改造中将传统风貌与现代艺术融合,并根据老街的历史文化特点重新规划了业态。
▼便利店外观


如今,翻新后的下浩老街吸引了大量创业者,餐饮和零售店纷纷入驻,注入了新的活力。然而,在这条人流日益增多的街道上,依然缺少一家满足基本生活所需的商店。于是,我们决定在这条老街上打造一家20平方米的便利店。
▼便利店街景



设计过程中,我们面临空间狭小、功能多样的挑战。为最大化利用空间,我们采用了模块化设计,合理布局售卖、储物和收银区域。同时,大量选用木质材料,与老街自然风貌协调,营造温馨氛围。
▼轴测图

▼大量选用木质材料


外观设计中,我们将“与老街的传统建筑形态形成鲜明对比”的理念贯穿其中,采用大面的金属波浪板以及大块面玻璃,为室内空间带来充足采光。
▼与老街的传统建筑形态形成鲜明对比


在不同的时段,我们考虑到便利店需具有不同的功能。白天营业期间,室内空间满足基本的零售功能,而在夜晚闭店时,卡卡叔叔的便利店也能提供自助服务,不用进入也能在户外进行选购。同时室内的灯光也可用于照亮街道,成为黑夜里老街上的一盏明亮的“路灯”。
▼黑夜里老街上的一盏明亮的“路灯”


货架设计灵感源于老街建筑翻新中工人们使用的脚手架,搭配十字扣和海洋板,组装成产品货架,实用且富有装配感。货架上方的空间也被巧妙利用,制作了收纳盒,最大化储物功能。
▼货架设计



▼货架设计细节

▼最大化储物功能


我们希望,这家便利店以一种松弛的姿态见证街区的变化,同时为下浩老街带来更多便利与温暖,让每一位踏足此地的人都能感受到时光交汇的共鸣。它如同“时光交汇的驿站”,在传承与创新中找到了自己的位置,成为老街的一部分。
▼夜景


▼轴测爆炸图

▼场地区位

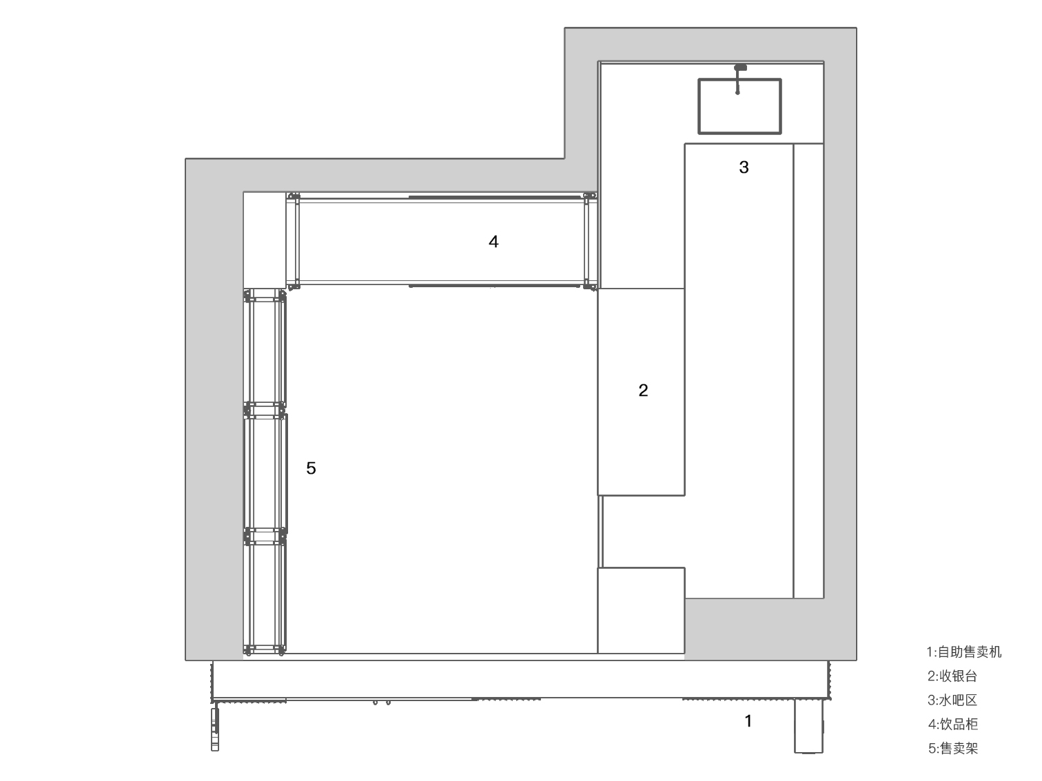
▼平面

项目名称:卡卡叔叔的便利店
项目类型:便利店设计、零售店设计、陈列道具设计、木作家具设计、门头设计
项目地址:重庆市.南岸区.下浩里老街
室内设计:植入设计
主创及设计团队:刘杰、姚鑫
建筑面积:20㎡
设计年份/建成年份:2024.7
摄影版权:白川
感写观览、登录灵感LAB账号、点击文章顶部♥可收藏案例
更多该设计公司案例,请点击 → 植入设计
©非特殊说明,文章版权归原作者所有。

关注公众号

关注抖音号