历经三年的发展,衡建筑陆续有了新伙伴的加入,位于陶谷新村101的原办公室略有局促。陶谷1.0承载着我们对于建筑师工作的理想。我们尝试将建筑师的日常工作融于与街巷社区的相处,同时尝试平衡空间中的新旧关系,模糊“办公”与“居住”的类型边界。这些仍旧是对新办公室的期待,也是开启设计的思考原点。
▼办公室正立面


衡建筑新办公室位于南京国创园园区联排平房的中段,其原是晚清时期江南铸造银元制钱总局。相隔一条石板甬道,接邻明城墙遗址。
▼总平面图

▼入口

室内原始层高五米,平面被一道结构墙体平均地分为两部分。层高和墙体保温导致了该房屋被动节能方面的劣势,中间的结构墙体也带来了空间整合上的困难。工作室所在的联排房处于园区地势低洼处。到了夏天雨水丰盈的时节,雨水便可能会倒灌入室内。
▼轴测图

▼空间入口

层高过高与地势低洼两个问题并置一块,解题思路也自然产生。利用层高的可能性,将不同功能的空间设计为“嵌套进室内的小房子”。每个小房子都有着作为建筑本体所必备的构成元素,比如柱、屋顶、开口等等。每个房间由其平面位置决定被带到不同的标高上,经由重构入口高度和重划路径,在解决雨水、融雪倒灌问题的同时,平添些游园式的意趣。
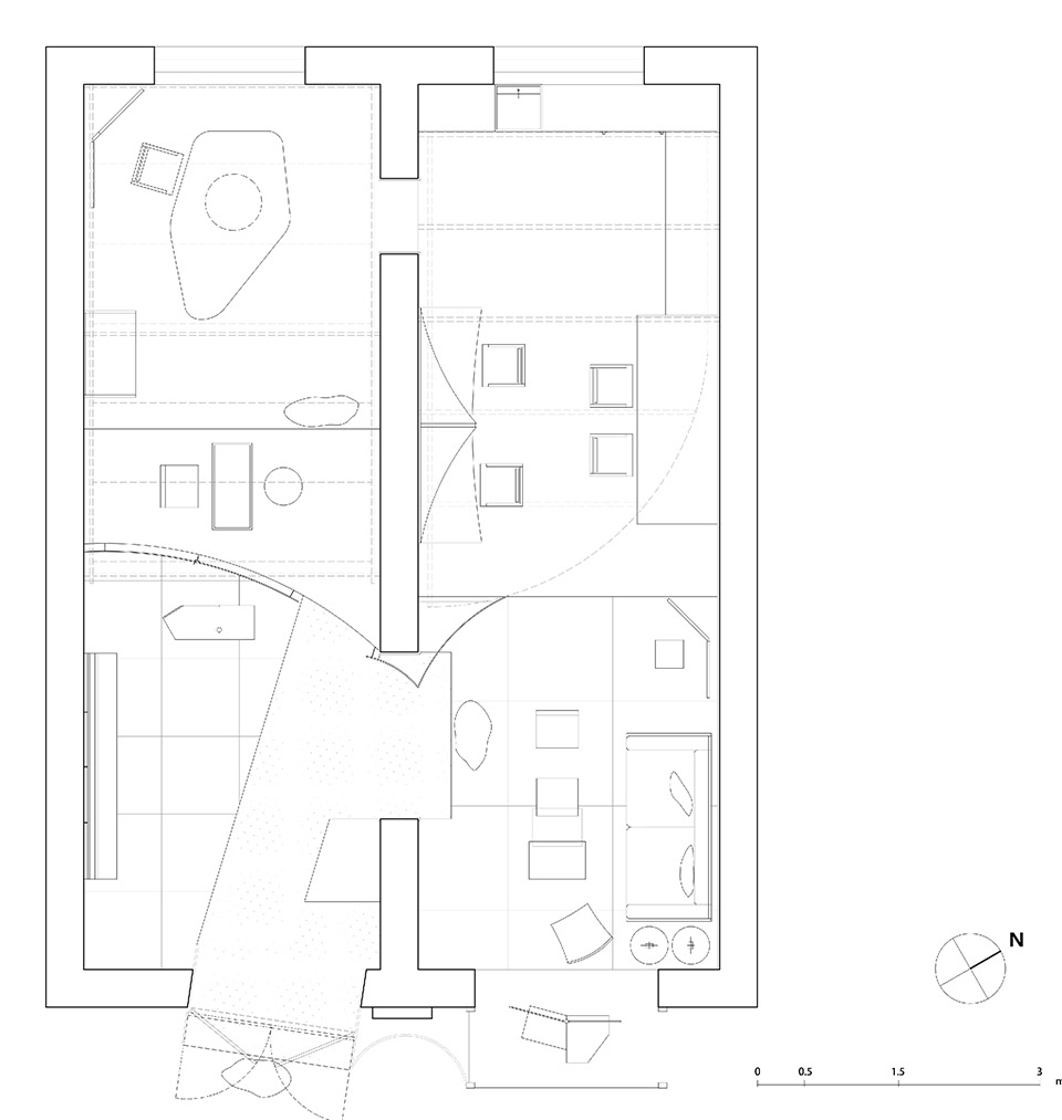
▼平面图

▼入口展示区

▼茶亭

▼茶亭细部

门口处我们常置了一块毛石踏步,一如小时候大人们会在积水路段给过路的学童放置好汀步一样的砖块。在室内入口处,我们用热压钢板铺就了一条“威尼斯”季节式的过水栈道,折角位置与墙体产生一个植物端景。由入口展架区起,沿逆时针方向分别为接待客厅,公共办公区和独立办公室,高度依次递增。正对入口即见到作为独立办公室的“茶亭”而未可到达。其由角钢固定的波段式织物覆盖,利用层高条件形成一个角度陡峭的坡面。边缘位置尽可能的压低檐口,与垫高的茶席一同收窄了由外向内的视线通廊,保证办公需求的私密性。而高坐在“茶亭”边缘处,视线高度下降便可以尽览入口与室外的景致。公共办公区同样由一个屋顶遮蔽,由一根斜撑在毛石上的纤细角钢和固定在墙体两端的工型钢合力支撑。斜撑的角钢在保证其结构需求的前提下截面尽可能的窄小,反应着亚克力屋顶的真实荷载感受。
▼会谈信息区


▼独立办公室

沿动线回环迈步上行,在动态行进观察的各焦点位置,我们布置了不同的景观式家具。家具设计方面延续了Modum&ATE SIMO联名展架系统的建构逻辑,即尽可能的利用角钢和扁钢等易得标准品材料,通过拟态木构的方式带来节点的形式美感。不同的是,在我们自己的工作室中,尝试了与更多有趣材料的组合,比如大漆、木蜡油海洋板。无法控制预期效果的材料尝试给我们带来了很多启发和偶得效果。此外,在这一次的系统家具设计中,我们尝试融入一种“开放形式”和“未完成感”。有此思考发自对意大利建筑师Umberto Riva自宅项目的研究。Riva在作品中有着强烈的“模糊物的第一性”的倾向,如溯上墙壁的餐桌和与天花断开的隔墙。其中应有之义便是打破空间中各类型陈设的“应有之貌”,模糊家具与空间的边界。形式语言在此思考框架下获得了释放,如翼展的双圆弧办公墙桌、单吊线线性灯、曲线切割的屏风和角柜。工作室项目容许我们实现一次边界尝试的游戏。
▼西侧剖面图

▼西侧轴测图

▼办公室

▼办公室办公桌


▼讨论区

▼陈列橱窗

▼东侧剖面图

项目名称:衡建筑南京国创园办公室
项目类型:室内设计、办公室设计、办公空间设计
项目地址:南京
室内设计/软装设计:衡建筑
设计团队:周睿哲,杨竣博, 张思羿
建筑面积:67㎡
设计年份/建成年份:2024年3月
材料:织物、大漆、角钢、阳光板
摄影版权:阿永、马杰睿
感写观览、登录灵感LAB账号、点击文章顶部?可收藏案例
更多该设计公司案例,请点击 → 衡建筑
©非特殊说明,文章版权归原作者所有

关注公众号

关注抖音号