该项目涉及位于Coyoacán心脏地带的一座住宅的翻新和扩建。通过资源优化,原有空间得到了扩展,现在作为艺术工作室和工坊使用。
▼室内概览

Daniela Riquelme是墨西哥城的艺术家,专注于绘画和珠宝创作,最初将房屋的二楼用作她的工作室和工坊。然而,随着时间的推移,她发现这个空间无法满足她的艺术创作需求,特别是在空间和照明方面的局限性。因此,工坊的翻新工作重点是对二楼进行全面改造,以更好地支持艺术创作。此次改造包括创造新的开口、安装定制家具、木工和铁艺、上色、为工作室-工坊计划添加一个展览区域,以及最重要的,引入充足的自然光。
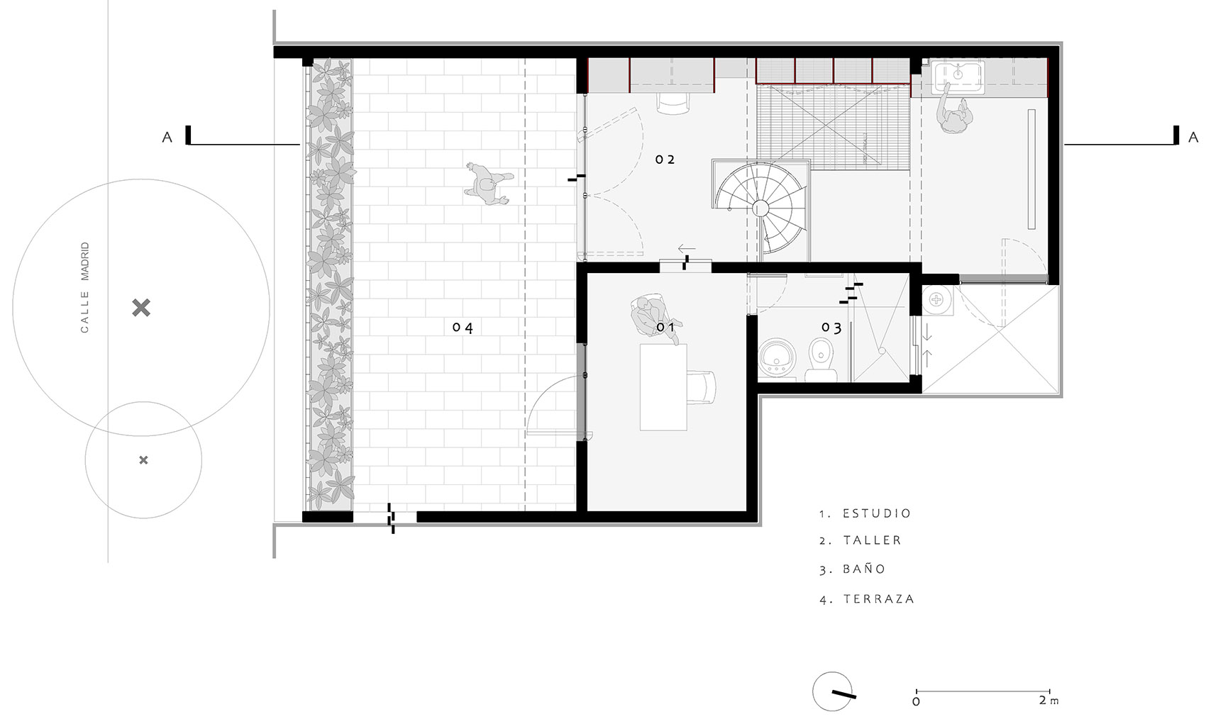
▼平面图

▼从露台看室内

▼从露台看室内

扩建计划围绕一座现有的螺旋楼梯展开,将车间分为两个部分。第一部分是一个工作室区域,可以通向一个露台,露台上可以俯瞰到科约阿坎中心街道两旁的树冠。从这个空间进入更为私密的区域,其中包括一个完整的浴室。相对的墙面上,定制的木工单元贯穿整个空间的深度,为丹妮拉的创作过程提供了丰富的储物空间,存放物品、书籍和材料。该单元包括书架、绘图桌、抽屉以及一张坚固的工作台,上面安装有专门处理材料的水槽。
▼剖面图

▼从楼梯上到二层平台


水槽位于车间的后部,该部分是从原始平面图中扩建出来的。楼梯旁的一个流通区域,正下方是一个天窗,将两部分空间连接起来。天窗为走廊和楼梯带来光线,而此区域的格栅平台允许光线照射到房屋的底层,照亮本来缺乏自然光的公共空间。
▼天窗为走廊和楼梯带来光线

车间扩建后的后部区域,以其增强的空间质量和自然光线为特点。朝东的大窗户提供充足的采光。与第一部分的露台门相似,窗框采用精美的铁艺设计,配有鲜艳的红色装饰。这个窗框围绕着气象标的机制旋转,可以通过交叉通风带动整个车间的空气流通。此外,这个区域的屋顶系统也独具特色。锯齿形屋顶设计为绘画和展示提供了最佳的照明条件,利用间接阳光避免了眩光或强烈的阴影。三处朝东的天窗进一步增强了自然光的扩散效果。
▼朝东的大窗户提供充足的采光


在整个二楼——包括车间、楼梯、工作室、走廊和露台——设计团队为铁艺装饰选择了石榴红色。这种充满活力的色调被选中,因为它最能代表和唤起Daniela Riquelme的艺术创作,这些创作在通过东向光线照射的、经过精心改造的Coyoacán心脏地带的二楼上得以蓬勃发展。
▼为铁艺装饰选择了石榴红色

▼结构爆炸图

▼改造前后对比




项目名称:Daniela Riquelme工作室扩建
项目类型:办公空间设计、工作室设计、办公室设计、小型办公室设计
项目地址:Ciudad de México, México
客户:Built
室内设计/软装设计:AMASA Estudio
建筑面积:52㎡
设计年份/建成年份:2024年
摄影版权:Zaickz Moz
感写观览、登录灵感LAB账号、点击文章顶部?可收藏案例
更多该设计公司案例,请点击 → AMASA Estudio
©非特殊说明,文章版权归原作者所有

关注公众号

关注抖音号