





设计概述
这是一处以现代法式风格为灵感的居住空间设计。项目通过流畅的空间布局和光影的灵动变化,营造出一个充满动态美感与优雅氛围的生活场景。空间的延展性是设计的核心,通过巧妙的衔接和景深塑造出层次丰富的视觉体验,同时光线的穿透性进一步赋予整体以温润和通透感。
▼室内概览

设计特别关注材质之间的对话与细节的精致表达。通过光滑与粗糙、硬质与柔软材质的对比,展现如同律动般的艺术氛围。开放与私密之间的界限被刻意模糊,功能分区在流动的动线上自然衔接,使空间更具灵活性。每一个转角与开口都经过精心推敲,光线的引导延伸了视线与脚步,塑造出空间与住户之间深刻的互动关系。整个设计在动与静之间找到绝佳的平衡,不仅满足了住户的功能需求,还将艺术感巧妙地融入生活细节,为居住者提供一个动静相宜、温润优雅的生活场域。
▼玄关概览

设计理念
空间的连贯性与层次感
动线设计突出空间的自然衔接,每个区域通过开放与私密之间的巧妙过渡,实现功能上的灵活性与视觉上的延展性。光线穿透弧形转角和窗格景深,在空间中勾勒出柔和的层次变化,赋予每个场域独特的情绪表达。
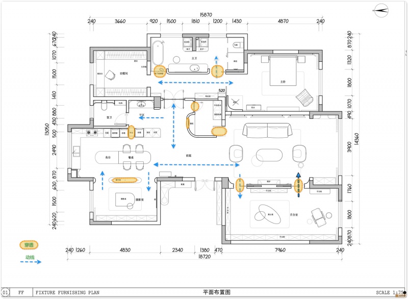
▼平面图

材质与光影的对话
材质的选择与搭配构成了一种动态的美学对话:奶油白的涂料与天然洞石呈现优雅的质感,柔软的布艺与金属元素的点缀则在硬与柔之间营造出平衡。隐藏踢脚线的做法也拉高了层高,空间更加整体。通过自然光与人工灯光的结合,光影雕刻出不同时间段的艺术氛围,让空间时时焕发出新鲜的魅力。
▼光影的对话

开放与私密的灵活平衡
通过模糊功能区之间的界限,弧形墙面与隐形门的设计增添了空间的灵动性。住户既能在开放的客厅中感受轻松的社交氛围,也能在卧室或阅读角落中找到属于自己的静谧空间。
▼开放与私密的灵活平衡

细节中的艺术韵律
设计从经典法式线条和拱形框架中汲取灵感,并通过现代语言重塑这些元素,使其展现出兼具优雅与当代感的空间美学。每一个开口与转角都经过精心构思,通过光线与材质的配合,展现出空间如同律动般的艺术魅力。
▼经典法式线条和拱形框架

玄关设计 | 灵动与秩序的交融
在房屋的中央,我们通过切割方式打开了储物间的洞石体块,使其既作为玄关,又向南侧的客厅敞开,引入自然光线。这个开放设计让储物间成为玄关与客厅之间的视觉焦点。一块高光弧形板进一步强化了视觉效果,搭配绿植或潮玩手作,构成优美的平面比例,同时为空间注入灵动与生机。
通往卧室的过道转折处采用黄金比例弧形设计,巧妙地扩大了动线,让空间流畅且宽敞。主卧入口采用双开门设计,进一步提升空间的开阔感与通透性。在北侧,横向开口将客厅的光线引入走廊,形成光线流动的视觉效果,与设备间门的内凹设计相呼应,共同强化空间的体块感与秩序感。
这一设计精心规划了光线与空气的流通,不仅避免了储藏室长期密闭产生潮湿问题,同时延伸了空间的视觉层次。切割的体块比例遵循黄金分割,使玄关设计兼具视觉美感与功能价值。玄关不仅是房屋的入口,更是光影流转与生活序章的开篇。
▼通过切割方式打开了储物间的洞石体块

客厅设计 | 光影与舒适的交融
客厅设计以开放与舒适为核心,采用格子大玻璃窗引入大量自然光线,使空间更加通透明亮。建筑前方无遮挡的设计,让阳光能够最大程度地渗透进来,为客厅注入温暖而充满生机的氛围。主沙发选用云朵沙发,其柔软的羽绒填充与精致的皮质表面相结合,提供极致的舒适感,让主人能够全然放松,沉浸于与家人或朋友的交流时光中。
▼客厅

壁炉采用切割洞石包裹搭配仿真火焰设计,不仅在夜晚营造出温馨的光影效果,还为空间注入了一种法式优雅。沙发背后的凸起分隔设计巧妙地丰富了空间层次感,而两侧隐藏灯光的加入进一步强化了客厅的进深与氛围。吊顶选用云朵状吊灯,自然地将视线向下引导,柔化了客厅与玄关之间的视觉对比,使整个空间在视觉上显得协调而不失丰富感。
▼客厅

材质与色彩的搭配延续了整体设计语言,法式细腻的角花线条、奶油色调的主基调、木纹地板与同色系沙发相辅相成;暖色洞石为空间注入自然温暖,而跳色单人位的点缀则为空间增添了一抹灵动与活力。壁炉两侧设计了隐藏移门,当移门开启时,手办室与客厅相连,形成空间的自然过渡,同时创造了一条流畅的回形动线。关闭时则确保了隐私性。弧形内凹线条巧妙地软化了视觉过渡,赋予客厅更多的柔和与灵动。整个客厅设计通过光、材质与细节的多重对话,打造了一个既开放通透,又私密温馨的社交与休憩空间,为居住者带来充满层次感与和谐氛围的生活体验。
▼温馨的光影效果

手办室设计 | 收藏与生活的融合
手办室以整面 L 型展示柜 为核心,通过重组排列的设计形式打破传统柜体的单调。透明柜门与实门柜门的交替结合,搭配简约罗马柱分隔,不仅提升了视觉层次,还赋予了手办收藏更多艺术性。展示柜前端设计了 斜 45 度光带,为手办提供精准的打光效果,突出其细节与质感;柜体后端的补光灯带则专为透明材质手办提供柔和的氛围光照,使其更加灵动通透。
▼手办室

柜体前布置了宽窄不一的桌面设计,既可用于办公,又能灵活展示手办,满足多样化的功能需求。此外,一个温馨的小型休闲区为主人提供了一个喝咖啡、把玩手办或与朋友交流的轻松角落。不同场景的灯光方案明确区分了功能区域,既满足了手办展示的专业需求,又为空间注入了丰富的氛围感。手办室不仅是收藏与展示的场所,更是一个将功能性与舒适感融为一体的专属空间,为收藏爱好者带来了无限欣赏与分享的乐趣。
▼手办室

餐厅设计 | 开放与融合的用餐体验
由于主人烹饪频率较低,对油烟需求不高,餐厅、厨房与岛台采用了一体化布局设计,使整个空间显得更加宽敞明亮。这种设计在满足基本功能的同时,通过巧妙的空间整合,打造了一个兼具实用性与视觉美感的用餐环境。
▼餐厅、厨房与岛台采用了一体化布局设计

厨房配备了现代化设施,包括灶具、洗碗机、微蒸一体机、烤箱,以及双冰箱以便对食物进行分类储存。此外,加入了凯斯宝玛的高升拉篮、联动拉篮、碗碟拉篮和调味拉篮等先进储物解决方案,确保收纳更加高效井然有序。中岛台设计为六抽屉结构,提供了充足的储存空间,同时与半圆弧形的餐桌连为一体,形成了一个统一的用餐核心区域,既具功能性又富设计感。
▼厨房配备了现代化设施

高柜的中间特别留出了一个穿透口,用于放置配色石墩,增强了空间的层次感和通透性,同时让视线自然延伸至洞石包围的公共洗手池区域。旁侧的镂空展架不仅增加了储物功能,还巧妙地将摄影室与餐厨空间融合,打破了功能区的界限,为整体空间增添了更多的互动性与灵活性。整个设计以开放融合为理念,在满足基础生活需求的同时,将空间塑造为一个充满社交性、生活气息与创意氛围的场域,为居住者提供了更自由、更有趣的用餐体验。
▼以开放融合为理念

主卧设计 | 私密与舒适的完美平衡
主卧采用套房布局,包含卧室、卫生间、衣帽间和走廊。设计以温暖与功能为核心,将每个区域巧妙融合,构建了一个既舒适又富有层次感的居住空间。
▼主卧室设计

卧室的背景墙采用悬空包围设计,仿佛一个温暖的怀抱,为空间增添安全感与舒适性。在角落特别设置了一个临时挂衣区:蓝绿色的四分之一球体与金属杆相结合,方便悬挂睡衣、浴袍或次日要穿的衣物,避免频繁进入衣帽间。这一设计不仅具有实用性,还成为独特的装置艺术,将临时挂衣区划分为一个独立的体块,同时巧妙隐藏了滑动收纳门,使其嵌入墙体和结构中,实现美观与功能的完美结合。
▼主卧室设计

卫生间的设计通过拆除隔断墙,将两间空间打通,围绕中间的承重墙设置了洗衣柜和收纳区。利用挖空设计手法,配以波浪弧形板,使整个空间显得灵动而富有生命力。靠近洗浴区的镂空设计上方用于悬挂浴巾,下方封闭部分用于放置毛巾;另一侧的镂空上用于收纳,下方则设计成可放置衣篓的功能区。通长的洗手台不仅满足洗漱需求,还兼具梳妆功能,为日常生活提供极大的便利性。浴缸位于弧形墙顶之下,搭配柔和的顶面氛围灯光,墙边横板可放置香氛蜡烛与音响,营造出惬意优雅的沐浴体验。
▼主卧室设计

▼浴室设计

设计打通后,卫生间的两侧窗户使自然光能够通过玻璃移门与装饰玻璃门穿透至主卧走廊,形成流动的光影效果。衣帽间采用两侧倒置相接的门型设计,中央梳妆台进一步优化了空间的功能性与美感。通过体块、光线与材质的结合,主卧实现了功能与美学并重,打造出一个兼具私密性与舒适性的栖息之所。
▼衣帽间


材质 | 服务于生活的美感
“设计要让人感到舒适,而非让人感到存在。”
——安东尼·高第(Antoni Gaudí)
设计的核心不在于复杂形式的表现,而在于营造一种贴近人心的舒适感。通过自然材质的精心运用和流畅空间的完美融合,优雅与氛围自然流露。即使去掉所有法式的线条修饰,空间的氛围和美感依然不减,材质与光影本身便能讲述空间的故事。设计师在材质的选择上尤为考究,使用带真实纹理的地板砖、天然洞石、理石肌理涂料和温润的漆面,搭配米白色、层次丰富的绿意与洞石的天然米黄色,让整体色调如同油画般自然和谐。GRG隐藏踢脚线的做法,独树一帜,实用同时让空间更加整体流畅。无需多言,步入空间的一刻,生活的气息和内在的和谐美便悄然流露。
▼生活的气息和内在的和谐美

“找到你喜欢的样式,那便是你的生活方式。” 设计并非追求一种单一的规则或定义,而是对住户审美和生活方式的回应。设计师倾听住户的需求,将他们的喜好融入设计之中。例如,女主人作为潮玩爱好者,通过精心布置圣诞树和点燃壁炉,为家中注入了独特的个人符号。这些日常场景,不仅是她对生活方式的表达,也体现了设计师对住户需求的深刻理解——打造一个既满足实用需求,又能够承载住户喜好的个性化空间。
▼生活的气息和内在的和谐美

优秀的设计不在于让住户理解艺术或适应空间,而是以温和的方式,让空间接纳住户的日常需求和情感表达。好的设计是一种陪伴,不是教条,而是住户自身审美与生活方式的自然延续。设计师通过功能优化与氛围塑造,帮助住户打造一个既实用又美好的栖息之所,同时尊重预算约束与审美需求,完成一种温暖而真实的艺术呈现。
▼温暖而真实的艺术呈现

“真正的设计,不是让空间成为一种定义,而是成为居住者生活的延续与表达。” 设计应因人而变。好的设计,因为服务于生活,而显得真实且动人。
项目名称:现代法式|流动的优雅
项目类型:室内设计、住宅设计、平层设计、精品住宅设计
项目地址:江苏省扬州市名门壹品
室内设计/软装设计:扬州上维美学空间设计有限公司
设计团队:万礼,张人杰,周涛,赵彦欣
施工方:尚铭装饰施工
建筑面积:230㎡
设计年份/建成年份:2024.11
材料:洞石,岩板,涂料,烤漆,木作,智能化,GRG等
摄影版权:扬州上维美学空间设计有限公司
品牌:DOWOOD|大木整体家居,意大利马拉齐MARAZZI,企一照明KEEY,摩根全屋智能MOORGEN,MIELE美诺电器,博世电器,意大利威罗VERYLUX,汉斯格雅|杜拉维特,艾默生,日立
感写观览、登录灵感LAB账号、点击文章顶部?可收藏案例
更多该设计公司案例,请点击 → 上维LAB
©非特殊说明,文章版权归原作者所有

关注公众号

关注抖音号