▼室内概览


▼室内概览


退化建筑的前身是一家纯粹的设计公司,写字楼已不符合现今退化建筑的理想工作状态 。我们更希望在工作时有更多生活气息,比如上班路上可以穿过一条小街,和一个老邻居打个招呼,会见到不同类型的人们在城市穿梭和工作。而不是一个只有单一动线的无趣的工作环境。
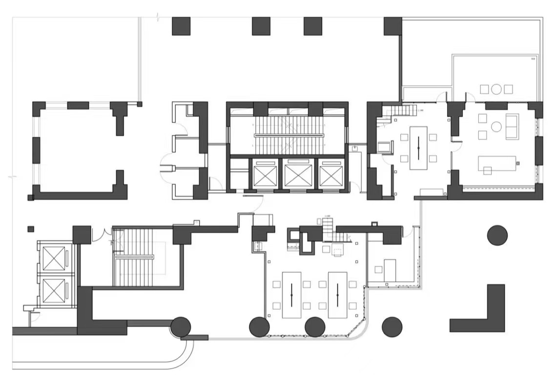
▼一层平面图

▼新办公室更多地使用了木材


和之前的办公室相比,新办公室更多地使用了木材,并摒弃了白色。在保留这栋30年前建成的大楼原先界面的基础上,旧木材构建的结构增加了空间复杂性,错落的阶梯用于会议室和材料室。办公室整体亮度较之前更暗,具有更高的隐私性,藏在退化公园的一隅。
▼错落的阶梯



▼阶梯细部


▼细部


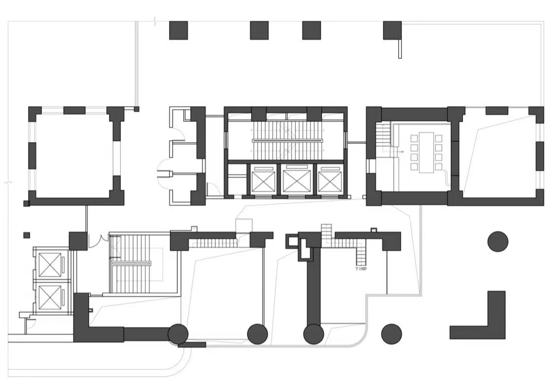
▼二层平面图

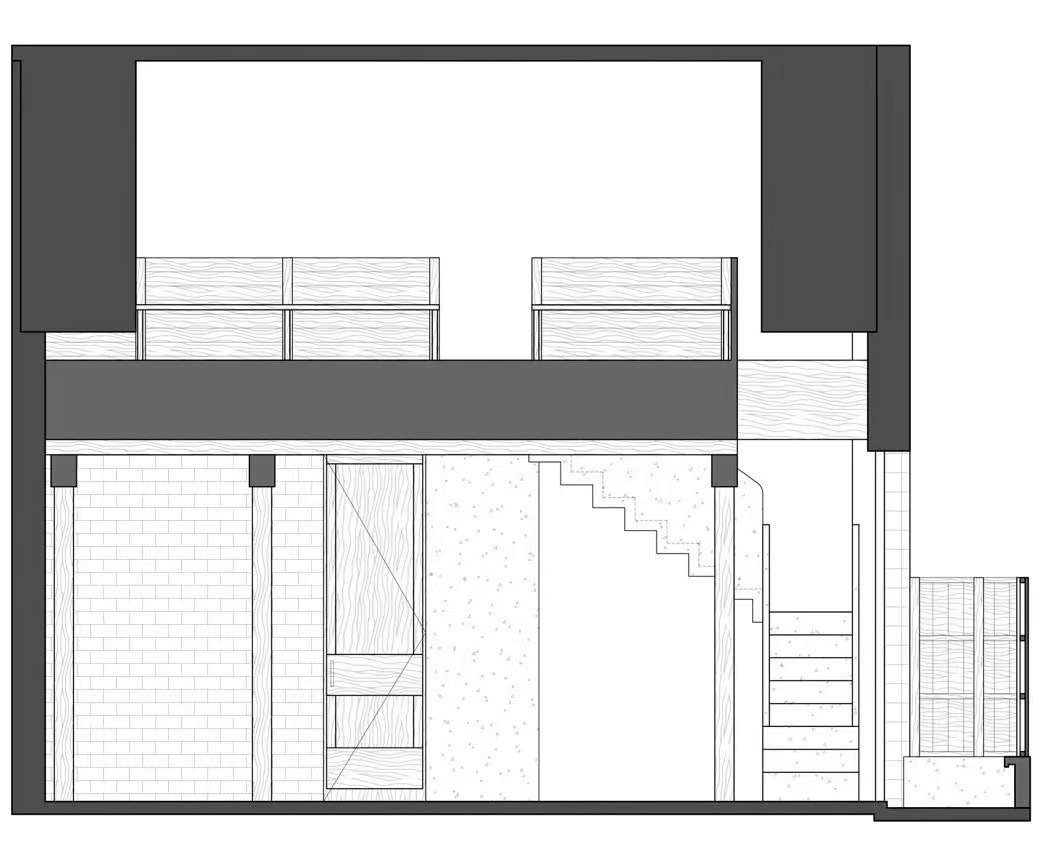
▼办公室立面图


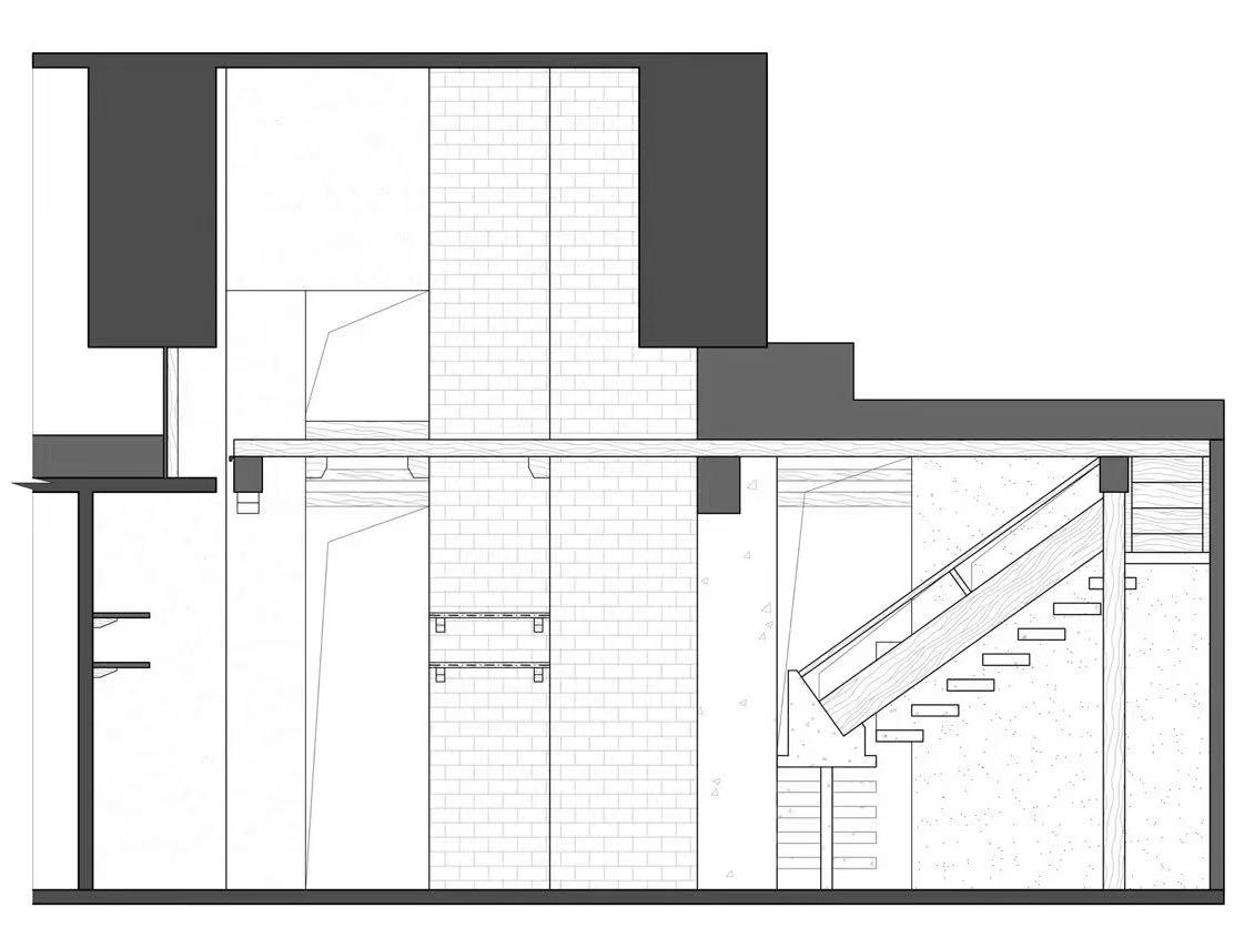
▼楼梯详图


项目名称:退化建筑
项目类型:办公空间设计、工作室设计、办公室设计
项目地址:厦门
室内设计/软装设计:退化建筑
施工方:EMCC结庐
建筑面积:400㎡
建成年份:2024.02
摄影版权:邹训楷
感写观览、登录灵感LAB账号、点击文章顶部?可收藏案例
更多该设计公司案例,请点击 → 退化建筑
©非特殊说明,文章版权归原作者所有

关注公众号

关注抖音号