建筑大师安藤忠雄说过:“建筑的一半依赖于思维,另一半则源自于存在于精神。”这个坐落于青岛万象城的皮肤管理中心NOE THE BEAUTY正是如此完美诠释了人与空间的关系,静中观物动,闲处看人忙的互通理念。
▼等候区



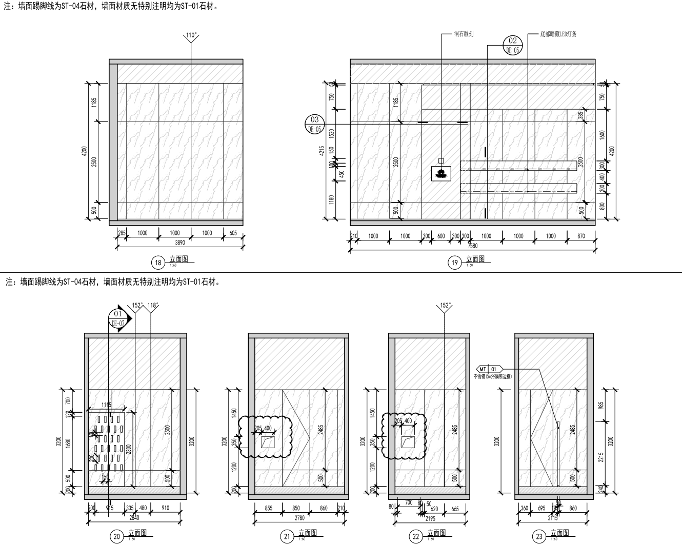
由于商场的特殊性,整个门头用弧形修饰。明亮的超白玻璃让整个店铺内部像展览一样映入大众的眼帘。整洞石跟着侘寂风兴起,代表拙朴之美。它有着接近自然表皮的肌理效果,能给人安定,舒服的情绪,选用在皮肤管理的整体空间是极为合适的。

不同的艺术媒介与空间互相激发,吧台人员与宾客视线交汇,刹那便是永恒,独特的体验会让人耳目一新。大厅中央石材堆叠而成的展台,为空间赋予了更多的生命,透过天花照射出来的光,定格出一种温柔却又坚硬的态度。
▼产品展示




展示台因不同的堆叠形式,在不同的角度展示出不同的立体空间,丰富的层次,从上至下,回转错落。台阶既有渐变感又有悬浮感,洞石台面在视觉上就已经增加了高级感,围合的石材加大震撼。
▼展示台




使大厅的空间不仅做到了通透性,还使展示台具有一定的趣味性。人、光影与线条,构造出的群岛世界。
▼天花一览



进入走廊,像是融入了个人意志,具有极强的私人属性,艺术装置的出现,引入光源,强化视觉延续性,硬朗与生机从此共融,满眼的干净石材与少量家具肌理互相映衬,是空间状态处于一种之间而不空乏地微妙平衡中。洞石的历史悠久,古典氛围之浓厚,艺术感之强烈都是无与伦比的,充满质感的纹理中,深藏着史前岁月的痕迹。
▼走廊向内看

▼洗手池

▲沐浴区域

整体空间虽只有一种洞石材料,却错落有致地展现出空间的态度,优雅且高级。
▼按摩室


是一种不用过多的表现也是一种艺术的沉淀,作为商业设计师,要做的就是将每一个领域的商业项目他独特的存在方式面向大家。
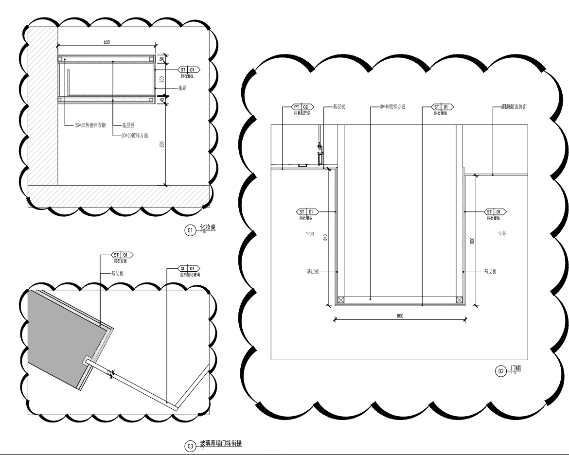
▼节点图



▼立面图

▼平面图

项目名称:NOE THE BEAUTY皮肤管理中心
项目类型:商业空间设计、美容店设计、万象城
项目地址:中国 · 青岛
室内设计:w.select design
建筑面积:297㎡
建成年份:2023.02
合作方:DONG建筑影像
材料:洞石、软膜天花
摄影版权:DONG建筑影像
感写观览、登录灵感LAB账号、点击文章顶部?可收藏案例
更多该设计公司案例,请点击 → w.select design
©非特殊说明,文章版权归原作者所有
编辑版权©灵感LAB,欢迎转发,禁止以灵感LAB编辑版本进行任何形式转载

关注公众号

关注抖音号

京都嘉佩乐酒店 · 日本 | 隈研吾建筑都市设计事务所 + Brewin

Casa Simera瑜伽馆及咖啡厅 · 墨西哥 | WORC Architects

水相事务所SPA馆·北京 | 水相设计

CLINSKIN科技抗衰中心 · 深圳 | E Studio 壹所设计工作室

多摩摩 · 上海 | 多么工作室

江苏智能制造新都市产业园7号楼 V+ Salon 改造设计 ·南京 | 反几建筑