
Luneurs洛克外滩源店坐落于历史悠久的上海外滩建筑群中。位于女青年会大楼一层,建于1933年,是为数不多中西合璧,具有中国传统装饰特色的保护建筑之一。




我们深挖并研究“实用”概念,秉持质朴、简约和实用美学,与外滩的装饰建筑和女青年会大楼自身的特色做结合,创造出与之相辅相成的空间设计。
受到实用空间的谦逊美学影响,摒弃那些华而不实的装饰,促使我们创作出一个更加直白的机能性空间,利用简单质朴的材料,不加修饰地去展现这些材料的原始质感和细节。

为了在实用美学和Lunuers充满家庭亲密感的品牌风格之间找到平衡点,我们通过木材和设计灯具来营造出优雅、温暖的家庭氛围,同时搭配休闲式家具烘托出悠闲气氛。


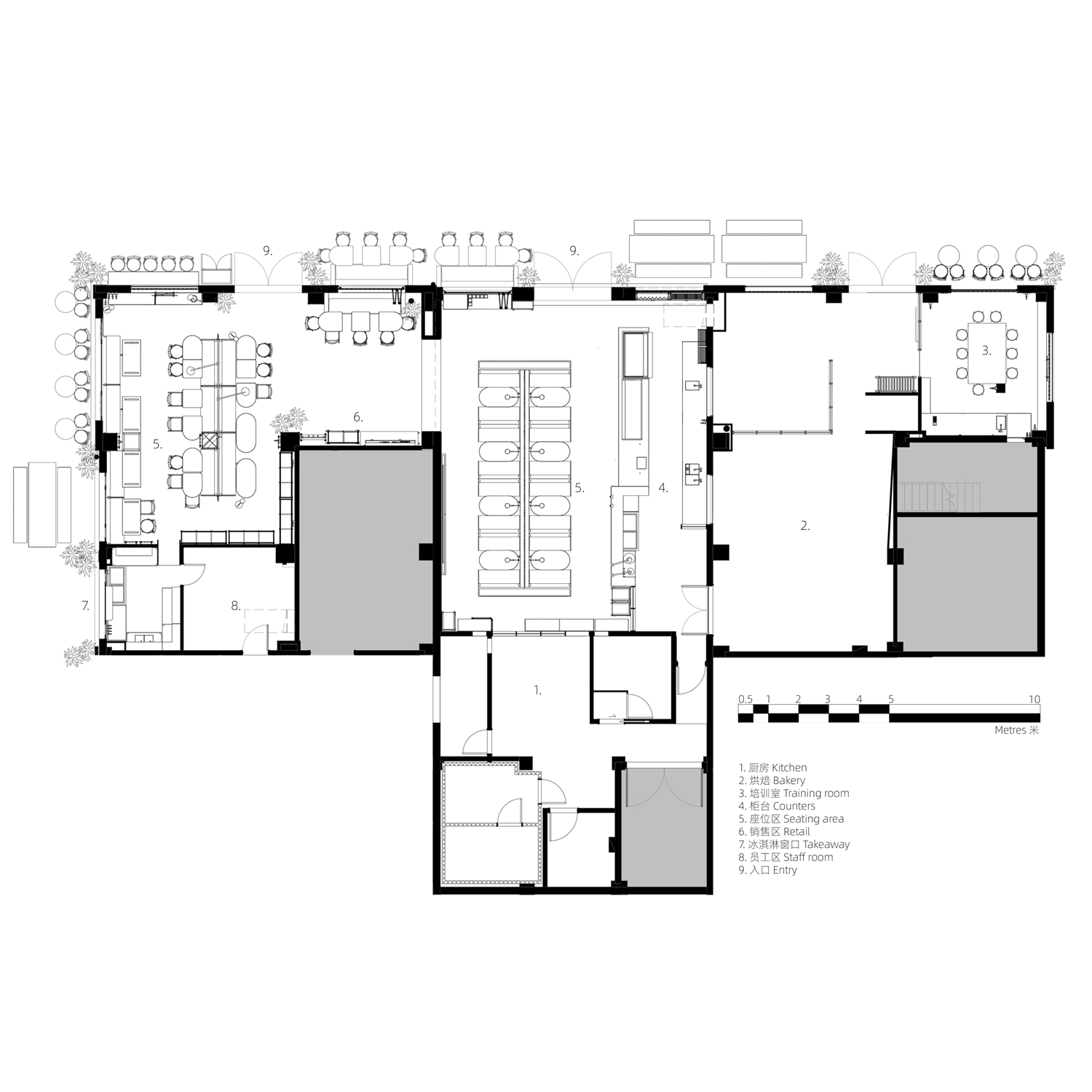
基于建筑原始布局,将公用和后场区域分为5个不同的室内空间。包括厨房、大型烘焙及培训室、主要柜台区、独立用餐/零售区和冰淇淋售卖窗口。
进入店内一眼就能看到柜台区域,醒目的传统装饰天花板与彩色水磨石地板相得益彰。为了向这些历史风貌致敬,我们设计了深红色沙发卡座与之呼应。


层压板桌面的光泽饰面倒映出绝美的天花板图案。整体墙面由粗糙灰泥和吸音材料组成,墙上斜放的镜子映照出美丽的装饰横梁和玻璃天花板。



简朴的宜家置物架组成柜台储物区,营造实用简洁的空间环境。木制烘焙陈列架呼应了Luneurs品牌基因,展现温暖柔和触感。一旁是冰淇淋柜台,特别定制的钢制Logo标牌夹在镀锌钢外层上,趣味十足。


从柜台来到另一侧充满阳光的用餐区,没有了艳丽的天花板和地面,我们选择温和的灰色花岗岩地砖,棱角分明的排列分布呼应柜台区的水磨石地板图案。所有橱柜、置物架和工作台都具备实用功能,并根据需求配备各种抽屉和隔板。



大件的活动家具为空间提供了灵活度,设计灵感是从商用不锈钢橱柜的概念延伸而来,部分层架甚至于烤盘都利用层压板改造而成,我们利用素雅、质朴且耐用的材质来设计实用的活动家具,比如钢材、美耐板、层压板和耐磨人造皮革等,这些饰面材料不仅在中国常见,甚至于所有商用空间都会用到。



我们打破常规,使用一系列夹式灯具作为空间的点缀照明,不仅增添了温馨的家庭氛围,在实用性上来说这些灯具也可以根据空间需求随时调整角度和移动位置。


店内随处可见的菱形纹钢质护墙板是“实用主义”最直观的诠释,除此以外更多的是将设计理念渗透于整体空间中,让人们感受到温馨和柔和的同时也体会到“实用的美”。


主创设计师:
能在历史保护建筑里做设计是欣喜也是挑战,在保留现存天花板和地板的同时,我们的设计表达了对历史文化魅力的礼赞与致敬。

项目名称:Luneurs洛克外滩源店
项目类型:商业空间设计、零售店设计、西餐厅设计、甜品店设计、烘焙店设计、冰淇淋店设计、连锁餐厅设计
项目地址:中国 · 上海
客户:Luneurs
室内设计:hcreates罕创建筑设计有限公司
主创及设计团队:Hannah Churchill、Alex Davies、Xiao Long、Pony Tseng、Florencia Gutierrez、Yicheng Zeng
施工方:上海恒品装饰设计有限公司
视觉设计:Luneurs
建筑面积:430㎡
建成年份:2023年
摄影版权:Brian Chua
感写观览、登录灵感LAB账号、点击文章顶部🤍可收藏案例
更多该设计公司案例,请点击 → hcreates罕创建筑设计有限公司
©非特殊说明,文章版权归原作者所有
编辑版权©灵感LAB,欢迎转发,禁止以灵感LAB编辑版本进行任何形式转载

关注公众号

关注抖音号